Fnaim.fr
Menu

Achat Appartement 4 pièces 80m² TALANT 21240

240 000 Honoraires charge vendeur

3 chambres Ascenseur Parking / Garage

Description du bien



À VENDRE - Appartement 4 pièces avec terrasse et jardin à Talant (21240)
Découvrez cet appartement de 80 m2 situé au rez-de-chaussée, offrant un cadre de vie agréable et fonctionnel. Proche des commerces et des écoles, ce bien en bon état dispose d'une terrasse et d'un jardin privatif, parfaits pour profiter des beaux jours.
Caractéristiques principales :

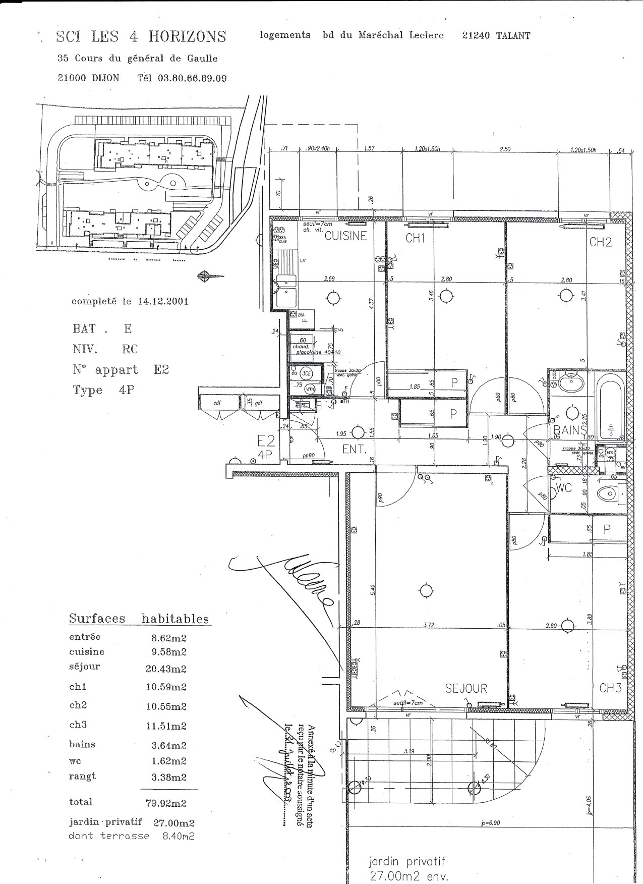
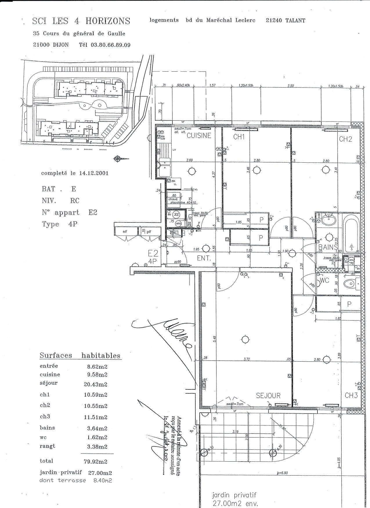
Surface habitable : 80 m2
Séjour : 20 m2
Chambres : 3, dont 2 avec placard
Salle de bain : 1
Année de construction : 2000
Chauffage : Chaudière gaz de ville récente, individuel
Parking privatif extérieur
Cave

Atouts supplémentaires :

Exposition Est-Ouest
Peut convenir à profession libérale, accès PMR

Ne manquez pas cette opportunité unique de vivre dans un cadre agréable et pratique à Talant !
Nb lots: 307 Ch/an: 1 345 EUR
CLASSE ENERGIE: C CLASSE CLIMAT: C
Les informations sur les risques auxquels ce bien est exposé sont disponibles sur le site Géorisques : www.georisques.gouv.fr Bien en copropriété présenté par Nathalie VERNE. Agent commercial inscrit au RSAC sous le No 445074917

Etat des risques et pollutions

Les informations sur les risques auxquels ce bien est exposé sont disponibles sur le site Géorisques : www.georisques.gouv.fr.

Caractéristiques du bien

Composition du bien

  • Type d'habitation : Appartement
  • Cuisine : Type de cuisine Non communique
  • Nombre de pièce(s) : 4
  • Nombre de chambre(s) : 3
  • Salles de bain : 1

Aménagement du bien

Extérieur

  • Terrasse : Non
  • Balcon : Non

Partie Commune

  • Ascenseur : Oui
  • Surface habitable : 80 m²
  • Parking : Oui

Informations sur la copropriété

  • Bien soumis au statut de la copropriété
  • Nombre de lots : 307
  • Quote part charges courantes : 1345 €/an
  • Procédure en cours : Non

Localisation du bien

TALANT (21240) , COTE-D'OR (21) - BOURGOGNE-FRANCHE-COMTÉ

Ce bien n'est pas géolocalisé, pour connaitre sa géolocalisation, merci de contacter l'agence.

Consommation énergétique

  • C (126 kWh/m² an)
    C (24 kgCO2/m².an)
    Plus d'info
    126
    24
    24
  • DPE réalisé après le 1er juillet 2021.
  • Entre 1059 € TTC / an et 1433 € TTC / an
    01/01/2021

Nos professionnels vous accompagnent

Contactez notre agence !

5 RUE VAILLANT 21000 DIJON

Appeler l’agence Tél : 0380419440

* Champs obligatoires

Nous vous informons de l’existence de la liste d’opposition au démarchage téléphonique « BLOCTEL » sur laquelle vous pouvez vous inscrire (https://www.bloctel.gouv.fr).

En complétant le formulaire «CONTACTEZ NOTRE AGENCE », je reconnais expressément que je consens au traitement de mes données personnelles et que je dispose du droit de retirer mon consentement à tout moment en m'adressant à support@fnaim.fr.
En savoir plus sur la gestion de vos données et droits : consulter nos mentions légales, « article 5/ Données à caractère personnel ».

En envoyant ce message, vous acceptez les conditions d'utilisation du site. Plus d'infos