LES ANNONCES
Acheter
165 000€
2 chambres Parking / Garage
Genay - Rue de la gare, dans un petit immeuble d'habitation composée de 2 logements,
Au rez-de-chaussée pour une surface de 91 m², un T3 avec une terrasse de 30 m² ainsi que deux places de parking.
prévoir l'aménagement des extérieurs, la réfec...
179 000€
3 chambres Balcon Parking / Garage
Appartement T4 spacieux de 78 m² avec balcon à Genay - À VENDRE : Appartement T4 situé à Genay d'une superficie habitable de 78 m², idéal pour une famille ou pour ceux qui recherchent un espace de vie confortable. L'appartement se compose de quatre p...
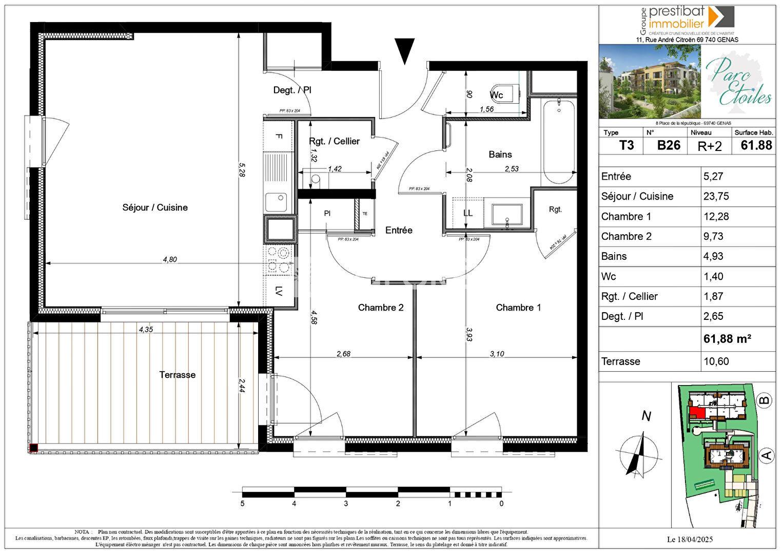
325 000€
2 chambres Ascenseur
PROGRAMME NEUF AppartementT3 EN VEFA à GENAY
Livraison prévue : Été 2026
À découvrir dans un nouveau programme immobilier à Genay, ce bel appartement T3 de 62 m² situé au sein d'une résidence moderne et intimiste, sa terrasse de 10.6 m² .
Les ...