Fnaim.fr
Menu

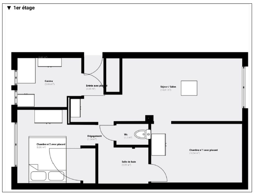
Achat Appartement 3 pièces 49m² TOULON 83100

109 000 Honoraires charge vendeur

2 chambres

Description du bien

TOULON EST BAS FARON NOTRE DAME - Dans une résidence bien entretenue aux façades ravalées et située à proximité des commerces et des écoles.
Appartement traversant de type 3, d'une surface de 49 m2. Il se compose d'une entrée, d'un séjour, d'une cuisine, de deux chambres, d'une salle d'eau et de WC séparés. Une cave vient compléter ce bien.
DPE : D.

Etat des risques et pollutions

Les informations sur les risques auxquels ce bien est exposé sont disponibles sur le site Géorisques : www.georisques.gouv.fr.

Caractéristiques du bien

Composition du bien

  • Type d'habitation : Appartement
  • Cuisine : Type de cuisine Non communique
  • Nombre de pièce(s) : 3
  • Nombre de chambre(s) : 2
  • Salles de bain : 1

Aménagement du bien

Extérieur

  • Terrasse : Non
  • Balcon : Non

Partie Commune

  • Ascenseur : Non
  • Surface habitable : 49 m²

Localisation du bien

TOULON (83100) , VAR (83) - PROVENCE-ALPES-COTE-D-AZUR

Ce bien n'est pas géolocalisé, pour connaitre sa géolocalisation, merci de contacter l'agence.

Consommation énergétique

  • C (144 kWh/m² an)
    D (31 kgCO2/m².an)
    Plus d'info
    144
    31
    31
  • DPE réalisé après le 1er juillet 2021.
  • Entre 610 € TTC / an et 880 € TTC / an
    01/01/2023

Nos professionnels vous accompagnent

Contactez notre agence !

1226 AVENUE COL PICOT 83100 TOULON

Appeler l’agence Tél : 04.22.14.54.00

* Champs obligatoires

Nous vous informons de l’existence de la liste d’opposition au démarchage téléphonique « BLOCTEL » sur laquelle vous pouvez vous inscrire (https://www.bloctel.gouv.fr).

En complétant le formulaire «CONTACTEZ NOTRE AGENCE », je reconnais expressément que je consens au traitement de mes données personnelles et que je dispose du droit de retirer mon consentement à tout moment en m'adressant à support@fnaim.fr.
En savoir plus sur la gestion de vos données et droits : consulter nos mentions légales, « article 5/ Données à caractère personnel ».

En envoyant ce message, vous acceptez les conditions d'utilisation du site. Plus d'infos