Fnaim.fr
Menu

Exclusivité
Réf. VCI-886

Achat Appartement 4 pièces 85m² VICHY 03200

225 750 Honoraires charge acquéreur inclus

3 chambres Balcon Ascenseur

Description du bien

EXCLUSIVITÉ - VICHY PARCS/OPÉRA - Appt T4 /85m2 lumineux avec balcons et cave / ascenseur - EXCLUSIVITÉ - VICHY PARCS/OPÉRA - Appt T4 /85m2 lumineux avec balcons et cave / ascenseur

A visiter avec notre Agence (Nathalie Baulu 06.89.32.37.85)
Dans un quartier idéal et prisé proche des Parcs, de l'Opéra, des Thermes et du centre ville.
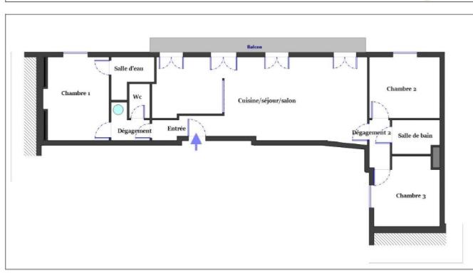
L'appartement se situe au 3ème étage avec ascenseur (accès PMR)
Entrée avec dégagement - pièce de vie lumineuse avec cuisine américaine séparée par une verrière - balcons - 3 chambres - 2 pièces d'eau - 2 WC.

Un 1er espace nuit composé de 2 chambres de 11 et 13m2, avec penderies - une salle de bain avec WC.
Un second espace composé d'une chambre de 11m2 avec placard et une salle d'eau privative - un WC séparé.

Une cave en sous-sol accessible par ascenseur Double vitrage - Chauffage électrique - volets bois -Interphone.

Copropriété rénovée en 2010, composée de 17 lots principaux.
Charges mensuelles de 130€
Foncier 2025 : 1750€

PRIX DE VENTE GLOBAL : 225 750 €
PRIX NET VENDEUR : 215 000€ (base de calcul des frais de notaire)
HONORAIRES ACQUEREURS : 10 750 € TTC

https://errial.georisques.gouv.fr/#/OaeRGu0B
-
Pour tous renseignements préalables à un rendez-vous de visite, merci de bien vouloir contacter :
Nathalie BAULU au 06.89.32.37.85 (nathalie.vci.pro@orange.fr)
EI . Agent commercial (RSAC N°828 246 371
Greffe de CUSSET)
Transactions Immobilières
Agence VICHY CONSEIL IMMOBILIER. Le bien est soumis au statut de la copropriété , la copropriété comporte 1 lots , la quote-part budget prévisionnel (dépenses courantes) est de 1 560,00 euros/an.
Le prix du bien net vendeur est de 215 000,00 euros plus 5,00% TTC d'honoraires charge acquéreur soit un prix total de 225 750,00 euros. Le bien est à vendre par l'intermédiaire de l'agent commercial Nathalie BAULU. Montant estimé des dépenses annuelles d'énergie pour un usage standard : entre 1 220 et 1 700 euros. Prix moyens des énergies indexés en 2023.

Etat des risques et pollutions

Les informations sur les risques auxquels ce bien est exposé sont disponibles sur le site Géorisques : www.georisques.gouv.fr.

Caractéristiques du bien

Composition du bien

  • Type d'habitation : Appartement
  • Nombre de pièce(s) : 4
  • Nombre de chambre(s) : 3
  • Salles de bain : 1

Aménagement du bien

Extérieur

  • Terrasse : Non
  • Balcon : Oui

Partie Commune

  • Ascenseur : Oui
  • Surface habitable : 85 m²

Informations sur la copropriété

  • Bien soumis au statut de la copropriété
  • Nombre de lots : 1
  • Quote part charges courantes : 1560 €/an
  • Procédure en cours : Non

Localisation du bien

VICHY (03200) , ALLIER (03) - AUVERGNE-RHÔNE-ALPES

Consommation énergétique

  • D (182 kWh/m² an)
    A (5 kgCO2/m².an)
    Plus d'info
    182
    5
    5
  • DPE réalisé après le 1er juillet 2021.
  • Entre 1220 € TTC / an et 1700 € TTC / an
    01/01/2023

Nos professionnels vous accompagnent

Contactez notre agence !

27 AVENUE ARISTIDE BRIAND 03200 VICHY

Appeler l’agence Tél : 04 70 31 00 70

* Champs obligatoires

Nous vous informons de l’existence de la liste d’opposition au démarchage téléphonique « BLOCTEL » sur laquelle vous pouvez vous inscrire (https://www.bloctel.gouv.fr).

En complétant le formulaire «CONTACTEZ NOTRE AGENCE », je reconnais expressément que je consens au traitement de mes données personnelles et que je dispose du droit de retirer mon consentement à tout moment en m'adressant à support@fnaim.fr.
En savoir plus sur la gestion de vos données et droits : consulter nos mentions légales, « article 5/ Données à caractère personnel ».

En envoyant ce message, vous acceptez les conditions d'utilisation du site. Plus d'infos