LES ANNONCES
Acheter
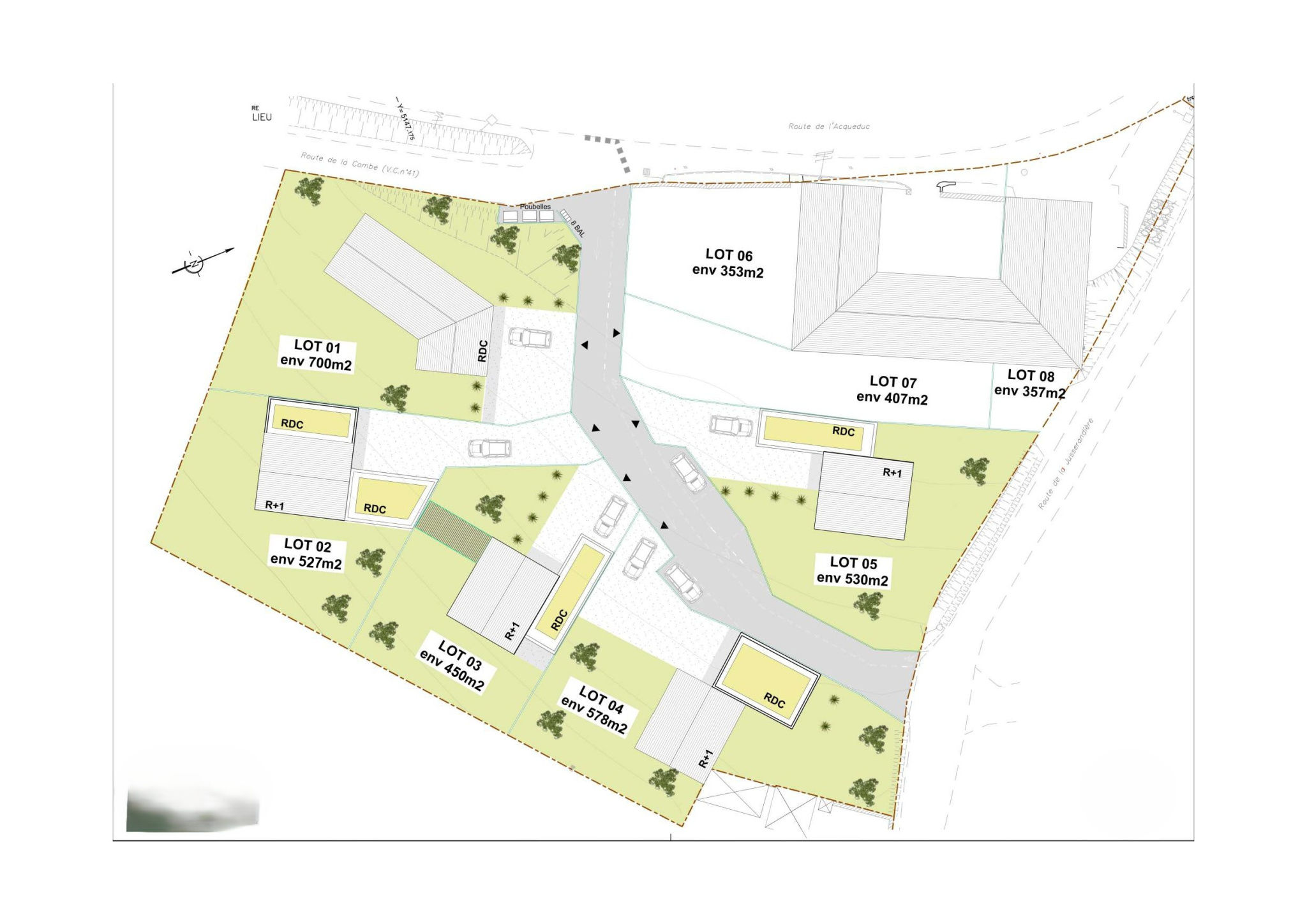
125 000€
Sur la trés jolie et recherchée commune de CELLIEU
LOT 2 : Belle opportunité à saisir dans ce nouveau et petit lotissement avec ce terrain viabilisé de 532 m2.
Plusieurs lots disponible de 527 M2 à 700 M2 : Prix de 125 000 euros à 153 000 euros.
Pl...
153 000€
Sur la trés jolie et recherchée commune de CELLIEU
LOT 1 : Belle opportunité à saisir dans ce nouveau et petit lotissement avec ce terrain viabilisé de 700 m2.
Plusieurs lots disponible de 527 M2 à 700 M2 : Prix de 125 000 euros à 153 000 euros.
Pl...