Fnaim.fr
Menu

Acheter

Exclusivité
Réf. MF-3947

Achat Appartement 2 pièces 48m²

138 000 Honoraires charge vendeur

1 chambre Ascenseur Parking / Garage

Description du bien

EXCLUSTIVITE KW AVINA
APPARTEMENT T2 48M2 AVEC BALCON & PARKING
ROUBAIX, quartier BARBIEUX - EDOUARD VAILLANT - EDHEC
Prix de vente 138.000? HAI

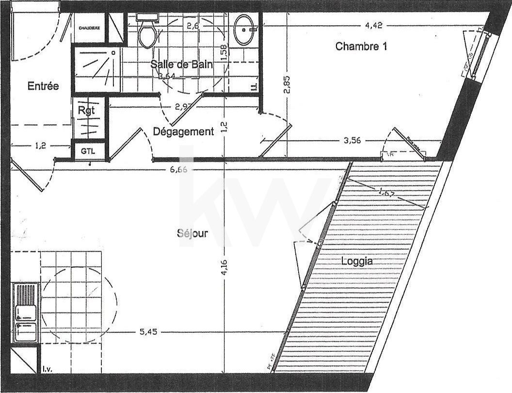
Au sein d'une résidence privée et sécurisée, nous vous présentons un appartement 2 pièces de 48m2 situé 2e étage d'un immeuble de quatre étages avec ascenseur. Il dispose d'une chambre et d'une cuisine aménagée et équipée, et d'une salle de bain avec WC et douche.
Un balcon 'loggia' de 8m2 complète l'appartement.
Pour votre véhicule, une place de parking privée au sous sol

informations complémentaires :
- DPE C / GES C
- Chauffage individuelle (chaudière gaz)
- Taxe foncière 1061? / an
- Charges de copropriété : 115?/mois
- Exposition SUD EST

Les informations sur les risques auxquels ce bien est exposé sont disponibles sur le site

Géorisques : www.georisques.gouv.fr. Envie d'en savoir plus sur cet appartement à vendre ? Prenez contact avec votre agence immobilière KW AVINA.

Les informations sur les risques auxquels ce bien est exposé sont disponibles sur le site Géorisques du gouvernement.

Etat des risques et pollutions

Les informations sur les risques auxquels ce bien est exposé sont disponibles sur le site Géorisques : www.georisques.gouv.fr.

Caractéristiques du bien

Composition du bien

  • Type d'habitation : Appartement
  • Nombre de pièce(s) : 2
  • Nombre de chambre(s) : 1

Aménagement du bien

Extérieur

  • Terrasse : Non
  • Balcon : Non

Partie Commune

  • Ascenseur : Oui
  • Surface habitable : 48 m²
  • Parking : Oui

Informations sur la copropriété

  • Bien soumis au statut de la copropriété
  • Nombre de lots : 70
  • Quote part charges courantes : 1300 €/an
  • Procédure en cours : Non

Localisation du bien

Consommation énergétique

  • C (132 kWh/m² an)
    C (24 kgCO2/m².an)
    Plus d'info
    132
    24
    24
  • DPE réalisé après le 1er juillet 2021.
  • Entre 579 € TTC / an et 783 € TTC / an
    01/01/2021

Nos professionnels vous accompagnent

Contactez notre agence !

17 rue de la Liberté 59116 HOUPLINES

Appeler l’agence Tél : 0677483539

* Champs obligatoires

Nous vous informons de l’existence de la liste d’opposition au démarchage téléphonique « BLOCTEL » sur laquelle vous pouvez vous inscrire (https://www.bloctel.gouv.fr).

En complétant le formulaire «CONTACTEZ NOTRE AGENCE », je reconnais expressément que je consens au traitement de mes données personnelles et que je dispose du droit de retirer mon consentement à tout moment en m'adressant à support@fnaim.fr.
En savoir plus sur la gestion de vos données et droits : consulter nos mentions légales, « article 5/ Données à caractère personnel ».

En envoyant ce message, vous acceptez les conditions d'utilisation du site. Plus d'infos