Fnaim.fr
Menu

Acheter

Réf. KAS.L401.AKF

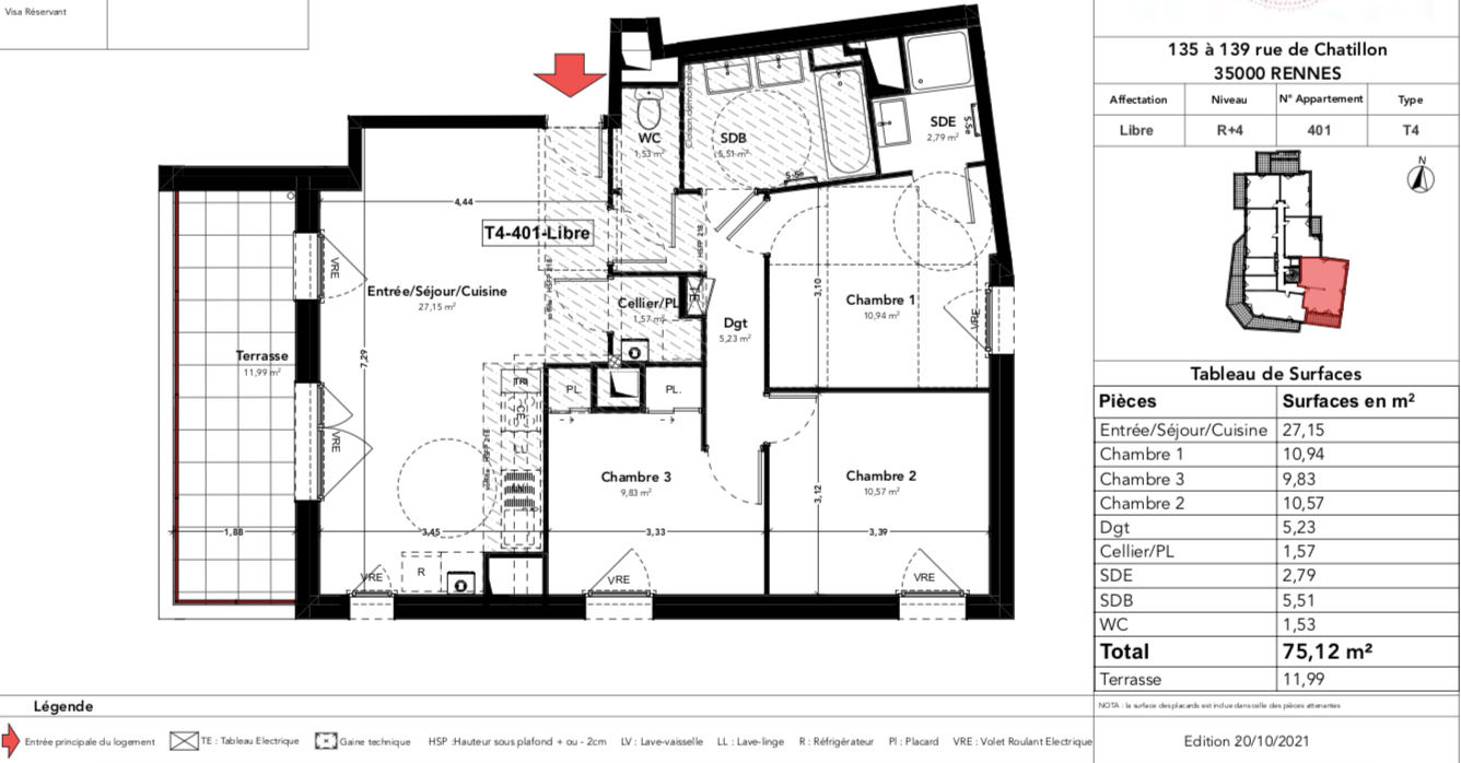
Achat Appartement 4 pièces 75m²

459 900 Honoraires charge vendeur

3 chambres

Description du bien


A vendre appartement T3 (à partir de 299 000 Euro) à Rennes au sein d'une résidence de standing située à Sainte Thérèse à l'angle de deux rues, en retrait du boulevard Georges Clemenceau, emplacement à fort potentiel locatif.
Cette résidence écoresponsable construite à partir de matériaux biosourcés est pensée pour la qualité de vie des étudiants avec des appartements entièrement équipés, aux volumes agréables et fonctionnels, ainsi que de nombreux services et espaces communs de convivialité.
A proximité : du centre commerciale Alma, de l'aéroport de Rennes, proches des groupes scolaires, ainsi que des arrêts de bus et métro.

Fabrice AMR ADAMIAK (EI) Agent Commercial - Numéro RSAC : 340 288 133 - RENNES.

Etat des risques et pollutions

Les informations sur les risques auxquels ce bien est exposé sont disponibles sur le site Géorisques : www.georisques.gouv.fr.

Caractéristiques du bien

Composition du bien

  • Type d'habitation : Appartement
  • Nombre de pièce(s) : 4
  • Nombre de chambre(s) : 3

Aménagement du bien

Extérieur

  • Terrasse : Non
  • Balcon : Non

Partie Commune

  • Ascenseur : Non
  • Surface habitable : 75 m²

Localisation du bien

Ce bien n'est pas géolocalisé, pour connaitre sa géolocalisation, merci de contacter l'agence.

Consommation énergétique

DPE non soumis
mention indiquée sous la responsabilité de l’agence immobilière

Nos professionnels vous accompagnent

Contactez notre agence !

26 RUE LEVAVASSEUR 35800 DINARD

Appeler l’agence Tél : 0299461024

* Champs obligatoires

Nous vous informons de l’existence de la liste d’opposition au démarchage téléphonique « BLOCTEL » sur laquelle vous pouvez vous inscrire (https://www.bloctel.gouv.fr).

En complétant le formulaire «CONTACTEZ NOTRE AGENCE », je reconnais expressément que je consens au traitement de mes données personnelles et que je dispose du droit de retirer mon consentement à tout moment en m'adressant à support@fnaim.fr.
En savoir plus sur la gestion de vos données et droits : consulter nos mentions légales, « article 5/ Données à caractère personnel ».

En envoyant ce message, vous acceptez les conditions d'utilisation du site. Plus d'infos