LES ANNONCES
Acheter
71 000€
1 chambre Balcon
En exclusivité - Joli appartement T2 d'une surface loi carrez de 22.69 + loggia de 3.26 m2 au rez de chaussée d'une copropriété comprenant entrée sur kitchenette et séjour, salle de bains/wc et une chambre ( coin nuit ).
Exposition Ouest - Proche...
75 000€
Parking / Garage
En Exclusivité sur la commune de Bellevaux - Lieu dit les Mouilles - Au pied des pistes dans une copropriété un Studio d'une surface loi carrez de 20.49 m2 comprenant une entrée/coin montagne, salle d'eau, wc, séjour ouvert sur kitchenette, balcon av...
103 880€
Balcon Parking / Garage
Dans un ensemble immobilier de 22 logements/plateaux sur les hauteurs de Saint-Jeoire, Plateau type T2 au 2ème étage d'une surface de 44.20 m2 + Balcon de 5.10 m2 et une place de parking.
Rentabilité locative de 5.28 % soit 640 EUR / mois hors charges...
115 000€
1 chambre Balcon
Au centre du village d'Habère-Poche, vous serez séduits par ce joli T2 Duplex au dernier étage d'une surface utile de 31.81 m2 et en loi carrez de 29.66 m2 comprenant une entrée/coin montagne, salle de bains et wc séparé, coin cuisine ouvert sur séjo...
125 210€
Parking / Garage
Dans un ensemble immobilier de 22 logements/plateaux sur les hauteurs de Saint-Jeoire, Plateau type T2 au rez de chaussée d'une surface de 52 m2 + Terrasse de 29 m2 et une place de parking.
Rentabilité locative de 5.61 % soit 820 EUR / mois hors charg...
135 000€
Balcon Parking / Garage
Dans un ensemble immobilier de 22 logements/plateaux sur les hauteurs de Saint-Jeoire, Plateau type T3 au 1er étage d'une surface de 58.50 m2 + Balcon de 6 m2 et une place de parking.
Rentabilité locative de 4.40 % soit 710 EUR / mois hors charges.
137 800€
2 chambres
En exclusivité sur la commune d'Habère Poche un appartement à rénover entièrement au 2ème étage d'une petite copropriété d'une surface utile de 71.42 m2 dont 49.64 m2 loi carrez, pas de balcon.
Parking commun Informations Risque et Pollution...
142 950€
Balcon Parking / Garage
Dans un ensemble immobilier de 22 logements/plateaux sur les hauteurs de Saint-Jeoire, Plateau type T3 au 1er étage d'une surface de 60.60 m2 + Balcon de 5.90 m2 et une place de parking.
Rentabilité locative de 4.27 % soit 720 EUR / mois hors charges....
148 470€
Balcon Parking / Garage
Dans un ensemble immobilier de 22 logements/plateaux sur les hauteurs de Saint-Jeoire, Plateau type T3 au 1er étage d'une surface de 60.60 m2 + Balcon de 11.80 m2 et une place de parking.
Rentabilité locative de 4.58 % soit 790 EUR / mois hors charges...
151 750€
Parking / Garage
Dans un ensemble immobilier de 22 logements/plateaux sur les hauteurs de Saint-Jeoire, Plateau type T3 au rez de chaussée d'une surface de 60.70 m2 + Jardin de 92 m2 et une place de parking.
Rentabilité locative de 4.89 % soit 850 EUR / mois hors char...
158 690€
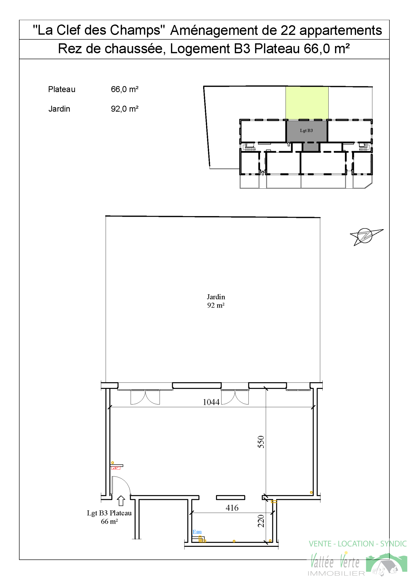
Parking / Garage
Dans un ensemble immobilier de 22 logements/plateaux sur les hauteurs de Saint-Jeoire, Plateau type T3 au rez de chaussée d'une surface de 66 m2 + Jardin de 92 m2 et une place de parking.
Rentabilité locative de 4.86 % soit 900 EUR / mois hors charges...
173 710€
Balcon Parking / Garage
Dans un ensemble immobilier de 22 logements/plateaux sur les hauteurs de Saint-Jeoire, Plateau type T3 au 2ème étage d'une surface de 73.60 m2 + Balcon de 6 m2 et une place de parking.
Rentabilité locative de 4.34 % soit 890 EUR / mois hors charges.
178 850€
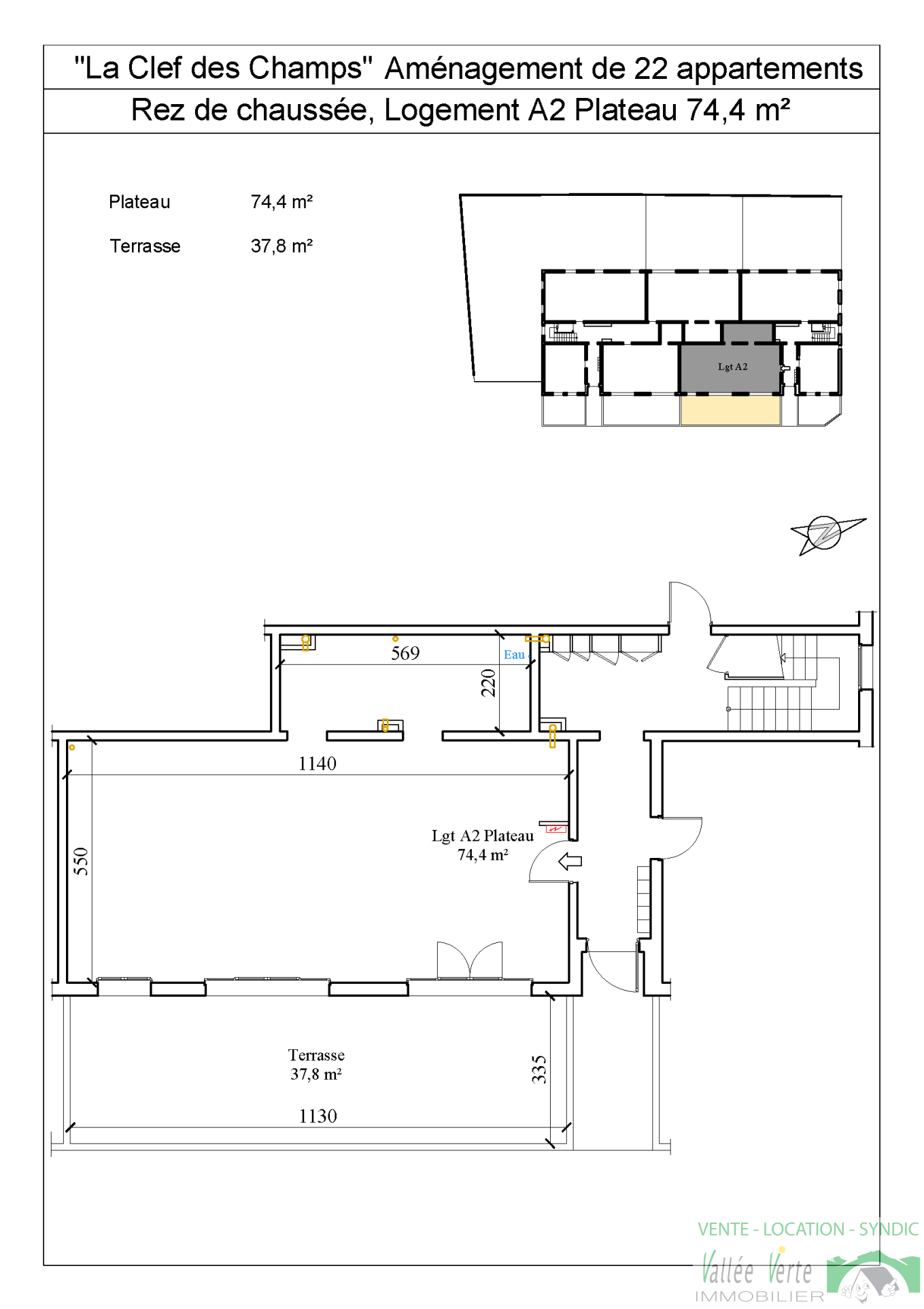
Parking / Garage
Dans un ensemble immobilier de 22 logements/plateaux sur les hauteurs de Saint-Jeoire, Plateau type T3 au rez de chaussée d'une surface de 74.40 m2 + terrasse de 37.80 m2 et une place de parking.
Rentabilité locative de 4.75 % soit 980 EUR / mois hors...
183 760€
Balcon Parking / Garage
Dans un ensemble immobilier de 22 logements/plateaux sur les hauteurs de Saint-Jeoire, Plateau type T3 au 2ème étage d'une surface de 74.80 m2 + Balcon de 7.30 m2 et une place de parking.
Rentabilité locative de 4.05 % soit 880 EUR / mois hors charges...
185 210€
Balcon Parking / Garage
Dans un ensemble immobilier de 22 logements/plateaux sur les hauteurs de Saint-Jeoire, Plateau type T3 au 2ème étage d'une surface de 76.90 m2 + Balcon de 7.20 m2 et une place de parking.
Rentabilité locative de 4.06 % soit 880 EUR / mois hors charges...
189 250€
Balcon Parking / Garage
Dans un ensemble immobilier de 22 logements/plateaux sur les hauteurs de Saint-Jeoire, Plateau type T3 au 1er étage d'une surface de 77.20 m2 + Balcon de 5.80 m2 et une place de parking.
Rentabilité locative de 4.15 % soit 920 EUR / mois hors charges....
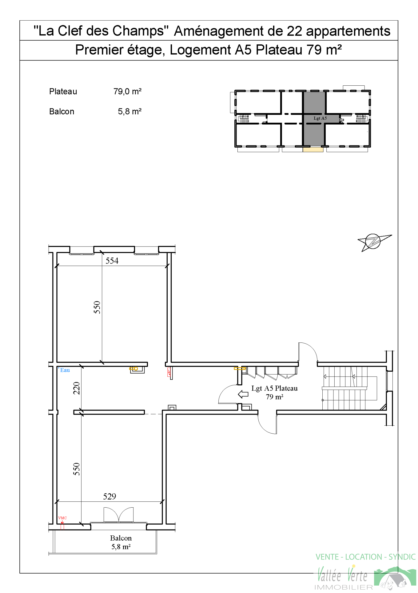
191 460€
Balcon Parking / Garage
Dans un ensemble immobilier de 22 logements/plateaux sur les hauteurs de Saint-Jeoire, Plateau type T3 au 1er étage d'une surface de 79 m2 + Balcon de 5.80 m2 et une place de parking.
Rentabilité locative de 4.11 % soit 920 EUR / mois hors charges.
234 060€
Balcon Parking / Garage
Dans un ensemble immobilier de 22 logements/plateaux sur les hauteurs de Saint-Jeoire, Plateau type T4 au 2ème étage d'une surface de 95.30 m2 + Balcon de 9.50 m2 et une place de parking.
Rentabilité locative de 4.07 % soit 1130 EUR / mois hors charge...
243 000€
2 chambres Balcon Parking / Garage
Sur la commune de Mieussy dans une petite copropriété de 5 logements, venez découvrir cet appartement T3 d'une surface habitable loi carrez de 51.22 m2 comprenant une entrée avec couloir, 2 chambres, salle d'eau, wc, cuisine équipée et meublée ouvert...
253 700€
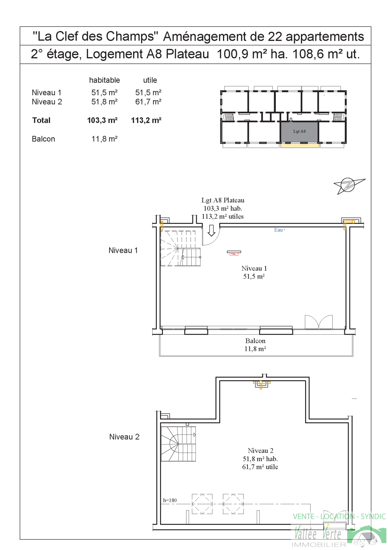
Balcon Parking / Garage
Dans un ensemble immobilier de 22 logements/plateaux sur les hauteurs de Saint-Jeoire, Plateau type T4 au 2ème étage d'une surface de 103.30 m2 + Balcon de 11.80 m2 et une place de parking.
Rentabilité locative de 4 % soit 1150 EUR / mois hors charges...
294 000€
2 chambres Jardin
En Exclusivité sur les hauteurs d'Habère-Lullin un Chalet en copropriété horizontale de 1986 d'une surface utile de 57 m2 dont 47 m2 habitable loi carrez comprenant une entrée, cuisine ouverte sur salon/séjour, salle de bains, wc, placards et balcon;...