Fnaim.fr
Menu

Acheter

Réf. 406518LBF

Achat Appartement 3 pièces 65m² CERET 66400

257 000 Honoraires charge vendeur

2 chambres Balcon Ascenseur Parking / Garage

Description du bien

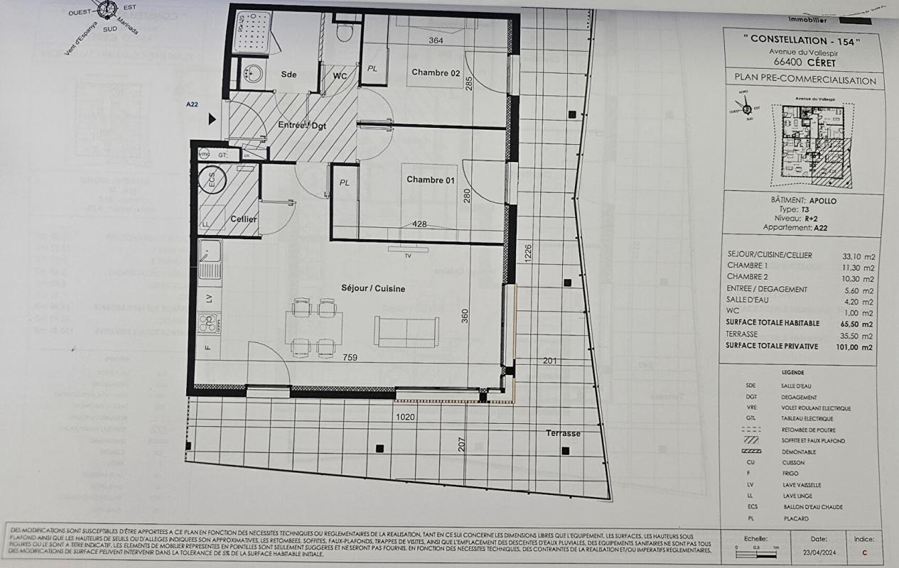
A Céret, situé sur la friche de l'ancienne gare dans une résidence de standing, venez découvrir ce bel appartement T3 (RE 2020 ) situé au 2nd étage de la résidence CONSTELLATION 154, d'une superficie habitable de 65 m2 bénéficiant d'une belle terrasse de 35m2 orientée Sud-est.
Un salon-cuisine ouverte de 33 m2 , une chambre de plus de 11m², une seconde chambre de plus de 10 m², une salle d'eau et un wc indépendant.
Le bien est vendu avec une place parking, un garage double et une cave.
Belles prestations pour votre futur appartement. Idéal résidence principale, secondaire ou investissement.
Pour plus d'information contactez-moi, produit rare.

Bien en copropriété composée de 26 appartements répartis sur 2 bâtiments de 3 étages avec ascenseur.
Prix: 257 000 euros frais d'agence inclus, charges vendeur.
Bien non soumis au DPE, pas de procédure en cours.

Pour visiter et vous accompagner dans votre projet, contactez Franck LEFEBVRE, au 0673738285 ou par courriel à f.lefebvre@proprietes-privees.com
Cette présente annonce a été rédigée sous la responsabilité éditoriale de Franck LEFEBVRE agissant sous le statut d'agent commercial immatriculé au RSAC PERPIGNAN 478849896 auprès de la SAS PROPRIETES PRIVEES, Réseau national immobilier, au capital de 40000 euros, 44 ALLÉE DES CINQ CONTINENTS - ZAC LE CHÊNE FERRÉ, 44120 VERTOU, RCS Nantes n° 487 624 777 00040, Carte professionnelle T et G n° CPI 4401 2016 000 010 388 CCI Nantes-Saint Nazaire. Garantie GALIAN - 89 rue de la Boétie, 75008 Paris
Mandat réf : 406 510-Le professionnel sécurise et garantit votre projet immobilier-

Selon l'article L.561.5 du Code Monétaire et Financier, pour l'organisation de la visite, la présentation d'une pièce d'identité vous sera demandée.
Cette présente annonce a été rédigée sous la responsabilité éditoriale de Franck LEFEBVRE agissant sous le statut d'agent commercial immatriculé au RSAC PERPIGNAN 478849896 auprès de SAS PROPRIETES PRIVEES, au capital de 44 920 euros, ZAC LE CHÊNE FERRÉ - 44 ALLÉE DES CINQ CONTINENTS 44120 VERTOU; SIRET 487 624 777 00040, RCS Nantes. Carte Professionnelle Transactions sur immeubles et fonds de commerce (T) et Gestion immobilière (G) n°CPI 4401 2016 000 010 388 délivrée par la CCI Nantes - Saint Nazaire. Compte séquestre n°30932508467 BPA SAINT-SEBASTIEN-SUR-LOIRE (44230). Garantie GALIAN-SMABTP - 89 rue de la Boétie, 75008 Paris - n°28137 J pour 2 000 000 euros pour T et 120 000 euros pour G. Assurance responsabilité civile professionnelle par GALIAN-SMABTP n° de police 28137.J

Les informations sur les risques auxquels ce bien est exposé sont disponibles sur le site Géorisques "www.georisques.gouv.fr" -

Copropriété de 52 lots - dont 26 lots habitation. ().

Charges annuelles : 1200 euros.
Franck LEFEBVRE (EI) Agent Commercial - Numéro RSAC : PERPIGNAN 478849896 - .

Etat des risques et pollutions

Les informations sur les risques auxquels ce bien est exposé sont disponibles sur le site Géorisques : www.georisques.gouv.fr.

Caractéristiques du bien

Composition du bien

  • Type d'habitation : Appartement
  • Nombre de pièce(s) : 3
  • Nombre de chambre(s) : 2

Aménagement du bien

Extérieur

  • Terrasse : Non
  • Balcon : Oui

Partie Commune

  • Ascenseur : Oui
  • Surface habitable : 65 m²
  • Parking : Oui

Informations sur la copropriété

  • Bien soumis au statut de la copropriété
  • Nombre de lots : 52
  • Quote part charges courantes : 1200 €/an
  • Procédure en cours : Non

Localisation du bien

CERET (66400) , PYRENEES-ORIENTALES (66) - OCCITANIE

Ce bien n'est pas géolocalisé, pour connaitre sa géolocalisation, merci de contacter l'agence.

Consommation énergétique

DPE non soumis
mention indiquée sous la responsabilité de l’agence immobilière

Nos professionnels vous accompagnent

Contactez notre agence !

44 Allée des Cinq Continents ZAC Le Chêne Ferré 44120 VERTOU

Appeler l’agence Tél : 06 73 73 82 85

* Champs obligatoires

Nous vous informons de l’existence de la liste d’opposition au démarchage téléphonique « BLOCTEL » sur laquelle vous pouvez vous inscrire (https://www.bloctel.gouv.fr).

En complétant le formulaire «CONTACTEZ NOTRE AGENCE », je reconnais expressément que je consens au traitement de mes données personnelles et que je dispose du droit de retirer mon consentement à tout moment en m'adressant à support@fnaim.fr.
En savoir plus sur la gestion de vos données et droits : consulter nos mentions légales, « article 5/ Données à caractère personnel ».

En envoyant ce message, vous acceptez les conditions d'utilisation du site. Plus d'infos