Fnaim.fr
Menu

Acheter

Exclusivité
Réf. DOM24708

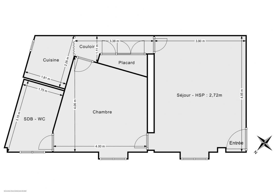
Achat Appartement 2 pièces 46m² PARIS 10ème

470 000 Honoraires charge vendeur

1 chambre Balcon Ascenseur

Description du bien

Liberkeys vous propose en exclusivité ce deux pièces de 45,64 m² Carrez, situé au 4e étage avec ascenseur d'un bel immeuble haussmannien, offrant une vue totalement dégagée, une belle luminosité et un calme rare en plein Paris.

L'appartement comprend un séjour lumineux, une chambre, une cuisine indépendante et une salle de bain avec WC. Ses grandes fenêtres sans vis-à-vis garantissent un ensoleillement naturel tout au long de la journée. La hauteur sous plafond de 2,72m accentue la sensation d'espace et met en valeur le cachet de l'ancien.
Une cave complète ce bien.

Emplacement recherché : à proximité immédiate des gares de l'Est et du Nord, du métro Barbès-Rochechouart et de toutes commodités, au carrefour des 10e, 9e et 18e arrondissements.

Charges trimestrielles : 181,92 €
Taxe foncière : 606 €

Que ce soit pour une résidence principale, un pied-à-terre ou un investissement, cet appartement conjugue charme, confort et accessibilité.

Etat des risques et pollutions

Les informations sur les risques auxquels ce bien est exposé sont disponibles sur le site Géorisques : www.georisques.gouv.fr.

Caractéristiques du bien

Composition du bien

  • Type d'habitation : Appartement
  • Cuisine : Simple m²
  • Nombre de pièce(s) : 2
  • Nombre de chambre(s) : 1
  • Salles de bain : 1

Aménagement du bien

Extérieur

  • Terrasse : Non
  • Balcon : Oui

Partie Commune

  • Ascenseur : Oui
  • Surface habitable : 46 m²

Informations sur la copropriété

  • Bien soumis au statut de la copropriété
  • Nombre de lots : 67
  • Quote part charges courantes : 728 €/an
  • Procédure en cours : Non

Localisation du bien

PARIS 10 (75010) , PARIS (75) - ILE-DE-FRANCE

Consommation énergétique

  • G (615 kWh/m² an)
    C (20 kgCO2/m².an)
    Plus d'info
    615
    20
    20
  • DPE réalisé après le 1er juillet 2021.
  • Entre 2130 € TTC / an et 2920 € TTC / an
    Non communiqué
  • Logement à consommation énergétique excessive : classe G

Nos professionnels vous accompagnent

Contactez notre agence !

20 RUE DE MONTHOLON 75009 PARIS 09

Appeler l’agence Tél : 06 22 34 57 25

* Champs obligatoires

Nous vous informons de l’existence de la liste d’opposition au démarchage téléphonique « BLOCTEL » sur laquelle vous pouvez vous inscrire (https://www.bloctel.gouv.fr).

En complétant le formulaire «CONTACTEZ NOTRE AGENCE », je reconnais expressément que je consens au traitement de mes données personnelles et que je dispose du droit de retirer mon consentement à tout moment en m'adressant à support@fnaim.fr.
En savoir plus sur la gestion de vos données et droits : consulter nos mentions légales, « article 5/ Données à caractère personnel ».

En envoyant ce message, vous acceptez les conditions d'utilisation du site. Plus d'infos