Fnaim.fr
Menu

Acheter

Réf. 402373CHKM

Achat Maison 3 pièces 71m² SAUVIAN 34410

279 900 Honoraires charge vendeur

2 chambres Balcon Parking / Garage

Description du bien

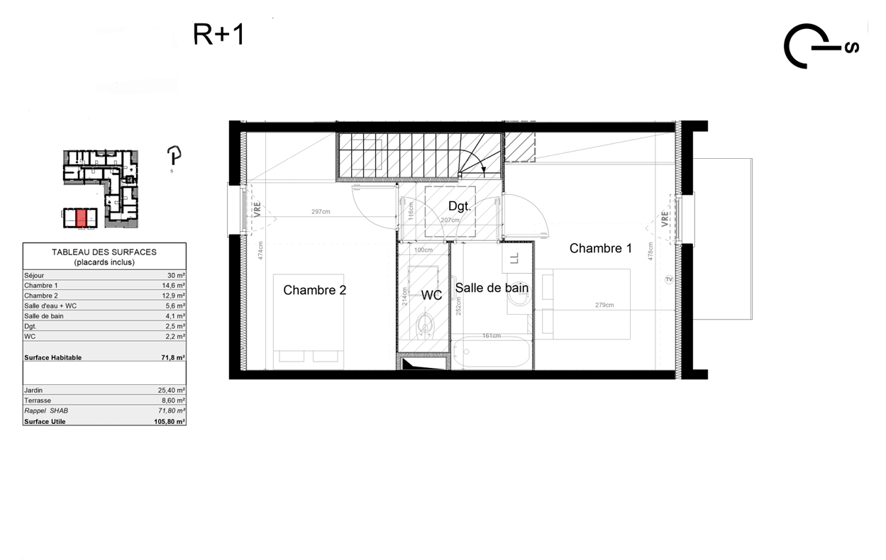
A seulement 10 minutes à pied du centre-ville, offre une opportunité unique d'acquérir un bien dans un quartier calme, résidentiel et sécurisé, tout en restant à proximité immédiate des commodités essentielles. Ce futur cadre de vie correspond-il à vos attentes? Avec près de 72 m² de surface habitable, cette maison a été pensée pour vous offrir un confort absolu. Vous serez immédiatement séduit par son espace extérieur de près de 34,10 m², orienté plein Sus, idéal pour profiter pleinement des rayons du soleil et prolonger vos moments de détente. Au rez-de-chaussée, vous découvrirez une cuisine ouverte, une salle d'eau, et un grand salon lumineux, ouvert sur le jardin, créant ainsi une parfaite harmonie entre l'intérieur et l'extérieur. A l'étage, deux chambres spacieuses vous attendent, offrant à chacun son propre espace, et une salle de bain moderne qui allie fonctionnalité et confort. Chaque détail a été conçu pour un quotidien alliant praticité et bien-être. Un véritable atout : deux places de parking privées, vous offrant une grande facilité au quotidien. Le tout dans un environnement paisible, à l'abri du tumulte de la ville, où il fait bon vivre. Sa localisation idéale vous permet de profiter de la tranquillité d'un quartier résidentiel tout en étant à proximité immédiate des commerces, écoles et transports. Ce bien vous semble-t-il en adéquation avec ce que vous recherchez?
Vous souhaitez faire de ce bien votre futur chez-vous? Ne manquez pas cette occasion de vous positionner dès maintenant sur cet appartement. Prix de vente : 289 900 euros (honoraires à la charge du vendeur).
Me contacter pour plus d'informations, plans (parkings, plan de masse ) et notice descriptive complète sur demande. Photos non contractuelles, DPE non requis. Selon l'article L.561.5 du Code Monétaire et Financier, pour l'organisation de la visite, la présentation d'une pièce d'identité vous sera demandée. Pour visiter et vous accompagner dans votre projet, contactez Michel HORNECKER, au 0699405021 ou par courriel à m.hornecker@proprietes-privees.com Cette présente annonce a été rédigée sous la responsabilité éditoriale de Michel HORNECKER agissant sous le statut d'agent commercial immatriculé au RSAC BEZIERS 824 253 710 spécialisé en vente du neuf , auprès de la SAS PROPRIETES PRIVEES, Réseau national immobilier, au capital de 40000 euros, 44 ALLÉE DES CINQ CONTINENTS - ZAC LE CHÊNE FERRÉ, 44120 VERTOU, RCS Nantes n° 487 624 777 00040, Carte professionnelle T et G n° CPI 4401 2016 000 010 388 CCI Nantes-Saint Nazaire. Garantie GALIAN - 89 rue de la Boétie, 75008 Paris Mandat réf : 402373 - Le professionnel garantit et sécurise votre projet immobilier. Michel HORNECKER (EI) Agent Commercial - Numéro RSAC : BEZIERS 824 253 710 Les informations sur les risques auxquels ce bien est exposé sont disponibles sur le site Géorisques : www.georisques.gouv.fr
Copropriété de 72 lots - dont 31 lots habitation. ().

Charges annuelles : 1 euros.
Michel HORNECKER (EI) Agent Commercial - Numéro RSAC : BEZIERS 493044283 - .

Etat des risques et pollutions

Les informations sur les risques auxquels ce bien est exposé sont disponibles sur le site Géorisques : www.georisques.gouv.fr.

Caractéristiques du bien

Composition du bien

  • Type d'habitation : Maison
  • Nombre de chambres : 2
  • Nombre de salles de bain : 1

Aménagement du bien

  • Cave : Non
  • Garage / Parking : Oui
    • Surface habitable : 71 m²
    • Parking : Oui

    Informations sur la copropriété

    • Bien soumis au statut de la copropriété
    • Nombre de lots : 72
    • Quote part charges courantes : 1 €/an
    • Procédure en cours : Non

    Localisation du bien

    SAUVIAN (34410) , HERAULT (34) - OCCITANIE

    Ce bien n'est pas géolocalisé, pour connaitre sa géolocalisation, merci de contacter l'agence.

    Consommation énergétique

    DPE non soumis
    mention indiquée sous la responsabilité de l’agence immobilière

    Nos professionnels vous accompagnent

    Contactez notre agence !

    44 Allée des Cinq Continents ZAC Le Chêne Ferré 44120 VERTOU

    Appeler l’agence Tél : 06 99 40 50 21

    * Champs obligatoires

    Nous vous informons de l’existence de la liste d’opposition au démarchage téléphonique « BLOCTEL » sur laquelle vous pouvez vous inscrire (https://www.bloctel.gouv.fr).

    En complétant le formulaire «CONTACTEZ NOTRE AGENCE », je reconnais expressément que je consens au traitement de mes données personnelles et que je dispose du droit de retirer mon consentement à tout moment en m'adressant à support@fnaim.fr.
    En savoir plus sur la gestion de vos données et droits : consulter nos mentions légales, « article 5/ Données à caractère personnel ».

    En envoyant ce message, vous acceptez les conditions d'utilisation du site. Plus d'infos