Fnaim.fr
Menu

Acheter

Exclusivité
Réf. 1846

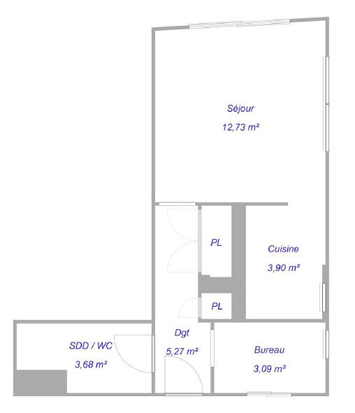
Achat Appartement 1 pièce 28m² VENCE 06140

106 000 Honoraires charge vendeur

Balcon Parking / Garage

Description du bien

Opportunité unique en plein coeur de ville ! Découvrez cette ancienne loge de gardien à rénover entièrement, offrant un potentiel exceptionnel pour créer votre espace de vie idéal ou un investissement locatif attractif.
Située au sein d'une résidence de centre-ville, cette loge bénéficie d'un emplacement privilégié, à proximité immédiate de toutes les commodités, des commerces et des transports en commun.
Ce bien rare comprend également un parking en sous-sol, un atout majeur en centre-ville.
Imaginez les possibilités offertes par ce volume à transformer selon vos envies : studio cosy, petit appartement fonctionnel ou bureau indépendant.

Etat des risques et pollutions

Les informations sur les risques auxquels ce bien est exposé sont disponibles sur le site Géorisques : www.georisques.gouv.fr.

Caractéristiques du bien

Composition du bien

  • Type d'habitation : Appartement
  • Nombre de pièce(s) : 1

Aménagement du bien

Extérieur

  • Terrasse : Non
  • Balcon : Oui

Partie Commune

  • Ascenseur : Non
  • Surface habitable : 28 m²
  • Parking : Oui

Localisation du bien

VENCE (06140) , ALPES-MARITIMES (06) - PROVENCE-ALPES-COTE-D-AZUR

Ce bien n'est pas géolocalisé, pour connaitre sa géolocalisation, merci de contacter l'agence.

Consommation énergétique

  • E (348 kWh/m² an)
    E (56 kgCO2/m².an)
    Plus d'info
    348
    56
    56
  • DPE réalisé après le 1er juillet 2021.
  • Entre 880 € TTC / an et 1120 € TTC / an
    01/01/2021
  • Logement à consommation énergétique excessive : classe E

Nos professionnels vous accompagnent

Contactez notre agence !

8 AVENUE DE LA RESISTANCE 06140 VENCE

Appeler l’agence Tél : 04 93 58 19 24

* Champs obligatoires

Nous vous informons de l’existence de la liste d’opposition au démarchage téléphonique « BLOCTEL » sur laquelle vous pouvez vous inscrire (https://www.bloctel.gouv.fr).

En complétant le formulaire «CONTACTEZ NOTRE AGENCE », je reconnais expressément que je consens au traitement de mes données personnelles et que je dispose du droit de retirer mon consentement à tout moment en m'adressant à support@fnaim.fr.
En savoir plus sur la gestion de vos données et droits : consulter nos mentions légales, « article 5/ Données à caractère personnel ».

En envoyant ce message, vous acceptez les conditions d'utilisation du site. Plus d'infos