Fnaim.fr
Menu

Acheter

Achat Appartement 2 pièces 42m²

201 500 Honoraires charge acquéreur inclus : 6.1% TTC (190004 € hors honoraires)

1 chambre Ascenseur

Description du bien


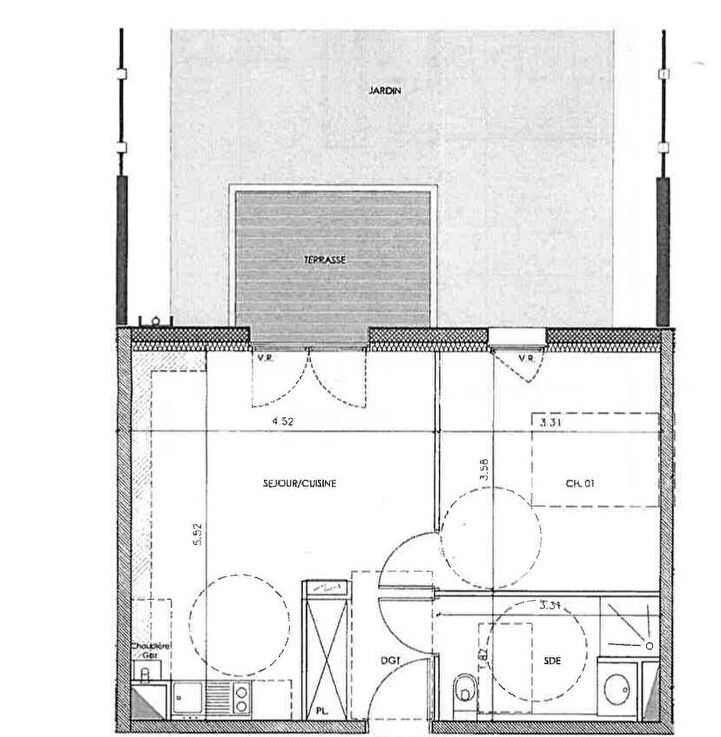
Appartement T2 à Guérande, à deux pas des Salines et de la gare de la Baule Escoublac dans une copropriété de 2013, au rez-de-chaussée, comprenant : une entrée, un séjour-cuisine, une chambre, une salle d'eau avec W.C. Une terrasse et un jardin privatif.
Une place de stationnement.

Bien soumis au statut de la copropriété :
Nombre de lots : 104 lots dont 42 lots d'habitation
Charges annuelles : 948Euro
Procédure en cours

Prix de vente : 201 500.00Euro frais d'agence inclus dont 11500Euro d'honoraires soit 6.05% (prix hors honoraires : 190 000.00Euro)

Les informations sur les risques auxquels ce bien est exposé sont disponibles sur le site Géorisques : www.georisques.gouv.fr

Maguy vous propose également d'autres biens sur Saint-Nazaire, Saint-Marc sur Mer, l'Immaculée, Pornichet, Saint-André des Eaux, La Baule-Escoublac, Ruban bleu, Centre-ville, Mairie, Sautron, Pertuishaud, Kerlédé, Porcé...

Etat des risques et pollutions

Les informations sur les risques auxquels ce bien est exposé sont disponibles sur le site Géorisques : www.georisques.gouv.fr.

Caractéristiques du bien

Composition du bien

  • Type d'habitation : Appartement
  • Nombre de pièce(s) : 2
  • Nombre de chambre(s) : 1

Aménagement du bien

Extérieur

  • Terrasse : Non
  • Balcon : Non

Partie Commune

  • Ascenseur : Oui
  • Surface habitable : 42 m²

Informations sur la copropriété

  • Bien soumis au statut de la copropriété
  • Nombre de lots : 104
  • Quote part charges courantes : 948 €/an
  • Procédure en cours : Oui

Localisation du bien

Ce bien n'est pas géolocalisé, pour connaitre sa géolocalisation, merci de contacter l'agence.

Consommation énergétique

  • C (97 kWh/m² an)
    C (18 kgCO2/m².an)
    Plus d'info
    97
    18
    18
  • DPE réalisé après le 1er juillet 2021.
  • Entre 460 € TTC / an et 650 € TTC / an
    Non communiqué

Nos professionnels vous accompagnent

Contactez notre agence !

17 RUE ALBERT DE MUN 44600 ST NAZAIRE

Appeler l’agence Tél : 0251101100

* Champs obligatoires

Nous vous informons de l’existence de la liste d’opposition au démarchage téléphonique « BLOCTEL » sur laquelle vous pouvez vous inscrire (https://www.bloctel.gouv.fr).

En complétant le formulaire «CONTACTEZ NOTRE AGENCE », je reconnais expressément que je consens au traitement de mes données personnelles et que je dispose du droit de retirer mon consentement à tout moment en m'adressant à support@fnaim.fr.
En savoir plus sur la gestion de vos données et droits : consulter nos mentions légales, « article 5/ Données à caractère personnel ».

En envoyant ce message, vous acceptez les conditions d'utilisation du site. Plus d'infos