Fnaim.fr
Menu

Acheter

Réf. 412505HPT

Achat Appartement 2 pièces 37m² DIEPPE 76200

75 000 Honoraires charge acquéreur inclus : 8,7% TTC (68997 € hors honoraires)

1 chambre Balcon

Description du bien

Situé au coeur de Dieppe, dans un secteur recherché à proximité immédiate des commerces, commodités, transports, et à 5 minutes à pied de la plage, de l'hôpital et de la gare routière, cet appartement de 37 m² constitue une excellente opportunité d'investissement.

Installé au 1er étage d'un immeuble de 5 logements (copropriété en cours de création), ce bien offre un fort potentiel de rénovation. L'agencement intérieur est modulable grâce à des cloisons modifiables. Des plans d'aménagement sont proposés afin d'optimiser les volumes et la fonctionnalité du logement.

Ce bien convient parfaitement pour un premier achat, une résidence secondaire ou un investissement locatif. Il est éligible au dispositif fiscal De Normandie, permettant une réduction d'impôt sous conditions de rénovation et de location.

Caractéristiques principales :
Surface : 37 m²
Étage : 1er sur 2
Travaux de rénovation à prévoir
Petite copropriété de 5 lots, faibles charges estimées
Emplacement central, proche plage, gare et centre-ville
Possibilité de livraison clé en main après travaux (hors mobilier)

DPE estimé après rénovation : Classe D
Prix estimé après rénovation : 105 000 euros

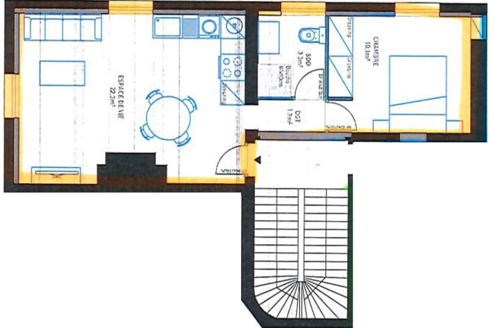
Composition actuelle (modifiable) :
Entrée
Séjour avec coin cuisine
Dégagement
WC indépendant
Salle d'eau
Chambre

Conditions financières :
Prix de vente F.A.I. : 75 000 euros
(incluant 6 000 euros d'honoraires TTC à la charge de l'acquéreur, soit 8,7 %)
Prix net vendeur : 69 000 euros

Bien soumis au régime de la copropriété
Nombre de lots : 5
Charges annuelles : non définies à ce jour

Pour tout renseignement complémentaire ou pour organiser une visite, veuillez nous contacter.

Les informations sur les risques auxquels ce bien est exposé sont disponibles sur le site : www.georisques.gouv.fr

DPE F - GES F
Montant estimé des dépenses annuelles d'énergie pour un usage standard entre 3 789 euros et 5 127 euros indexées aux années 2021, 2022 et 2023 (ou 2021 uniquement) (si logement F ou G 'Logement à consommation énergétique excessive : classe F ou G')
Pour visiter et vous accompagner dans votre projet, contactez Thierry CARPENTIER, au 0782782726 ou, par courriel à t.carpentier@proprietes-privees.com.
Selon l'article L.561.5 du Code Monétaire et Financier, pour l'organisation de la visite, la présentation d'une pièce d'identité vous sera demandée.
Cette présente annonce a été rédigée sous la responsabilité éditoriale de Thierry CARPENTIER agissant sous le statut d'agent commercial immatriculé au RSAC DIEPPE 348 554 22 auprès de SAS PROPRIETES PRIVEES, au capital de 44 920 euros, ZAC LE CHÊNE FERRÉ - 44 ALLÉE DES CINQ CONTINENTS 44120 VERTOU; SIRET 487 624 777 00040, RCS Nantes. Carte Professionnelle Transactions sur immeubles et fonds de commerce (T) et Gestion immobilière (G) n°CPI 4401 2016 000 010 388 délivrée par la CCI Nantes - Saint Nazaire. Compte séquestre n°30932508467 BPA SAINT-SEBASTIEN-SUR-LOIRE (44230). Garantie GALIAN-SMABTP - 89 rue de la Boétie, 75008 Paris - n°28137 J pour 2 000 000 euros pour T et 120 000 euros pour G. Assurance responsabilité civile professionnelle par GALIAN-SMABTP n° de police 28137.J

Mandat réf : 412505 - Le professionnel garantit et sécurise votre projet immobilier. (8.70 % honoraires TTC à la charge de l'acquéreur.)
Copropriété de 5 lots - dont 5 lots habitation.().
Thierry CARPENTIER (EI) Agent Commercial - Numéro RSAC : DIEPPE 348 554 22 - .

Etat des risques et pollutions

Les informations sur les risques auxquels ce bien est exposé sont disponibles sur le site Géorisques : www.georisques.gouv.fr.

Caractéristiques du bien

Composition du bien

  • Type d'habitation : Appartement
  • Cuisine : Simple m²
  • Nombre de pièce(s) : 2
  • Nombre de chambre(s) : 1

Aménagement du bien

Extérieur

  • Terrasse : Non
  • Balcon : Oui

Partie Commune

  • Ascenseur : Non
  • Surface habitable : 37 m²

Informations sur la copropriété

  • Bien soumis au statut de la copropriété
  • Nombre de lots : 5
  • Procédure en cours : Non

Localisation du bien

DIEPPE (76200) , SEINE-MARITIME (76) - NORMANDIE

Ce bien n'est pas géolocalisé, pour connaitre sa géolocalisation, merci de contacter l'agence.

Consommation énergétique

  • F (403 kWh/m² an)
    F (75 kgCO2/m².an)
    Plus d'info
    403
    75
    75
  • DPE réalisé après le 1er juillet 2021.
  • Entre 3789 € TTC / an et 5127 € TTC / an
    Non communiqué
  • Logement à consommation énergétique excessive : classe F

Nos professionnels vous accompagnent

Contactez notre agence !

44 Allée des Cinq Continents ZAC Le Chêne Ferré 44120 VERTOU

Appeler l’agence Tél : 07 82 78 27 26

* Champs obligatoires

Nous vous informons de l’existence de la liste d’opposition au démarchage téléphonique « BLOCTEL » sur laquelle vous pouvez vous inscrire (https://www.bloctel.gouv.fr).

En complétant le formulaire «CONTACTEZ NOTRE AGENCE », je reconnais expressément que je consens au traitement de mes données personnelles et que je dispose du droit de retirer mon consentement à tout moment en m'adressant à support@fnaim.fr.
En savoir plus sur la gestion de vos données et droits : consulter nos mentions légales, « article 5/ Données à caractère personnel ».

En envoyant ce message, vous acceptez les conditions d'utilisation du site. Plus d'infos