Fnaim.fr
Menu

Acheter

Visite virtuelle

Achat Appartement 3 pièces 60m²

204 976 Honoraires charge vendeur

2 chambres Ascenseur Parking / Garage

Description du bien


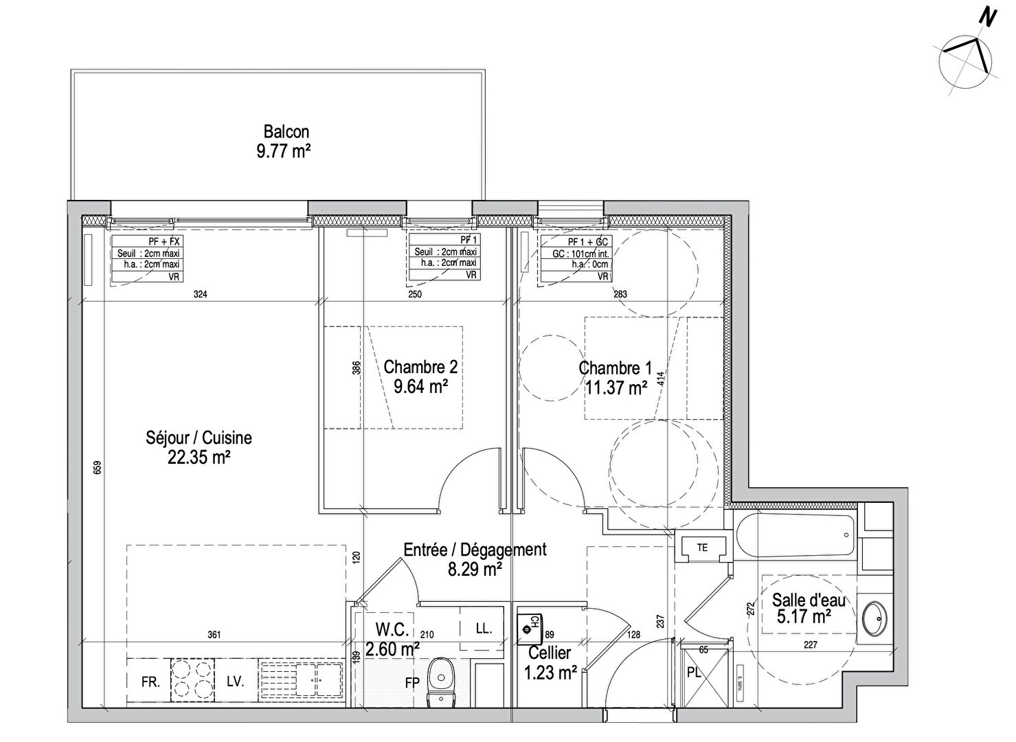
Situé au 1er étage d'une copropriété de 3 étages, cet appartement de 3 pièces, d'une surface habitable de 60,65 m², représente une véritable opportunité d'investissement. Il dispose d'un balcon de près de 10 m², parfait pour profiter des espaces extérieurs.

L'appartement, orienté Nord-Ouest, bénéficie d'une belle luminosité et offre une vue dégagée. Le loyer estimé est de 665 Euro par mois, ce qui en fait un investissement locatif particulièrement attractif.

La livraison du bien est prévue pour le 2ème trimestre 2025 et le projet est actable, vous garantissant ainsi une acquisition rapide et un investissement sécurisé.

A savoir : Cet appartement fait partie d'une construction neuve, ce qui vous permet de bénéficier de frais de notaire réduits.

À propos du programme immobilier "Liberty" :
Située au nord de Nancy, la résidence "Liberty" se trouve à proximité des établissements scolaires, des infrastructures de santé et des transports en commun. En bordure d'un bois classé, cette résidence neuve vous propose des appartements de standing, allant du 3 au 5 pièces, lumineux et offrant de belles vues sur la verdure environnante. Chaque logement est prolongé par des espaces extérieurs généreux, avec des terrasses allant jusqu'à 75 m² ? un bien rare à quelques minutes du centre historique de Nancy.

Avantages supplémentaires :

Pour toutes réservations entre le 26 mai et le 20 juillet 2025, vous aurez la possibilité de faire profiter à vos clients une remise de 4% sur le prix TTC ou bien 2% de remise + FRAIS DE NOTAIRE OFFERTS !

Nous avons également d'autres biens disponibles à la vente, allant du T3 au T5, dans la même résidence.

Vous souhaitez découvrir ce bien ?
Contactez-moi :
- o7.81.56.32.53
- m.streiff@nestenn.com
Maude STREIFF (EI) Agent Commercial - Numéro RSAC : 937 893 048 - NANCY.

Etat des risques et pollutions

Les informations sur les risques auxquels ce bien est exposé sont disponibles sur le site Géorisques : www.georisques.gouv.fr.

Caractéristiques du bien

Composition du bien

  • Type d'habitation : Appartement
  • Cuisine : Type de cuisine Non communique m²
  • Nombre de pièce(s) : 3
  • Nombre de chambre(s) : 2

Aménagement du bien

Extérieur

  • Terrasse : Non
  • Balcon : Non

Partie Commune

  • Ascenseur : Oui
  • Surface habitable : 60 m²
  • Parking : Oui

Informations sur la copropriété

  • Bien soumis au statut de la copropriété
  • Nombre de lots : 111
  • Procédure en cours : Oui

Localisation du bien

Ce bien n'est pas géolocalisé, pour connaitre sa géolocalisation, merci de contacter l'agence.

Consommation énergétique

DPE non soumis
mention indiquée sous la responsabilité de l’agence immobilière

Nos professionnels vous accompagnent

Contactez notre agence !

135 Avenue du Général Leclerc 54000 NANCY

Appeler l’agence Tél : 0383546670

* Champs obligatoires

Nous vous informons de l’existence de la liste d’opposition au démarchage téléphonique « BLOCTEL » sur laquelle vous pouvez vous inscrire (https://www.bloctel.gouv.fr).

En complétant le formulaire «CONTACTEZ NOTRE AGENCE », je reconnais expressément que je consens au traitement de mes données personnelles et que je dispose du droit de retirer mon consentement à tout moment en m'adressant à support@fnaim.fr.
En savoir plus sur la gestion de vos données et droits : consulter nos mentions légales, « article 5/ Données à caractère personnel ».

En envoyant ce message, vous acceptez les conditions d'utilisation du site. Plus d'infos