Fnaim.fr
Menu

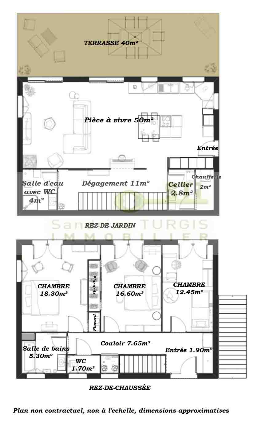
Achat Maison 6 pièces 134m² ROGNY LES SEPT ECLUSES 89220

182 000 Honoraires charge vendeur

3 chambres Jardin Parking / Garage

Description du bien

ROGNY LES SEPT ECLUSES! A moins de 2h de Paris. Située dans ce charmant village traversé par le canal de Briare découvrez cette belle et confortable maison d'environ 134m2 nichée sur son beau terrain avec vue dégagée sur le jardin et un bois offrant au rez-de-jardin: entrée sur une vaste et lumineuse pièce à vivre d'environ 50m2 avec son espace cuisine aménagée/équipée (four, plaque, hotte, lave-vaisselle, réfrigérateur) et son poêle à bois, dégagement, cellier/buanderie, chaufferie, salle d'eau avec WC, puis au rez-de-chaussée: entrée, couloir desservant 3 chambres dont 2 avec placards, salle de bains et WC séparés. A l'extérieur: dépendance attenante, terrasse avec barbecue, bûcher et abri de jardin. Le tout sur un beau jardin clos d'environ 2720 m2 avec verger (pommier, cerisier, prunier, pêcher, poirier...) et espace potager. Les atouts: double vitrage PVC avec volets roulants manuels, isolation des combles récente et pompe à chaleur vous assure un confort thermique indéniable! Reliée au tout à l'égout. N'hésitez plus pour avoir des informations complémentaires ou prendre un rendez-vous de visite à contacter l'agence. Visite virtuelle offerte! 'Les informations sur les risques auxquels ce bien est exposé sont disponibles sur le site Géorisques http://www.georisques.gouv.fr'.

Etat des risques et pollutions

Les informations sur les risques auxquels ce bien est exposé sont disponibles sur le site Géorisques : www.georisques.gouv.fr.

Caractéristiques du bien

Composition du bien

  • Type d'habitation : Maison
  • Nombre de chambres : 3
  • Nombre de salles de bain : 1
  • Cuisine : Américaine

Aménagement du bien

  • Cave : Non
  • Garage / Parking : Oui
    • Surface habitable : 134 m²
    • Parking : Oui

    Localisation du bien

    ROGNY LES SEPT ECLUSES (89220) , YONNE (89) - BOURGOGNE-FRANCHE-COMTÉ

    Ce bien n'est pas géolocalisé, pour connaitre sa géolocalisation, merci de contacter l'agence.

    Consommation énergétique

    • B (100 kWh/m² an)
      A (3 kgCO2/m².an)
      Plus d'info
      100
      3
      3
    • DPE réalisé après le 1er juillet 2021.
    • Entre 860 € TTC / an et 1210 € TTC / an
      01/01/2000

    Nos professionnels vous accompagnent

    Contactez notre agence !

    88 RUE JEAN JAURÈS 45230 CHATILLON COLIGNY

    Appeler l’agence Tél : 02 38 92 54 25

    * Champs obligatoires

    Nous vous informons de l’existence de la liste d’opposition au démarchage téléphonique « BLOCTEL » sur laquelle vous pouvez vous inscrire (https://www.bloctel.gouv.fr).

    En complétant le formulaire «CONTACTEZ NOTRE AGENCE », je reconnais expressément que je consens au traitement de mes données personnelles et que je dispose du droit de retirer mon consentement à tout moment en m'adressant à support@fnaim.fr.
    En savoir plus sur la gestion de vos données et droits : consulter nos mentions légales, « article 5/ Données à caractère personnel ».

    En envoyant ce message, vous acceptez les conditions d'utilisation du site. Plus d'infos