Fnaim.fr
Menu

Acheter

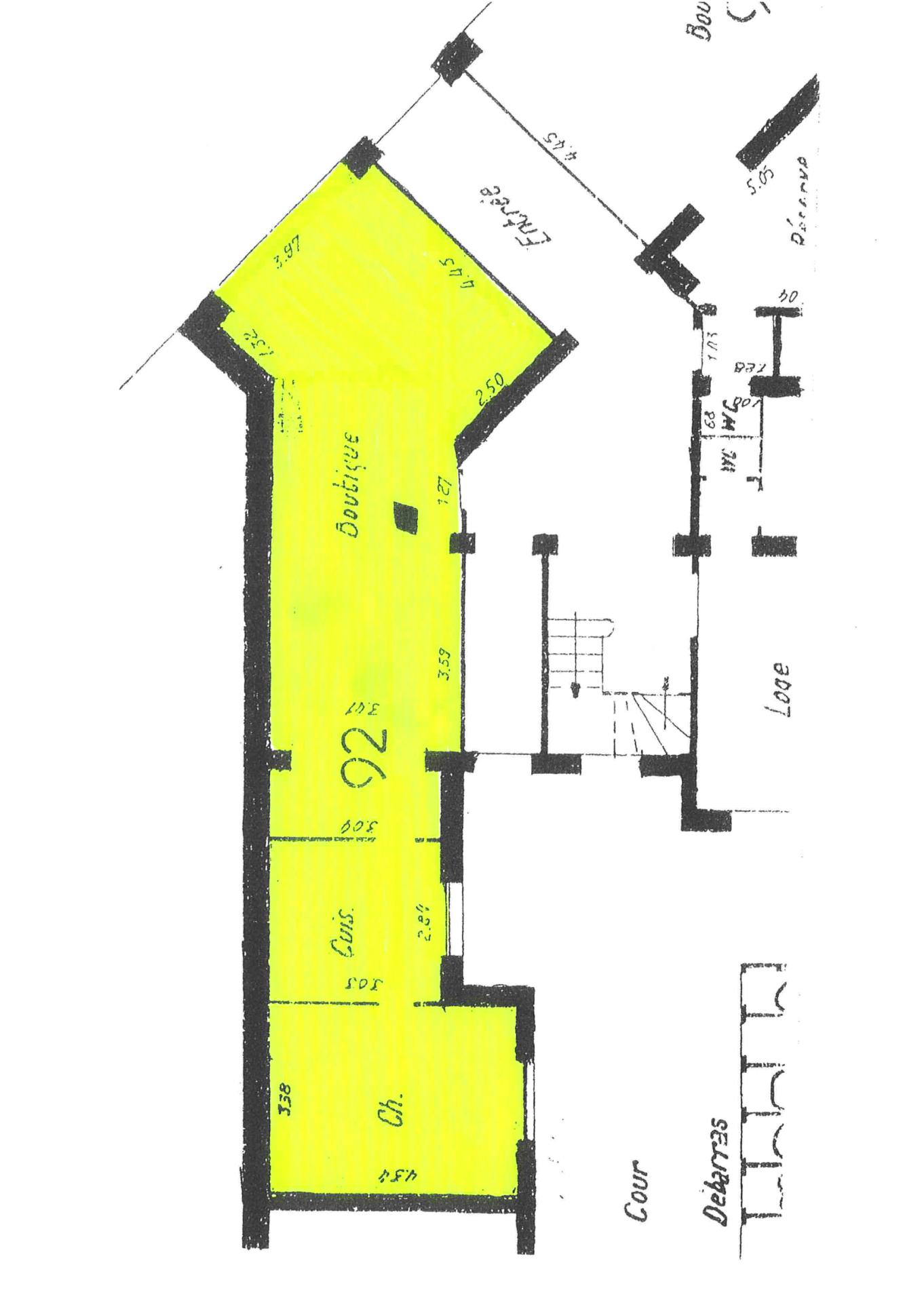
Achat Local commercial 75m² PARIS 18ème

547 000 Honoraires charge vendeur

Description du bien

Murs de boutique, idéalement placés, métro Simplon (ligne 4), emplacement numéro 1, avenue très commerçante, surface de 75m2 environ: 62m2 en rez-de-chaussée et 13m2 en sous-sol. Locaux en bon état. Les murs sont vendus loués avec un loyer mensuel de 2500 EUR hors charges (bail commercial de janvier 2023) Copropriété très bien entretenue.

Etat des risques et pollutions

Les informations sur les risques auxquels ce bien est exposé sont disponibles sur le site Géorisques : www.georisques.gouv.fr.

Caractéristiques du bien

Composition du bien

  • Surface totale : 75 m²

Consommation énergétique

DPE non soumis
mention indiquée sous la responsabilité de l’agence immobilière

Nos professionnels vous accompagnent

Contactez notre agence !

14 PLACE DE LA NATION 75012 PARIS 12

Appeler l’agence Tél : 01 88 40 30 40

* Champs obligatoires

Nous vous informons de l’existence de la liste d’opposition au démarchage téléphonique « BLOCTEL » sur laquelle vous pouvez vous inscrire (https://www.bloctel.gouv.fr).

En complétant le formulaire «CONTACTEZ NOTRE AGENCE », je reconnais expressément que je consens au traitement de mes données personnelles et que je dispose du droit de retirer mon consentement à tout moment en m'adressant à support@fnaim.fr.
En savoir plus sur la gestion de vos données et droits : consulter nos mentions légales, « article 5/ Données à caractère personnel ».

En envoyant ce message, vous acceptez les conditions d'utilisation du site. Plus d'infos