Fnaim.fr
Menu

Acheter

Visite virtuelle
Exclusivité
Réf. DOM8498

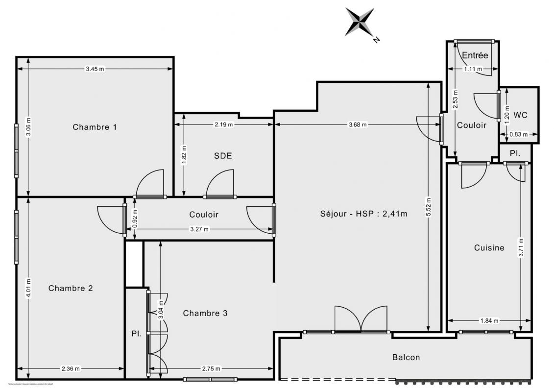
Achat Appartement 4 pièces 67m² CHATILLON 92320

360 000 Honoraires charge vendeur

2 chambres Ascenseur Parking / Garage

Description du bien

Liberkeys vous propose en exclusivité un appartement séduisant de 67 m2, situé à Châtillon, une adresse très demandée pour sa proximité avec la capitale et sa qualité de vie.

Cet appartement comprend :
Une entrée bien pensée qui offre une transition agréable vers un double séjour lumineux (facilement aménageable pour créer une 3ème chambre) s'ouvrant sur un balcon.
Deux chambres, une cuisine, une salle de d'eau et un WC séparé.
Une cave est également comprise dans le lot.
Vous bénéficiez également de la jouissance d'une place de parking à titre gratuit.

Dépenses :
Charges : 720€ par trimestre (coût réel suite à régularisation annuelle : 540€ )
Taxe foncière : 1046€ par an

Sur l'immeuble :
Immeuble de 13 étages construit en 1964
Copropriété de 101 lots très bien entretenue par le gardien et sécurisée
Interphone/Digicode

Sur la localisation :
- A 9 minutes à pied de la station Chatillon-Montrouge (ligne 13) et à 5 minutes à pied du tramway T6 station Vauban.
- Ecole Joliot Curie (maternelle et primaire) à 5 minutes
- Supermarché Auchan et Carrefour Market à 5 minutes

Etat des risques et pollutions

Les informations sur les risques auxquels ce bien est exposé sont disponibles sur le site Géorisques : www.georisques.gouv.fr.

Caractéristiques du bien

Composition du bien

  • Type d'habitation : Appartement
  • Cuisine : Simple m²
  • Nombre de pièce(s) : 4
  • Nombre de chambre(s) : 2

Aménagement du bien

Extérieur

  • Terrasse : Non
  • Balcon : Non

Partie Commune

  • Ascenseur : Oui
  • Surface habitable : 67 m²
  • Parking : Oui

Localisation du bien

CHATILLON (92320) , HAUTS-DE-SEINE (92) - ILE-DE-FRANCE

Consommation énergétique

  • E (292 kWh/m² an)
    E (51 kgCO2/m².an)
    Plus d'info
    292
    51
    51
  • DPE réalisé après le 1er juillet 2021.
  • Entre 1140 € TTC / an et 1590 € TTC / an
    Non communiqué

Nos professionnels vous accompagnent

Contactez notre agence !

20 RUE DE MONTHOLON 75009 PARIS 09

Appeler l’agence Tél : 07 87 56 54 59

* Champs obligatoires

Nous vous informons de l’existence de la liste d’opposition au démarchage téléphonique « BLOCTEL » sur laquelle vous pouvez vous inscrire (https://www.bloctel.gouv.fr).

En complétant le formulaire «CONTACTEZ NOTRE AGENCE », je reconnais expressément que je consens au traitement de mes données personnelles et que je dispose du droit de retirer mon consentement à tout moment en m'adressant à support@fnaim.fr.
En savoir plus sur la gestion de vos données et droits : consulter nos mentions légales, « article 5/ Données à caractère personnel ».

En envoyant ce message, vous acceptez les conditions d'utilisation du site. Plus d'infos