938€ par mois
Idéalement situé au coeur d'un secteur dynamique et privilégié, ce plateau de bureaux d'environ 65 m2 en rez-de-chaussée offre un environnement de travail fonctionnel et agréable.
L'espace est entièrement équipé et comprend :
plusieurs bur...
950€ par mois
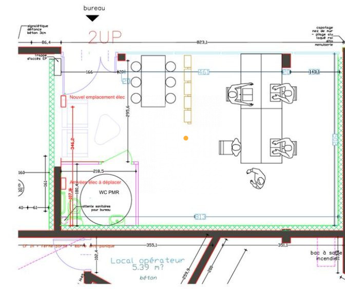
A LOUER BUREAU DE 18.63 M² AMMENAGE
Espace bureau de 19 m² comprenant meuble de bureau et fauteuil, au sein d'un espace tertiaire des espaces communs de 28.62 m² comprenant : cuisine équipé, salle de réunion, sanitaire, terrasses
Service comp...
953€ par mois
À louer bureaux professionnels de 70,60 m², situés dans un ensemble immobilier neuf livré en avril 2026, offrant un environnement de travail moderne et fonctionnel, idéal pour les sociétés de services ou activités tertiaires.
Les locaux comprennent : Un es...
961€ par mois
A LOUER ESPACE BUREAUX NEUF REZÉ ROND-POINT DE LA CARRE
Cet espace de bureaux bénéficie d'une excellente visibilité et d'un accès facile. Avec une superficie d'environ 48 m², l'espace est livré brut de béton, avec les réseaux en attente ...
970€ par mois
A LOUER Local Bureau d'une surface totale de 139.45 m² composé d'un accueil, trois bureaux, un espaces vestiaire et sanitaires
Chauffage individuel gaz, compteur élec individuel,
Quatre emplacements de parking.
idéal pour activités de ...
980€ par mois
Local Commercial/ Bureaux avec vitrine à louer en centre-ville de Saint-Nazaire d'une surface de 87.63 m².
Caractéristiques du bien :
- Un espace accueil
- 3 bureaux fermés
- une salle archives
- un sanitaires et point d'eau
...
984€ par mois
A louer espace de bureaux de 86,60 m² situé au 1er étage d'un immeuble d'entreprise. Il se compose d'un open-space, d'une salle de pause, d'un couloir avec placard et d'un sanitaire privatif.
Places de parking sécurisées et nom...
990€ par mois
NANTES CENTRE VILLE, Espace bureau de 35 m2 à louer
Un emplacement idéal pour votre entreprise, il bénéficie d'une belle visibilité sur un axe passant. Localisation pratique, facilement accessible par les transports en commun, avec les lignes de tramwa...
995€ par mois
LOIRE OCÉAN EXPANSION propose à la location un bureau au R+1 lumineux et fonctionnel d'environ 43 m², situé en c?ur de Nantes à proximité immédiate des commerces, services et transports.
Les locaux comprennent quatre espaces de travail aux surfaces ap...
1 000€ par mois
Un espace de travail pensé pour propulser votre activité !
Installez votre équipe dans un environnement stimulant.
Ici, vous ne louez pas seulement un bureau : vous rejoignez un lieu vivant où échanges, collaborations et opportunités rythment le quotidie...
1 011€ par mois
A louer bureau dans un cabinet médical et paramédical d'une surface de 19,80 m² avec point d'eau, située dans une zone dynamique et bien desservie.
Cet espace en R+1 est une solution idéale pour un praticien de santé. Situé dans un secteur attract...
1 018€ par mois
Au rdc de l'immeuble SOUTH GARDEN, un plateau de bureaux d'environ 67m² , avec 1 places de stationnement.
La cellule est brut de béton, avec fourreaux en attente et huisserie déjà posée. Une belle opportunité pour les entreprises qui recherchent ...
1 041€ par mois
A LOUER TRIGNAC Bureau de 65 m² Composé d'un open space, deux bureaux fermés.
La surface de bureaux sont équipés de sol moquette, murs peints, plinthes techniques en périphérie de l'espace bureau
Sanitaire dans les parties communes de l...
1 049€ par mois
ATLANTIQUE EXPANSION PRO vous propose des surfaces de Bureaux à louer, entre NANTES et SAVENAY
Caractéristiques du bien :
Plateau de bureau 70 m² en rez de chaussée d'un immeuble tertiaire, composé :
- 4 bureaux de 12 à 30 m²,
- Sanitaires...
1 050€ par mois
À louer en R+1, espace professionnel d'une superficie d'environ 69 m², incluant les parties communes, accompagné de deux emplacements de stationnement extérieurs.
Ce plateau en très bon état se compose d'un hall d'accueil, d'une vas...
1 052€ par mois
LOIRE OCEAN EXPANSION vous propose à la location, au 1er et dernier étage, un plateau de bureaux d'une surface de 85m² parties communes incluses, et comprenant 1 open-space, et 1 bureau.
Climatisation réversible, fibre, baie de brassage. Belles prest...
1 080€ par mois
SAINT NAZAIRE - Avenue de la République - en Hyper Centre, Proche du centre commercial "Ruban Bleu" - location d'un magasin en rez-de-chaussée, avec arrière-magasin et cabinet de toilette - 2 caves en sous-sol.
Disponible le 12/02/2026.
L...
1 088€ par mois
A LOUER BUREAUX DIVISIBLES, Parc tertiaire NANTES EST PROCHE PARIDIS BEAUJOIRE
Plateau d'environ 145 m² très lumineux cloisonné, aménagé avec accès PMR.
Distribution : 1 accueil, 3 bureaux fermés, 1 open space, 1 local technique avec point d'ea...
1 100€ par mois
À LOUER BUREAUX ANCENIS-SAINT GEREON BUREAUX 119,65 m ²
Implantez votre entreprise à ANCENIS, Axe ANCENIS A LAVAL à l'entrée de la ZAC AEROPOLE Ancenis-Saint Géréon face à TOYOTA situé à l'entrée de la zone d'activités et à proximité des a...
1 100€ par mois
À LOUER ? Bureau d'environ 40 m² ? Nantes République / Mangin
Situé au rez-de-chaussée d'un immeuble récent, ce bureau d'environ 40 m² bénéficie d'une excellente visibilité grâce à une vitrine linéaire d'environ 8 mètres. Il se trou...
1 100€ par mois
LOIRE OCÉAN EXPANSION vous propose à la location un bureau d'environ 50 m² comprenant : un sas d'entrée, un open space en V pouvant accueillir 3 postes de travail, ainsi que des sanitaires avec point d'eau.
Le local est équipé d'une cli...
1 103€ par mois
À louer bureaux d'une surface de 90.46 m², situés à Saint-Nazaire secteur, au rez-de-chaussée d'un immeuble tertiaire dédié aux activités professionnelles.
Description des locaux :
Hall d'accueil
4 bureaux indépendants
Cuisine av...
1 125€ par mois
A LOUER A BOUGUENAIS - BATIMENT D'ENVIRON 128 M2 COMPRENANT 5 BUREAUX, UNE SALLE DE REUNION, UNE CUISINE, UNE CHAUFFERIE. DISPONIBLE DE SUITE. UN PARKING A L'AVANT PERMETTANT DE STATIONNER 5 VEHICULES ET UN SECOND A L'ARRIERE POUR 5 AUTRES VEHIC...
1 140€ par mois
À louer, plateau professionnel situé au premier étage (R+1), d'une surface totale d'environ 71 m², incluant les parties communes, avec un emplacement de stationnement.
L'espace comprend :
Un open-space lumineux
Un bureau fermé
Un acc...
1 170€ par mois
Bureau à louer à SAINT NAZAIRE VILLE PORT D'une surface de 100 m² avec vitrine
Comprenant un accueil, deux bureaux, une salle de réunion/ bureau, sanitaire avec lave-mains, accessible PMR
Ce local de bureau est idéal pour :
Entreprises...