136 000€
Terrain avec permis de construire accordé à usage mixte de 272 m² avec une face de 8,70 m² environ
Construction d'un local commercial hors nuisance et logement de fonction au dessus ou bureaux.
149 000€
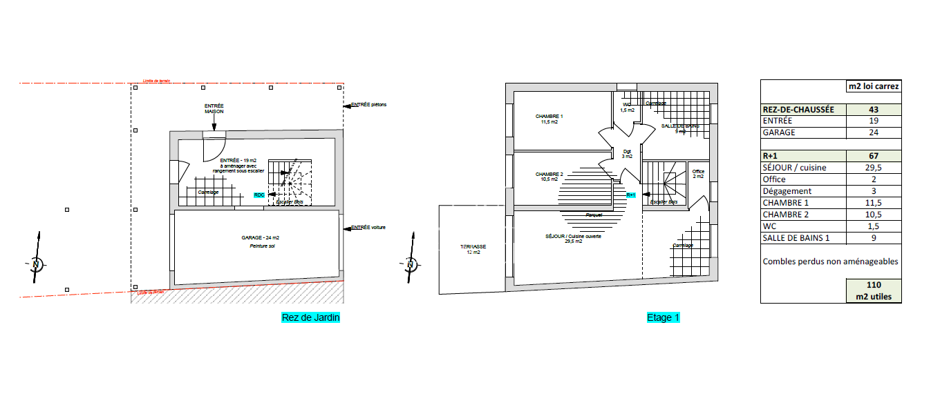
Situé à deux pas de la Gare RER C, nous vous proposons un terrain à bâtir d'une superficie de 259m2 (façade de 8,94m).
Un permis de construire a été délivré avec deux options de constructions :
- l'un d'une superficie de 110m2 avec RDC et ...
193 000€
Situé dans un quartier pavillonnaire, à 5min à pied de la Gare RER C, nous vous proposons un terrain à bâtir d'une superficie de 368m2 (longueur : 39.72m / largeur : 9.20m)
Ce terrain est soumis à l'obtention d'un permis de construire, validé...