57 000€
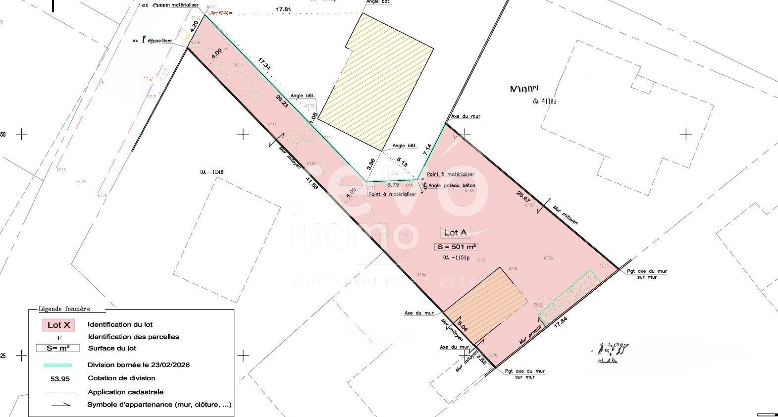
En deuxième rideau parcelle d'environ 25 m sur 18 m restant à viabiliser.
Idéalement placé dans le bourg de la commune, services, école et commodités à pied.
A seulement 5 km de la commune de l'Herbergement, de sa gare SNCF et accès 4 voies ...
83 622€
A seulement 5 minutes de l'Herbergement et 15 minutes de Montaigu, projetez votre future maison neuve sur une des ces parcelles viabilisées et libres de constructeur.
Lotissement de 7 lots, en plein coeur du bourg de ST SULPICE LE VERDON, sur l'ax...