LES ANNONCES
Acheter
59 000€
Aux abords de Locronan, à vendre terrain arboré constructible.
Une surface d'environ 520 m2 avec ancienne grange sur bâti en pierre de 16 mètres de longueur.
De nombreuses possibilités sur ce terrain plat situé sur une route à sens unique.
Les...
65 000€
2 chambres Jardin
À vendre : terrain arboré de 1,5 ha, situé dans un environnement calme, avec une vue dégagée exceptionnelle sur la vallée de la Riolle, entre Ligueil et Manthelan, à moins d'une heure de Tours.
Le terrain comprend une ancienne bâtisse à rénover entière...
37240 LA CHAPELLE BLANCHE ST MARTIN INDRE-ET-LOIRE CENTRE-VAL-DE-LOIRE
72 500€
Ce terrain entièrement viabilsé est idéal pour implanter votre future construction. Entièrement viabilsé, façades de 20 mètres, emprise constructible de 270 m2, exposition est ouest et envirronement de qualité ! Tout est optimisé pour commencer à édifier !
...
82 500€
Extrèment rare, Prix accessible, Façade 16.56 mètres ! Situé dans un quartier prisé et au coeur d'un envirronement calme et verdoyant ce terrain à batir en partie viabilisé va pourra recevoir votre future construction.
Etude de sols effectuée, avis fa...
85 000€
Sur la commune de Saint-Michel-Sur-Loire, pour tout projet immobilier, ce terrain à bâtir avec son Permis de Construire. Cette surface vous offre 115m2 pour réaliser votre rêve grâce à la construction de votre maison idéale. Pour ce qui est du prix de vente, l...
37130 ST MICHEL SUR LOIRE INDRE-ET-LOIRE CENTRE-VAL-DE-LOIRE
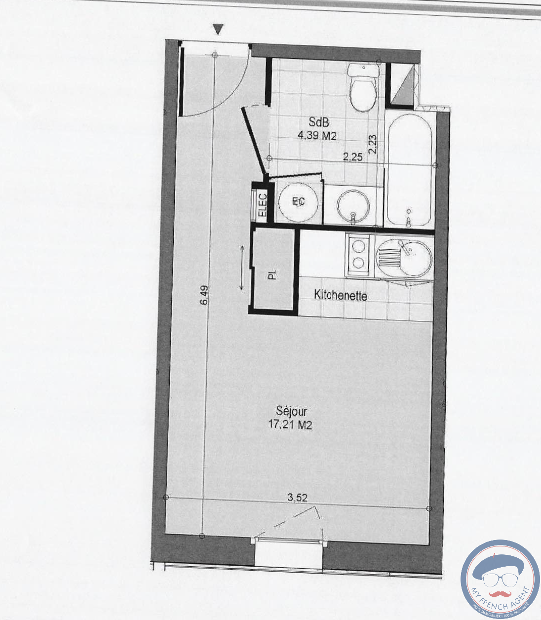
86 000€
Ascenseur
Coup de coeur assuré, pour ce beau studio meublé à vendre, seulement avec my french agent. Il est idéalement situé dans le centre de Tours, boulevard heurteloup, arret du bus 'Renan'. La résidence est sécurisée avec caméras, et le ravalement a été ef...
89 900€
Dans la commune de Saint-Aubin-Sur-Mer, Dans une jolie Villa, Beau F1 qui comprend un entrée avec placard, une cuisine équipée d'un îlot central et de nombreux tiroirs de rangement, une table pour y prendre les repas, un coin nuit avec un vrai lit de 1,40...
99 750€
3 chambres Balcon
!! En exclusivité et seulement chez My French Agent !!
Nous vous proposons au 4ème étage d'une résidence calme (sans ascenseur), cet appartement T4 de 78,63 m2 offrant une configuration fonctionnelle et lumineuse, idéale pour une famille ou un investi...
103 000€
Balcon Ascenseur
CHAMBRAY LES TOURS, à proximité immédiate, de la faculté de Médecine de Trousseau, de la faculté de Grandmont des deux lions, et a deux pas du futur tramway, ce très bel appartement d'environ 30m2, 2ème étage, a entierement était rénové avec soins, tout c...
111 300€
1 chambre
Situé à deux pas du jardin des Prébendes, des commerces et des transports, dans une petite copropriété, duplex de 25, 38 m2 avec sa terrasse privative, comprenant une pièce de vie avec cuisine ouverte aménagée et à l'étage une chambre ainsi qu'une sa...
119 500€
1 chambre Balcon Ascenseur
Au coeur d'une résidence de standing récente et sécurisée cet appartement de type 2 de 38 m2 en très bon état général vous séduira à coup sûr !
Proche des commerces, commodités écoles et hôpital, il dispose d'une entrée avec rangements, d'un...
122 000€
1 chambre Jardin Parking / Garage
Belle opportunité avec cette de grange d'environ 309m2 permettant un beau projet de vie.
Les plus un espace extérieur, un garage indépendant et une grande cave
A ne pas manquer!!!
Contactez vos French Conseillers, Baptiste de LIPOWSKI au 0677285...
37270 MONTLOUIS SUR LOIRE INDRE-ET-LOIRE CENTRE-VAL-DE-LOIRE
131 250€
1 chambre
Situé rue Jolivet, nous vous proposons à la vente cet appartement de type 2 en excellent état comprenant une entrée, une pièce principale avec partie cuisine aménagée et équipée, une belle chambre et une salle d'eau avec wc.
Situé au rez-de-chaussée s...
133 000€
1 chambre Jardin
Vous risquez d'être fortement séduit !!
Située à Chargé, à seulement 5' minutes d'Amboise, cette jolie maison en pierre de tuffeau dispose,
au rdc d'un grand séjour avec cheminée ouvert sur une cuisine équipée et aménagée et d'...
134 000€
Vous cherchez un terrain à batir à Amboise de belle surface et dans un envirronnement pleine de tranquillité ? Celui-ci sera parfait pour édifier votre future construction !
A proximité du centre ville et de la zone commerciale, ce terrain d'une facad...
139 000€
3 chambres Parking / Garage
Située dans un environnement particulièrement calme et agréable, cette maison à fort potentiel offre un cadre de vie idéal. Elle se compose d'une pièce de vie lumineuse ouverte sur le jardin, d'une cuisine séparée, de trois chambres, d'une salle...
37190 VILLAINES LES ROCHERS INDRE-ET-LOIRE CENTRE-VAL-DE-LOIRE
139 000€
1 chambre Balcon Parking / Garage
Venez decouvrir cet appartement situe au 2eme et dernier etage, sans ascenseur, proche des commerces et des facs. Des l'entree, vous serez seduit par un espace de vie confortable avec cuisine ouverte amenagee et equipee donnant sur un balcon sans vis- a-...
140 000€
1 chambre
Saint Avertin : idéalement situé. Secteur calme et recherche à proximité des commerces pour cette maison ancienne en bon état général : salon séjour cuisine ouverte, une chambre, un bureau et une salle d'eau.
Dépendance avec pièce aménageable et buand...
141 750€
1 chambre
Charmant appartement type 2 de 34 m2 idéalement situé à deux pas du jardin des Prébendes, des commerces et des transports, au deuxième et dernier étage d'une petite copropriété, comprenant une belle pièce de vie avec cuisine ouverte aménagée et équpée, un...
143 100€
1 chambre
Idéalement situé à deux pas du jardin des Prébendes, des commerces et des transports, dans une petite copropriété, charmant type 2 de 31, 53 m2 comprenant une belle pièce de vie avec cuisine ouverte aménagée, une chambre, une salle d'eau avec WC.
Copr...
159 600€
2 chambres
Dans le quartier de chateaubanne, à auqelques mètres du boulevard Stalingrad reliant l'axe autoroutier et le centre ville, devenez propriétaire d'un appartement de type T3. A proximité des école et commerces, ce bien se trouve dans une petite copropr...
159 900€
1 chambre Jardin Parking / Garage
Aux portes de Tours, sur la commune de La Membrolle-sur-Choisille, à deux pas du centre-bourg, venez découvrir cette charmante maison composée d'un salon/séjour avec cheminée, d'une cuisine ouverte, de deux chambres en enfilade, d'une salle d...
37390 LA MEMBROLLE SUR CHOISILLE INDRE-ET-LOIRE CENTRE-VAL-DE-LOIRE
166 625€
3 chambres Balcon
Appartement T5 situé en centre-ville de Saint-Pierre-des-Corps.
Au 1er étage sans ascenseur, vous profiterez d'un beau salon-séjour de 30 m2, lumineux, jouissant d'un balcon exposé Sud, d'une cuisine aménagée-équipée, de 3 chambres, d'u...
37700 ST PIERRE DES CORPS INDRE-ET-LOIRE CENTRE-VAL-DE-LOIRE
168 000€
3 chambres
Hypercentre de Chenonceau, à proximité de tous commerces.
Idéalement situé en plein coeur de ce charmant village et des châteaux de la Loire, nous vous proposons à la vente cette maison ancienne en très bon état général composée d'un salon/séjour cuisi...
169 000€
5 chambres Jardin Parking / Garage
Située en périphérie du village de Ciran, entre Ligueil et Loches, cette maison offre un cadre de vie paisible, sans vis-à-vis, sur un beau terrain arboré. Idéale pour une famille à la recherche de tranquillité tout en restant proche des commodités locales. Au...