Fnaim.fr
Menu

Réf. VTE-1889

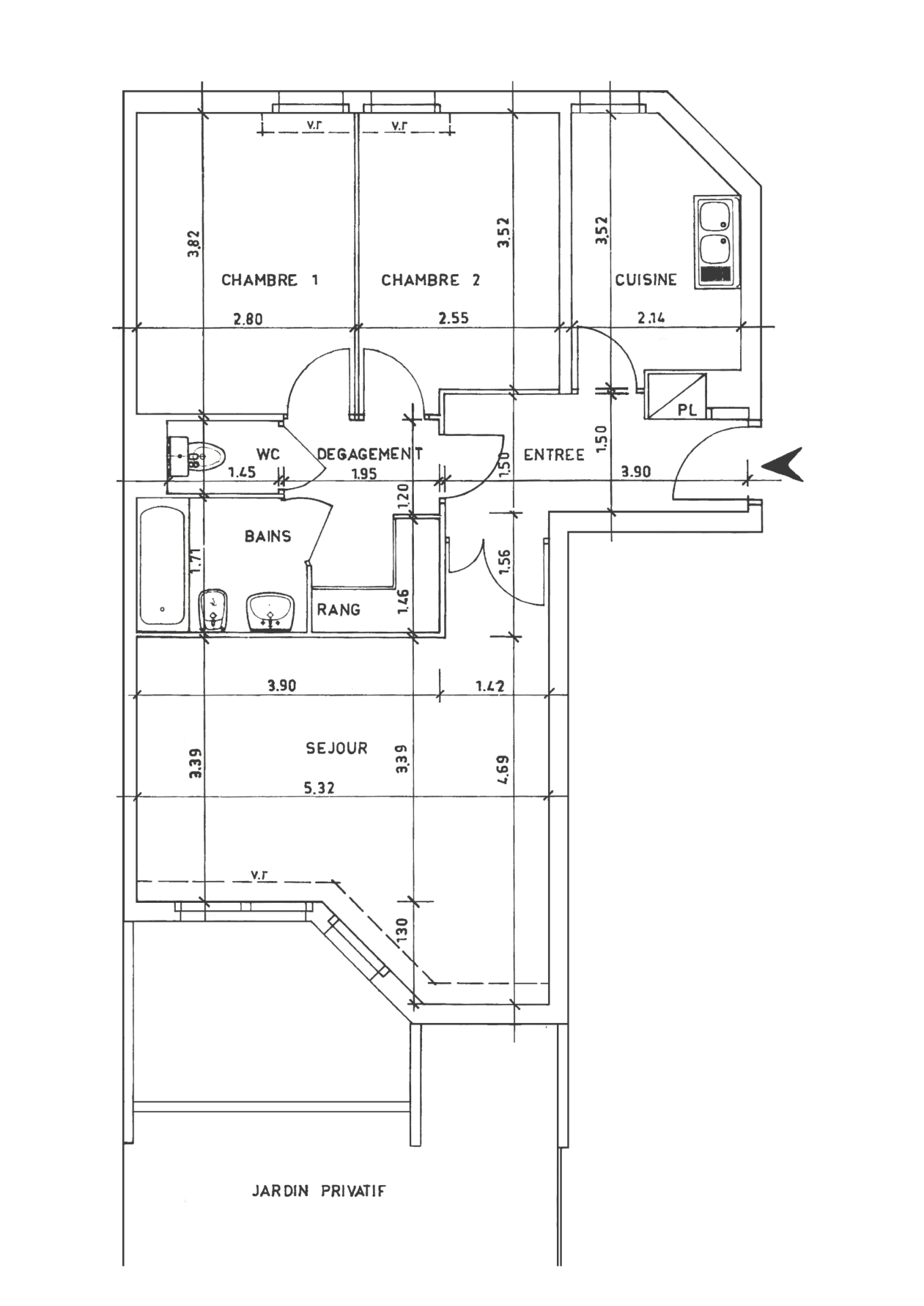
Achat Appartement 3 pièces 65m² CRETEIL 94000

268 000 Honoraires charge vendeur

2 chambres Ascenseur Parking / Garage

Description du bien

OPPORTUNITÉ RARE 3 pièces en front de lac avec terrasse et jardinet. En rez?de?quai, ce bien d'exception offre une vue imprenable sur le lac et un séjour prolongé par une terrasse et un jardinet de 24 m2. Il comprend également une cuisine aménagée, une salle de bains, des WC séparés, deux chambres et un espace de rangement avec buanderie. L'appartement est lumineux, parfaitement agencé et bénéficie d'une exposition sud/ouest. Prestations de qualité : marbre, carrelage, porte palière blindée, double vitrage et volets roulants. En sous?sol, un box double équipé pour la recharge de véhicule électrique ainsi qu'une cave complètent ce bien. Situation idéale : métro Créteil?Préfecture à 10 minutes à pied, proche mairie et centre commercial régional Créteil Soleil. Un cadre de vie recherché, alliant confort, calme et proximité des commodités.

Etat des risques et pollutions

Les informations sur les risques auxquels ce bien est exposé sont disponibles sur le site Géorisques : www.georisques.gouv.fr.

Caractéristiques du bien

Composition du bien

  • Type d'habitation : Appartement
  • Cuisine : Type de cuisine Non communique
  • Nombre de pièce(s) : 3
  • Nombre de chambre(s) : 2
  • Salles de bain : 1

Aménagement du bien

Extérieur

  • Terrasse : Non
  • Balcon : Non

Partie Commune

  • Ascenseur : Oui
  • Surface habitable : 65 m²
  • Parking : Oui

Localisation du bien

CRETEIL (94000) , VAL-DE-MARNE (94) - ILE-DE-FRANCE

Ce bien n'est pas géolocalisé, pour connaitre sa géolocalisation, merci de contacter l'agence.

Consommation énergétique

  • C (169 kWh/m² an)
    C (12 kgCO2/m².an)
    Plus d'info
    169
    12
    12
  • DPE réalisé après le 1er juillet 2021.
  • Entre 770 € TTC / an et 1090 € TTC / an
    01/01/2021

Nos professionnels vous accompagnent

Contactez notre agence !

9 PASSAGE DE L'IMAGE ST MARTIN 94000 CRETEIL

Appeler l’agence Tél : 0145131010

* Champs obligatoires

Nous vous informons de l’existence de la liste d’opposition au démarchage téléphonique « BLOCTEL » sur laquelle vous pouvez vous inscrire (https://www.bloctel.gouv.fr).

En complétant le formulaire «CONTACTEZ NOTRE AGENCE », je reconnais expressément que je consens au traitement de mes données personnelles et que je dispose du droit de retirer mon consentement à tout moment en m'adressant à support@fnaim.fr.
En savoir plus sur la gestion de vos données et droits : consulter nos mentions légales, « article 5/ Données à caractère personnel ».

En envoyant ce message, vous acceptez les conditions d'utilisation du site. Plus d'infos