Fnaim.fr
Menu

Exclusivité
Réf. DOM29146

Achat Appartement 1 pièce 33m² CRETEIL 94000

166 720 Honoraires charge vendeur

Balcon Ascenseur

Description du bien

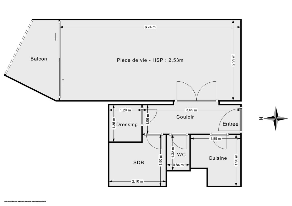
Liberkeys vous propose, en mandat exclusif, ce charmant appartement de 33 m2 (Loi Carrez) idéal pour un primo-accédant ou un investisseur souhaitant une mise en location maîtrisée. Situé à Créteil, il se compose d'une entrée de 3 m2 desservant un séjour lumineux de 19 m2, une cuisine classique de 3 m2, une salle de bains (3 m2) et des toilettes séparées. Un balcon de 3 m2 prolonge la pièce de vie pour profiter des beaux jours, et un cellier complète le bien pour un rangement optimal.
Confort et praticité : petite réserve de 1 m2, agencement fonctionnel, belles possibilités d'aménagement pour optimiser la surface. Exposition favorable offrant une agréable luminosité naturelle. Proche des transports (métro ligne 8 -- station Créteil Préfecture à environ 450 m, ~6 min à pied) et des commodités : commerces de proximité, écoles, et accès rapide au centre de Paris en une vingtaine de minutes. À deux pas des espaces verts et du lac de Créteil, idéal pour les promenades et la détente.
DPE C et GES C
Charges de copropriété 438,57 € par trimestre (soit environ 146,19€/mois). Taxe foncière : environ 700 €/an. Bien entretenu, excellent potentiel locatif dans un secteur très demandé du Val-de-Marne.
Les honoraires sont à la charge du vendeur.
N° Agent immobilier RSAC 104 032 941

Etat des risques et pollutions

Les informations sur les risques auxquels ce bien est exposé sont disponibles sur le site Géorisques : www.georisques.gouv.fr.

Caractéristiques du bien

Composition du bien

  • Type d'habitation : Appartement
  • Cuisine : Aménagée
  • Nombre de pièce(s) : 1
  • Salles de bain : 1

Aménagement du bien

Extérieur

  • Terrasse : Non
  • Balcon : Oui

Partie Commune

  • Ascenseur : Oui
  • Surface habitable : 33 m²

Localisation du bien

CRETEIL (94000) , VAL-DE-MARNE (94) - ILE-DE-FRANCE

Consommation énergétique

  • C (146 kWh/m² an)
    C (44 kgCO2/m².an)
    Plus d'info
    146
    44
    44
  • DPE réalisé après le 1er juillet 2021.
  • Entre 480 € TTC / an et 710 € TTC / an
    Non communiqué

Nos professionnels vous accompagnent

Contactez notre agence !

20 RUE DE MONTHOLON 75009 PARIS 09

Appeler l’agence Tél : 06 23 02 81 04

* Champs obligatoires

Nous vous informons de l’existence de la liste d’opposition au démarchage téléphonique « BLOCTEL » sur laquelle vous pouvez vous inscrire (https://www.bloctel.gouv.fr).

En complétant le formulaire «CONTACTEZ NOTRE AGENCE », je reconnais expressément que je consens au traitement de mes données personnelles et que je dispose du droit de retirer mon consentement à tout moment en m'adressant à support@fnaim.fr.
En savoir plus sur la gestion de vos données et droits : consulter nos mentions légales, « article 5/ Données à caractère personnel ».

En envoyant ce message, vous acceptez les conditions d'utilisation du site. Plus d'infos