Fnaim.fr
Menu

Visite virtuelle
Exclusivité
Réf. DOM29269

Achat Appartement 2 pièces 47m² BORDEAUX 33000

138 000 Honoraires charge vendeur

1 chambre Balcon Ascenseur Parking / Garage

Description du bien

Liberkeys vous propose, en exclusivité, cet appartement lumineux de 47 m² situé dans le quartier Gare Saint-Jean - Belcier à Bordeaux, avec une place de parking incluse, un atout rare sur le secteur.

Le bien est actuellement loué 720 € / mois en non meublé, avec un bail en cours jusqu'au 25/12/2028, assurant une rentabilité immédiate et sécurisée. À l'issue du bail, un passage en location meublée permettra d'optimiser la rentabilité, avec un loyer estimé à 893 € hors charges conformément à l'encadrement des loyers.

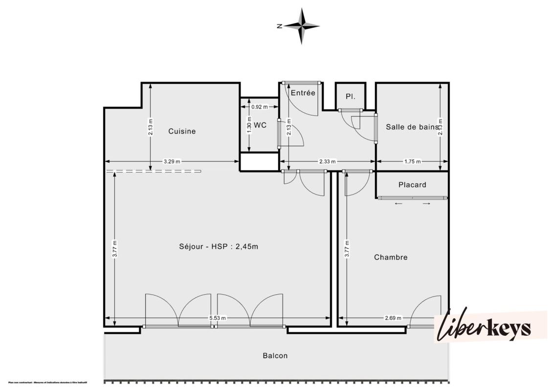
L'appartement se compose d'un séjour lumineux ouvrant sur un balcon, d'une cuisine indépendante, d'une chambre spacieuse, d'une salle de bains et de WC séparés. Il bénéficie également d'une entrée sécurisée.

Situé à moins de 300 m des lignes de tram C et F et à 10 minutes à pied de la gare Saint-Jean, il offre une excellente accessibilité et une forte attractivité locative.

Caractéristiques principales :

Séjour lumineux avec balcon
Cuisine indépendante
1 chambre spacieuse
Salle de bains + WC séparé
Place de parking sécurisée incluse
Entrée sécurisée

Avantages :

Bien déjà loué (revenus immédiats)
Potentiel de revalorisation en meublé
Emplacement recherché proche gare et tram
Place de parking rare sur le secteur
Fort potentiel locatif

Informations financières :

Loyer actuel : 720 € / mois
Projection locative meublée : 893 € hors charges
Charges de copropriété : 300 € / trimestre
Taxe foncière : 950 € / an
Estimation des dépenses annuelles d'énergie : 640 € - 850 €

Ce bien vous plaît ? Visitez-le virtuellement en 3D sur le site de Liberkeys ou contactez directement votre conseiller. Grand Mathieu, agent commercial immatriculé au RSAC de Clermont Ferrand sous le numéro 852 423 219. Référence annonce : DOM29269. Date de réalisation du diagnostic : 20/09/2021. Les honoraires sont à la charge du vendeur. Géorisque disponible sur le site : https://www.georisques.gouv.fr/

Etat des risques et pollutions

Les informations sur les risques auxquels ce bien est exposé sont disponibles sur le site Géorisques : www.georisques.gouv.fr.

Caractéristiques du bien

Composition du bien

  • Type d'habitation : Appartement
  • Cuisine : Simple
  • Nombre de pièce(s) : 2
  • Nombre de chambre(s) : 1

Aménagement du bien

Extérieur

  • Terrasse : Non
  • Balcon : Oui

Partie Commune

  • Ascenseur : Oui
  • Surface habitable : 47 m²
  • Parking : Oui

Informations sur la copropriété

  • Bien soumis au statut de la copropriété
  • Nombre de lots : 880
  • Quote part charges courantes : 1200 €/an
  • Procédure en cours : Non

Localisation du bien

BORDEAUX (33000) , GIRONDE (33) - NOUVELLE-AQUITAINE

Consommation énergétique

  • C (120 kWh/m² an)
    A (4 kgCO2/m².an)
    Plus d'info
    120
    4
    4
  • DPE réalisé après le 1er juillet 2021.
  • Entre 640 € TTC / an et 850 € TTC / an
    Non communiqué

Nos professionnels vous accompagnent

Contactez notre agence !

20 RUE DE MONTHOLON 75009 PARIS 09

Appeler l’agence Tél : 07 43 28 26 36

* Champs obligatoires

Nous vous informons de l’existence de la liste d’opposition au démarchage téléphonique « BLOCTEL » sur laquelle vous pouvez vous inscrire (https://www.bloctel.gouv.fr).

En complétant le formulaire «CONTACTEZ NOTRE AGENCE », je reconnais expressément que je consens au traitement de mes données personnelles et que je dispose du droit de retirer mon consentement à tout moment en m'adressant à support@fnaim.fr.
En savoir plus sur la gestion de vos données et droits : consulter nos mentions légales, « article 5/ Données à caractère personnel ».

En envoyant ce message, vous acceptez les conditions d'utilisation du site. Plus d'infos