Fnaim.fr
Menu

Achat Maison 6 pièces 120m² NICE 06100

638 000 Honoraires charge vendeur

4 chambres Jardin Parking / Garage

Description du bien

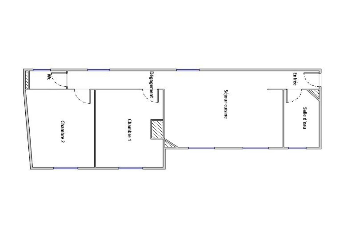
Bienvenue chez Côté Vence Côté Mer Immobilier, votre agence de confiance ! Nous avons le plaisir de vous proposer dans le secteur recherché du Parc Chambrun à Nice, cette maison d'environ 120 m2 offre une configuration intéressante et un fort potentiel d'évolution. Elle se compose actuellement de deux appartements 3 pièces, répartis de manière indépendante, ainsi que d'un garage, apportant un réel confort au quotidien. Une possibilité de réunir les deux lots permet d'envisager la création d'une maison familiale, selon vos besoins et votre projet. Ce bien aux multiples possibilités conviendra aussi bien pour : une résidence principale, un projet familial, un investissement locatif. Son emplacement dans un quartier résidentiel apprécié, à proximité des commodités, des transports et des établissements scolaires, en fait une opportunité sur le secteur. Un bien offrant flexibilité et potentiel, à découvrir sans tarder. Côté Vence Côté Mer immobilier, spécialisée dans la transaction immobilière de villas, maisons, terrains et appartements du pays Vençois jusqu'au bord de Mer. Une agence à votre écoute pour réaliser votre projet immobilier.

Etat des risques et pollutions

Les informations sur les risques auxquels ce bien est exposé sont disponibles sur le site Géorisques : www.georisques.gouv.fr.

Caractéristiques du bien

Composition du bien

  • Type d'habitation : Maison
  • Nombre de chambres : 4
  • Nombre de salles de bain : 2
  • Cuisine : Type de cuisine Non communique

Aménagement du bien

  • Cave : Non
  • Garage / Parking : Oui
    • Surface habitable : 120 m²
    • Parking : Oui

    Localisation du bien

    NICE (06100) , ALPES-MARITIMES (06) - PROVENCE-ALPES-COTE-D-AZUR

    Ce bien n'est pas géolocalisé, pour connaitre sa géolocalisation, merci de contacter l'agence.

    Consommation énergétique

    • E (318 kWh/m² an)
      F (70 kgCO2/m².an)
      Plus d'info
      318
      70
      70
    • DPE réalisé après le 1er juillet 2021.
    • Entre 3230 € TTC / an et 4420 € TTC / an
      01/01/2023

    Nos professionnels vous accompagnent

    Contactez notre agence !

    C/O BAOUSCAMP 32 PLACE DU GRAND JARDIN 06140 VENCE

    Appeler l’agence Tél : 06 08 73 99 73

    * Champs obligatoires

    Nous vous informons de l’existence de la liste d’opposition au démarchage téléphonique « BLOCTEL » sur laquelle vous pouvez vous inscrire (https://www.bloctel.gouv.fr).

    En complétant le formulaire «CONTACTEZ NOTRE AGENCE », je reconnais expressément que je consens au traitement de mes données personnelles et que je dispose du droit de retirer mon consentement à tout moment en m'adressant à support@fnaim.fr.
    En savoir plus sur la gestion de vos données et droits : consulter nos mentions légales, « article 5/ Données à caractère personnel ».

    En envoyant ce message, vous acceptez les conditions d'utilisation du site. Plus d'infos