Fnaim.fr
Menu

Achat Maison 4 pièces 90m² ARNAS 69400

250 000 Honoraires charge vendeur

3 chambres Jardin Parking / Garage

Description du bien

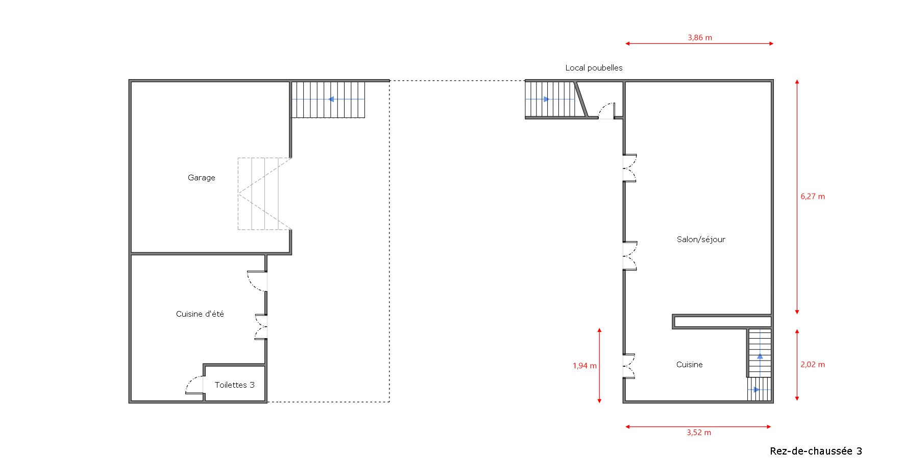
SOUS OFFRE ACCEPTEE Arnas, c'est là que nous sommes, au coeur du village. Dans une impasse, je vous suggère de vous rendre dans cette charmante maison en triplex, qui offre un extérieur relaxant clos de murs, sans aucun vis-à-vis.
Avec une superficie de 90 m2, elle met à votre disposition 3 chambres équipées de placards à l'étage. Au rez-de-jardin, vous pourrez profiter d'un espace de vie confortable et d'une cuisine. Elle est orientée plein EST. Environnement très calme, à deux pas des écoles, au centre du village. Elle a tout pour séduire. Il n'y a pas de travaux à prévoir. Il ne vous reste plus qu'à déposer vos valises.
Deux voitures peuvent être garées facilement dans la cour, en plus du garage. Une dépendance vous procurera du rangement supplémentaire, possibilité de terminer l'aménagement, idéale pour un adolescent, télétravail ou autre...
Contact: Florence DUMONT 07.88.45.68.18 RSAC 345 370 266 (EI)

Etat des risques et pollutions

Les informations sur les risques auxquels ce bien est exposé sont disponibles sur le site Géorisques : www.georisques.gouv.fr.

Caractéristiques du bien

Composition du bien

  • Type d'habitation : Maison
  • Nombre de chambres : 3
  • Cuisine : Type de cuisine Non communique

Aménagement du bien

  • Cave : Non
  • Garage / Parking : Oui
    • Surface habitable : 90 m²
    • Parking : Oui

    Localisation du bien

    ARNAS (69400) , RHONE (69) - AUVERGNE-RHÔNE-ALPES

    Ce bien n'est pas géolocalisé, pour connaitre sa géolocalisation, merci de contacter l'agence.

    Consommation énergétique

    • E (287 kWh/m² an)
      C (11 kgCO2/m².an)
      Plus d'info
      287
      11
      11
    • DPE réalisé après le 1er juillet 2021.
    • Entre 2460 € TTC / an et 3360 € TTC / an
      01/01/2023

    Nos professionnels vous accompagnent

    Contactez notre agence !

    73 MONTEE DE L ECLUSE 69640 VILLE SUR JARNIOUX

    Appeler l’agence Tél : 0788456818

    * Champs obligatoires

    Nous vous informons de l’existence de la liste d’opposition au démarchage téléphonique « BLOCTEL » sur laquelle vous pouvez vous inscrire (https://www.bloctel.gouv.fr).

    En complétant le formulaire «CONTACTEZ NOTRE AGENCE », je reconnais expressément que je consens au traitement de mes données personnelles et que je dispose du droit de retirer mon consentement à tout moment en m'adressant à support@fnaim.fr.
    En savoir plus sur la gestion de vos données et droits : consulter nos mentions légales, « article 5/ Données à caractère personnel ».

    En envoyant ce message, vous acceptez les conditions d'utilisation du site. Plus d'infos