Fnaim.fr
Menu

Acheter

Réf. DOM25163

Achat Appartement 4 pièces 166m² LILLE 59800

989 000 Honoraires charge vendeur

3 chambres Ascenseur Parking / Garage

Description du bien

[Visite virtuelle complète du bien disponible sur demande]

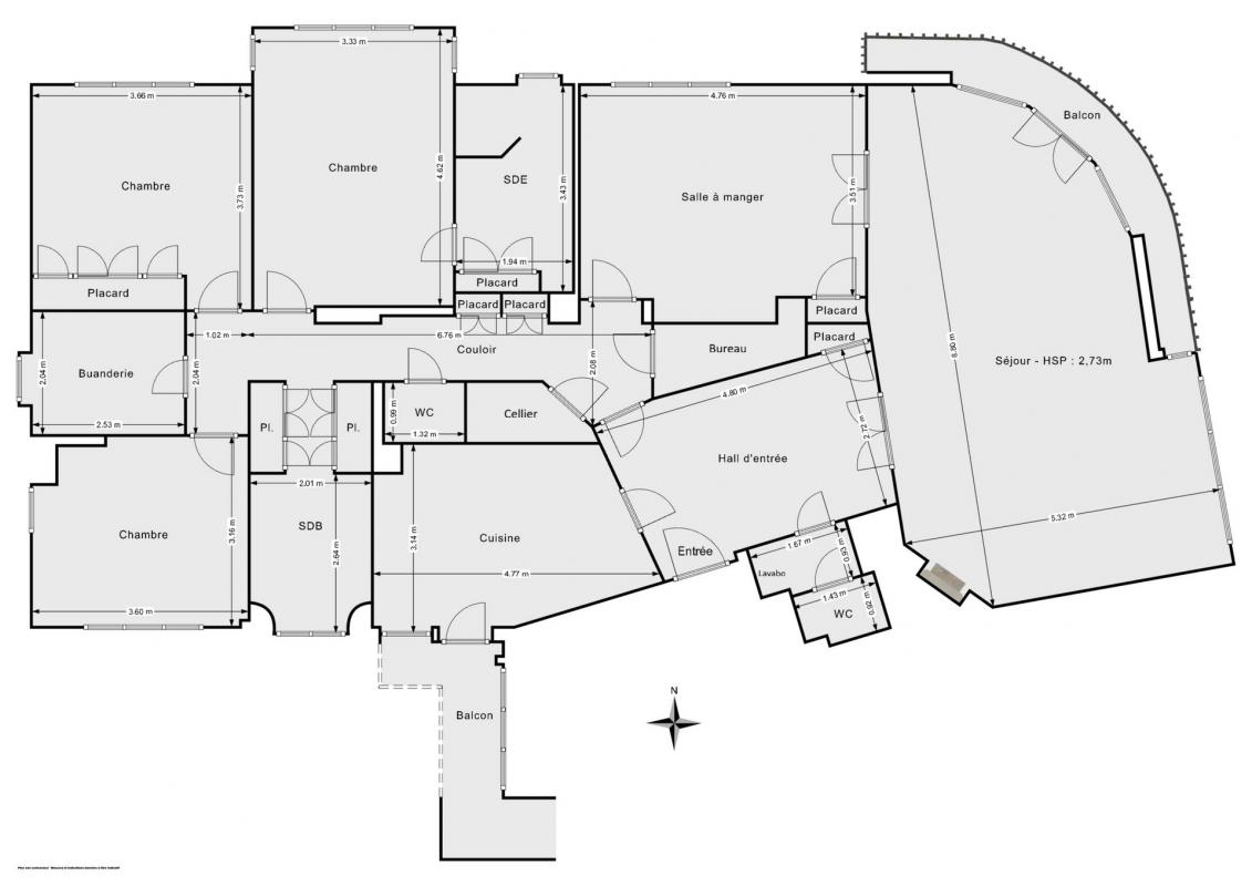
Liberkeys vous propose cet appartement familial de 166 m² situé dans un secteur prisé à proximité du quai du Wault et de la citadelle. Il se trouve en étage élevé d'une copropriété entretenue et sécurisée.

L'appartement présente des volumes confortables et une distribution adaptée à un usage familial. Une entrée spacieuse vous conduit vers une pièce de vie de 64 m² (salon + salle à manger) qui bénéficie d'une belle luminosité grâce à son exposition d'angle sud, sud/ouest, avec un ensoleillement de l'après-midi jusqu'au coucher du soleil et sans vis-à-vis, et un petit balcon pour profiter encore davantage de la vue sur les jardins Vauban.

L'espace nuit comprend trois grandes chambres, dont une avec salle d'eau privative. Une salle de bains supplémentaire, une buanderie et deux toilettes complètent l'ensemble.

L'aménagement offre plusieurs possibilités, notamment la création simple d'une quatrième chambre, communiquant avec la salle d'eau. tout en conservant une pièce de vie de 46 m². De nombreux rangements intégrés sont présents dans l'appartement.

Une cave saine et ventilée complète le bien, et il est possible d'acquérir une place de parking privative dans l'immeuble.

Le secteur Liberté-Vauban permet un accès rapide aux axes routiers et aux communes limitrophes (Lambersart, La Madeleine...). La proximité immédiate de la Citadelle, des bords de Deûle et des établissements scolaires et universitaires constitue un atout pour les familles comme pour les étudiants.

Charges de copropriété : 1 500 €/trimestre (eau froide, eau chaude, chauffage, ascenseurs). Taxe foncière : 3 165  €

Montant estimé des dépenses annuelles d'énergie pour un usage standard : entre 1 500 € et 2 080 € par an. Prix moyens des énergies indexés sur l'année 2021 (abonnements compris).

Ce bien vous plaît ? visite virtuelle sur demande, contactez moi directement. Lo Certo Sébastien, agent commercial immatriculé au RSAC de Lille sous le numéro 837791896. Référence annonce : DOM25163. Date de réalisation du diagnostic : 21/05/2023. Les honoraires sont à la charge du vendeur.

Etat des risques et pollutions

Les informations sur les risques auxquels ce bien est exposé sont disponibles sur le site Géorisques : www.georisques.gouv.fr.

Caractéristiques du bien

Composition du bien

  • Type d'habitation : Appartement
  • Cuisine : 337
  • Nombre de pièce(s) : 4
  • Nombre de chambre(s) : 3
  • Salles de bain : 1

Aménagement du bien

Extérieur

  • Terrasse : Non
  • Balcon : Non

Partie Commune

  • Ascenseur : Oui
  • Surface habitable : 166 m²
  • Parking : Oui

Informations sur la copropriété

  • Bien soumis au statut de la copropriété
  • Nombre de lots : 23
  • Quote part charges courantes : 6160 €/an
  • Procédure en cours : Non

Localisation du bien

LILLE (59800) , NORD (59) - HAUTS-DE-FRANCE

Ce bien n'est pas géolocalisé, pour connaitre sa géolocalisation, merci de contacter l'agence.

Consommation énergétique

  • C (135 kWh/m² an)
    C (29 kgCO2/m².an)
    Plus d'info
    135
    29
    29
  • DPE réalisé après le 1er juillet 2021.
  • Entre 1500 € TTC / an et 2080 € TTC / an
    Non communiqué

Nos professionnels vous accompagnent

Contactez notre agence !

20 RUE DE MONTHOLON 75009 PARIS 09

Appeler l’agence Tél : 06 75 62 08 80

* Champs obligatoires

Nous vous informons de l’existence de la liste d’opposition au démarchage téléphonique « BLOCTEL » sur laquelle vous pouvez vous inscrire (https://www.bloctel.gouv.fr).

En complétant le formulaire «CONTACTEZ NOTRE AGENCE », je reconnais expressément que je consens au traitement de mes données personnelles et que je dispose du droit de retirer mon consentement à tout moment en m'adressant à support@fnaim.fr.
En savoir plus sur la gestion de vos données et droits : consulter nos mentions légales, « article 5/ Données à caractère personnel ».

En envoyant ce message, vous acceptez les conditions d'utilisation du site. Plus d'infos