Fnaim.fr
Menu

Acheter

Réf. TAPP956772

Achat Appartement 2 pièces 66m² LILLE 59000

215 000 Honoraires charge vendeur

1 chambre

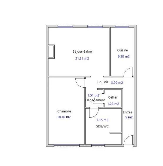
Description du bien

À vendre - Grand T2 à Lille Gambetta - Gambetta - À seulement 2 minutes à pied du métro et 3 stations de Lille Flandres, cet appartement traversant et lumineux de 67 m² profite d'un emplacement idéal, entre les Halles, le marché de Wazemmes, les grandes écoles et toutes les commodités du quotidien.

Vous apprécierez la vie de quartier animée et conviviale, rythmée par ses commerces, restaurants, cafés et le célèbre marché de Wazemmes, symbole d'authenticité lilloise.

L'appartement séduit par son séjour plein sud avec parquet chevron, une spacieuse chambre de 18 m² (idéal pour coin bureau), une cuisine indépendante, un cellier et une salle de bain. Une grande cave saine complète l'ensemble.

Son agencement offre de belles possibilités d'aménagement, notamment la création d'un T3 selon vos besoins.

Les plus : garage disponible en supplément, chauffage collectif, copropriété bien entretenue.
Quelques travaux de rafraîchissement vous permettront d'en faire un lieu de vie à votre image.

Charges annuelles : 2 200 € (eau froide, chauffage, assurance, entretien des communs)
Copropriété de 7 lots. Le bien est soumis au statut de la copropriété , la copropriété comporte 7 lots , la quote-part budget prévisionnel (dépenses courantes) est de 2 000,00 euros/an.
Honoraires à la charge du vendeur.
Vous pouvez consulter les barèmes d'honoraires à l'adresse suivante : https://www.citya.com/agences-immobilieres/lille-59350/808 . Montant estimé des dépenses annuelles d'énergie pour un usage standard : entre 1 970 et 2 720 euros. Prix moyens des énergies indexés en 2021. Les informations sur les risques auxquels ce bien est exposé sont disponibles sur le site Géorisques : https://www.georisques.gouv.fr

Etat des risques et pollutions

Les informations sur les risques auxquels ce bien est exposé sont disponibles sur le site Géorisques : www.georisques.gouv.fr.

Caractéristiques du bien

Composition du bien

  • Type d'habitation : Appartement
  • Cuisine : 337
  • Nombre de pièce(s) : 2
  • Nombre de chambre(s) : 1
  • Salles de bain : 1

Aménagement du bien

Extérieur

  • Terrasse : Non
  • Balcon : Non

Partie Commune

  • Ascenseur : Non
  • Surface habitable : 66 m²

Informations sur la copropriété

  • Bien soumis au statut de la copropriété
  • Nombre de lots : 7
  • Quote part charges courantes : 2000 €/an
  • Procédure en cours : Non

Localisation du bien

LILLE (59000) , NORD (59) - HAUTS-DE-FRANCE

Ce bien n'est pas géolocalisé, pour connaitre sa géolocalisation, merci de contacter l'agence.

Consommation énergétique

  • E (263 kWh/m² an)
    E (64 kgCO2/m².an)
    Plus d'info
    263
    64
    64
  • DPE réalisé après le 1er juillet 2021.
  • Entre 1970 € TTC / an et 2720 € TTC / an
    01/01/2021

Nos professionnels vous accompagnent

Contactez notre agence !

307 Rue Léon Gambetta 59000 LILLE

Appeler l’agence Tél : 03 20 14 56 30

* Champs obligatoires

Nous vous informons de l’existence de la liste d’opposition au démarchage téléphonique « BLOCTEL » sur laquelle vous pouvez vous inscrire (https://www.bloctel.gouv.fr).

En complétant le formulaire «CONTACTEZ NOTRE AGENCE », je reconnais expressément que je consens au traitement de mes données personnelles et que je dispose du droit de retirer mon consentement à tout moment en m'adressant à support@fnaim.fr.
En savoir plus sur la gestion de vos données et droits : consulter nos mentions légales, « article 5/ Données à caractère personnel ».

En envoyant ce message, vous acceptez les conditions d'utilisation du site. Plus d'infos