Fnaim.fr
Menu

Réf. 48_JA 3205-14

Achat Appartement 3 pièces 68m² LA RICHE 37520

302 000 Honoraires charge vendeur

2 chambres Ascenseur

Description du bien

Idéalement située, dans une rue paisible, face au jardin botanique, à proximité immédiate des commerces, des transports (Place Sainte-Anne à 250m), ainsi que du centre historique de Tours, cette nouvelle résidence allie élégance, confort et qualité de vie.

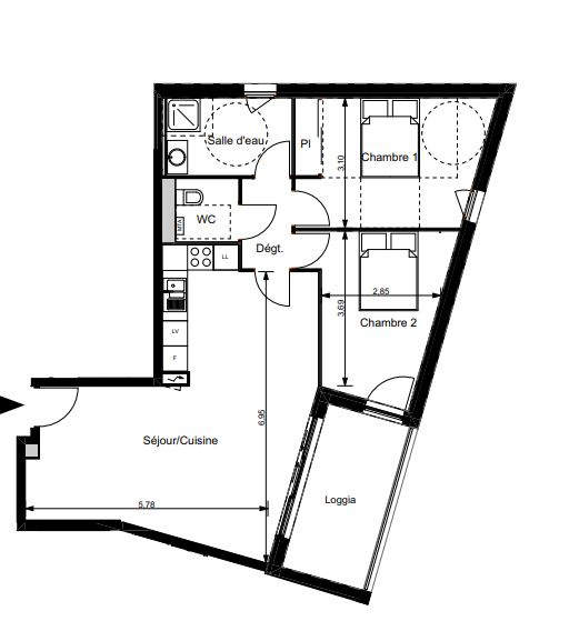
Venez découvrir ce charmant appartement de Type 3 de 68m2, avec une pièce de vie ouvrant sur la cuisine de près de 33m2, une chambre avec placard de 13m2, une seconde chambre 11.46 m2, une salle d'eau et un WC indépendant. Et vous pourrez profiter d'un loggia de 8.1 m2.
Cette résidence à taille humaine séduit par son architecture classique, sobre et contemporaine, parfaitement intégrée dans son environnement.
Pensée pour le bien-être au quotidien, elle offre des prestations haut de gamme :


Volets roulants électriques


Double vitrage performant


Chauffage urbain


Parquet dans les pièces de vie


Serrure de sécurité 5 points


Salles de bain et salles d'eau entièrement équipées


Placards intégrés et aménagés


Accès sécurisé avec contrôle d'accès et vidéophone


Que vous recherchiez une résidence principale, un pied-à-terre ou un investissement patrimonial, cette adresse rare vous garantit un cadre de vie privilégié, au coeur d'un quartier prisé de Tours.
Opportunité à ne pas manquer Contactez-nous dès maintenant pour plus d'informations et pour réserver votre futur logement.
Le bien est soumis au statut de la copropriété, Pas de procédure en cours.
25 lots principaux
2031 EUR de charges annuelles dont 1095 EUR consommations au compteur individuel ( chauffage et eau)
Pour visiter, contactez Anaïs JOURDAN Agent commercial (E.I.) 06 81 87 42 10 Clemente & Partners by Connecta RCS Tours 899 795 165
Consultez les risques naturels et technologiques auxquels ce bien est exposé sur le site :www.georisques.gouv.fr
Cette annonce vous est proposée par JOURDAN Anaïs - EI - NoRSAC: N/A, Enregistré à de TOURS

Etat des risques et pollutions

Les informations sur les risques auxquels ce bien est exposé sont disponibles sur le site Géorisques : www.georisques.gouv.fr.

Caractéristiques du bien

Composition du bien

  • Type d'habitation : Appartement
  • Cuisine : Type de cuisine Non communique
  • Nombre de pièce(s) : 3
  • Nombre de chambre(s) : 2

Aménagement du bien

Extérieur

  • Terrasse : Non
  • Balcon : Non

Partie Commune

  • Ascenseur : Oui
  • Surface habitable : 68 m²

Localisation du bien

LA RICHE (37520) , INDRE-ET-LOIRE (37) - CENTRE-VAL-DE-LOIRE

Ce bien n'est pas géolocalisé, pour connaitre sa géolocalisation, merci de contacter l'agence.

Consommation énergétique

  • A (50 kWh/m² an)
    A (3 kgCO2/m².an)
    Plus d'info
    50
    3
    3
  • DPE réalisé après le 1er juillet 2021.
  • Entre 255 € TTC / an et 345 € TTC / an
    01/01/2021

Nos professionnels vous accompagnent

Contactez notre agence !

59 AVENUE MARCEL MERIEUX 37200 TOURS

Appeler l’agence Tél : 0681874210

* Champs obligatoires

Nous vous informons de l’existence de la liste d’opposition au démarchage téléphonique « BLOCTEL » sur laquelle vous pouvez vous inscrire (https://www.bloctel.gouv.fr).

En complétant le formulaire «CONTACTEZ NOTRE AGENCE », je reconnais expressément que je consens au traitement de mes données personnelles et que je dispose du droit de retirer mon consentement à tout moment en m'adressant à support@fnaim.fr.
En savoir plus sur la gestion de vos données et droits : consulter nos mentions légales, « article 5/ Données à caractère personnel ».

En envoyant ce message, vous acceptez les conditions d'utilisation du site. Plus d'infos