Fnaim.fr
Menu

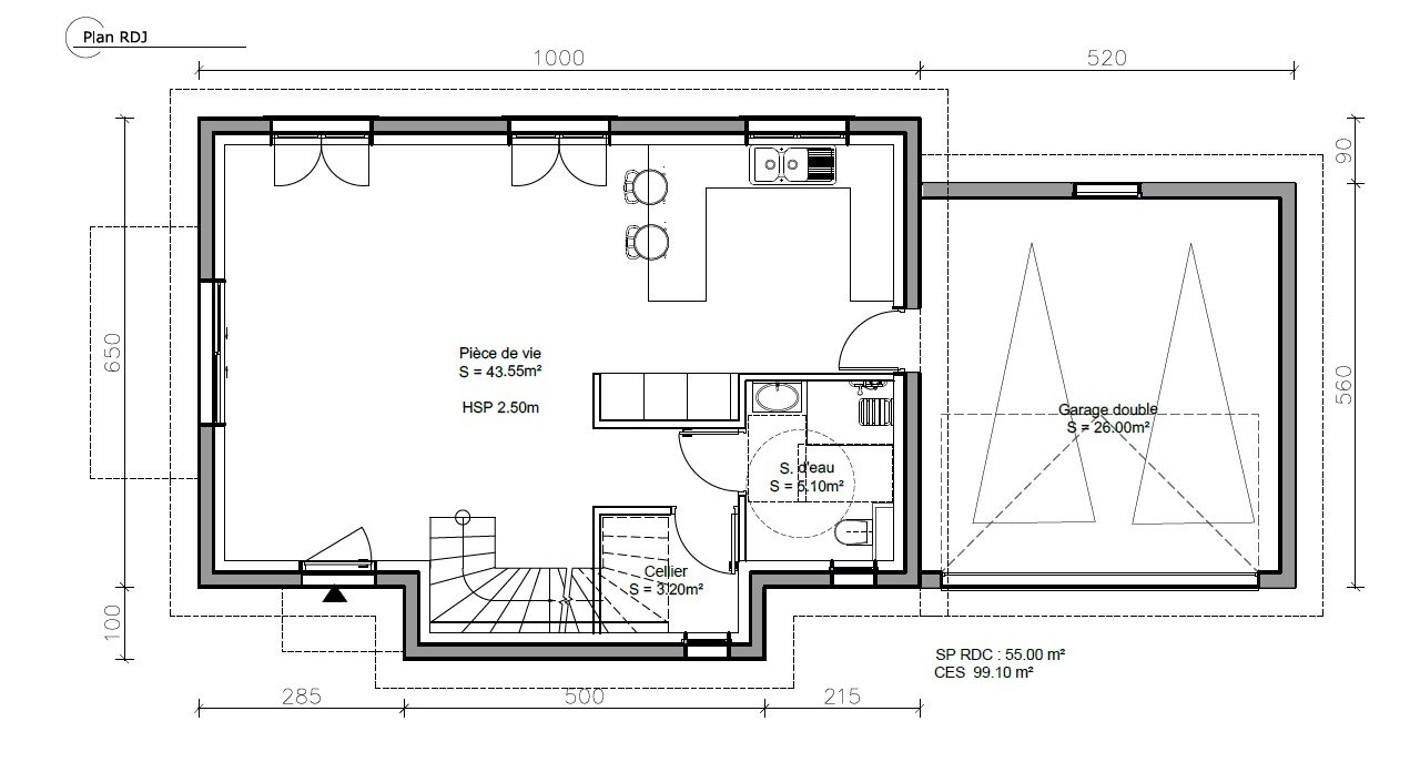
Maison 4 pièces 109m² LEVENS 06670 LEVENS
Exclusivité
Réf. 060061309

Achat Maison 4 pièces 109m² LEVENS 06670

550 000 Honoraires charge vendeur

3 chambres Parking / Garage

Description du bien

LEVENS
EXCLUSIVITE !!!
Découvrez cette villa individuelle neuve de 4 pièces une opportunité rare située dans le quartier ultra résidentiel du Vignal.
Cette magnifique propriété offre un cadre de vie préservé dans un environnement paisible.
Elle beneficie d'une position dominante offrant une vue dégagée sur les environs.
Son exposition sud/ouest garantit une luminosité optimale tout au long de la journée.
À l'intérieur, vous serez séduit par un espace de vie spacieux de 46 m² env. comprenant un grand et lumineux séjour ainsi qu'un espace repas.
La villa dispose de trois chambres confortables, chacune avec des rangements intégrés dont une suite parentale avec salle de douche privative.
Une salle de bains au style très contemporaine complètent les commodités de cette villa.
Les grandes terrasses accessibles depuis le séjour et la cuisine vous permettent de profiter de l'extérieur, tout en bénéficiant d'une vue dégagée.
Un garage double et deux parkings extérieurs sont inclus.
Cette villa neuve se distingue également par son calme absolu, le cadre campagne et son terrain de 600 m² complanté et arboré.
Respecte la réglementation thermique RE2020
Assurance dommage ouvrage et décennale : Bénéficiez de la tranquillité d'esprit grâce à ces assurances essentielles.
Frais de notaire réduits .
Ne manquez pas cette opportunité unique de vivre dans une villa neuve offrant confort, tranquillité et un cadre de vie préservé. Contactez-nous dès maintenant pour plus d'informations ou pour organiser une visite.
Prix : 550 000 €
Contact Dally BERMOND - GRANIT Immobilier 04.93.79.87.83 / 06.11.16.01.42
Réf. 2111-1
Honoraires charge vendeur - Nos tarifs : https://assets.adaptimmo.com/bareme/06006/bareme.pdf
N'hésitez pas à demander une visite virtuelle ou à distance !!
« Les informations sur les risques auxquels ce bien est exposé sont disponibles sur le site Géorisques : www.georisques.gouv.fr »




Etat des risques et pollutions

Les informations sur les risques auxquels ce bien est exposé sont disponibles sur le site Géorisques : www.georisques.gouv.fr.

Caractéristiques du bien

Composition du bien

  • Type d'habitation : Maison
  • Nombre de chambres : 3
  • Nombre de salles de bain : 1
  • Cuisine : 20

Aménagement du bien

  • Cave : Non
  • Garage / Parking : Oui
    • Surface habitable : 109 m²
    • Parking : Oui

    Localisation du bien

    LEVENS (06670) , ALPES-MARITIMES (06) - PROVENCE-ALPES-COTE-D-AZUR

    Ce bien n'est pas géolocalisé, pour connaitre sa géolocalisation, merci de contacter l'agence.

    Consommation énergétique

    DPE non soumis
    mention indiquée sous la responsabilité de l’agence immobilière

    Nos professionnels vous accompagnent

    Contactez notre agence !

    20 BD LEON SAUVAN 06690 TOURRETTE LEVENS

    Appeler l’agence Tél : 04 93 79 87 83

    * Champs obligatoires

    Nous vous informons de l’existence de la liste d’opposition au démarchage téléphonique « BLOCTEL » sur laquelle vous pouvez vous inscrire (https://www.bloctel.gouv.fr).

    En complétant le formulaire «CONTACTEZ NOTRE AGENCE », je reconnais expressément que je consens au traitement de mes données personnelles et que je dispose du droit de retirer mon consentement à tout moment en m'adressant à support@fnaim.fr.
    En savoir plus sur la gestion de vos données et droits : consulter nos mentions légales, « article 5/ Données à caractère personnel ».

    En envoyant ce message, vous acceptez les conditions d'utilisation du site. Plus d'infos