Fnaim.fr
Menu

Acheter

Achat Appartement 5 pièces 101m² LE BOUSCAT 33110

549 000 Honoraires charge vendeur

4 chambres Ascenseur Parking / Garage

Description du bien

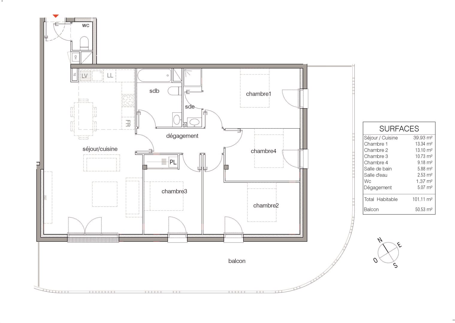
Beau T5, de 101 m² habitables, neuf, frais de notaire offerts, au troisième étage d'une résidence de 38 logements, située au Bouscat, entre l?hippodrome et le parc de la Chêneraie, le long du trajet du tram D. Il se compose d'une entrée, d'une grande pièce de vie orientée Sud, ouvrant sur un très grand balcon de 51 m², de quatre chambres, dont une pourvue d?une salle d?eau privative, d?un WC. et d'une salle de bains. Conforme à la norme BBC RT-2012, il dispose d'un chauffage individuel au gaz. Il est doté de deux places de stationnement au sous-sol. Le tram D, vers Bordeaux-centre s?arrête à 150 m. Les commerces sont présents tout le long de l?avenue et trois des lycées privés les plus prisés de bordeaux sont à 2 kilomètres. Taxe foncière 1900 euros, charges mensuelles 160 euros, honoraires à la charge du vendeur. Les informations sur les risques auxquels ce bien est exposé sont disponibles sur le site Géorisques : www.georisques.gouv.fr.

Etat des risques et pollutions

Les informations sur les risques auxquels ce bien est exposé sont disponibles sur le site Géorisques : www.georisques.gouv.fr.

Caractéristiques du bien

Composition du bien

  • Type d'habitation : Appartement
  • Cuisine : Type de cuisine Non communique
  • Nombre de pièce(s) : 5
  • Nombre de chambre(s) : 4
  • Salles de bain : 1

Aménagement du bien

Extérieur

  • Terrasse : Non
  • Balcon : Non

Partie Commune

  • Ascenseur : Oui
  • Surface habitable : 101 m²
  • Parking : Oui

Informations sur la copropriété

  • Bien soumis au statut de la copropriété
  • Nombre de lots : 38
  • Quote part charges courantes : 1920 €/an
  • Procédure en cours : Non

Localisation du bien

LE BOUSCAT (33110) , GIRONDE (33) - NOUVELLE-AQUITAINE

Ce bien n'est pas géolocalisé, pour connaitre sa géolocalisation, merci de contacter l'agence.

Consommation énergétique

  • B (38 kWh/m² an)
    B (7 kgCO2/m².an)
    Plus d'info
    38
    7
    7
  • DPE réalisé après le 1er juillet 2021.
  • Entre 443 € TTC / an et 600 € TTC / an
    Non communiqué

Nos professionnels vous accompagnent

Contactez notre agence !

36, RUE GUYNEMER 33320 EYSINES

Appeler l’agence Tél : 05.57.10.24.24

* Champs obligatoires

Nous vous informons de l’existence de la liste d’opposition au démarchage téléphonique « BLOCTEL » sur laquelle vous pouvez vous inscrire (https://www.bloctel.gouv.fr).

En complétant le formulaire «CONTACTEZ NOTRE AGENCE », je reconnais expressément que je consens au traitement de mes données personnelles et que je dispose du droit de retirer mon consentement à tout moment en m'adressant à support@fnaim.fr.
En savoir plus sur la gestion de vos données et droits : consulter nos mentions légales, « article 5/ Données à caractère personnel ».

En envoyant ce message, vous acceptez les conditions d'utilisation du site. Plus d'infos