Fnaim.fr
Menu

Réf. VCI-796A

Achat Local commercial 110m²

124 000 Honoraires charge acquéreur inclus

Description du bien

VICHY - LOCAL PROFESSIONNEL AVEC VITRINE - VICHY - Proche du GRAND MARCHE.
Accès PMR et entrée sécurisée - Parking municipal gratuit
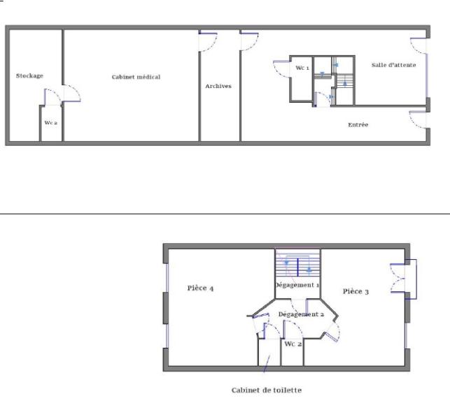
110M2 de local + 45m2 à l'étage

En rez-de-chaussée : entrée avec grand dégagement, une salle d'attente spacieuse et lumineuse avec vitrine donnant sur rue, une grande pièce de travail avec point d'eau, 2 espaces de stockage et d'archivage, 2 WC.
Chauffage par climatisation réversible - électricité.
Entrée sécurisée avec interphone - Rideau métallique pour la vitrine

A l'étage : une surface aménageable de 45m2, pouvant être réhabilitée en habitation.

Une cave en sous-sol - Combles

DPE février 2022 : C
GES février 2022 : A

Les informations sur les risques auxquels ce bien est exposé sont disponibles sur le site
Géorisques : www. georisques. gouv. fr
-
Pour tous renseignements préalables à un rendez-vous de visite, merci de bien vouloir contacter :
Nathalie BAULU au 06.89.32.37.85 (nathalie.vci.pro@orange.fr)
EI . Agent commercial (RSAC N°828 246 371
Greffe de CUSSET)
Transactions Immobilières
Agence VICHY CONSEIL IMMOBILIER. Le prix du bien net vendeur est de 116 000,00 euros plus 6,90% TTC d'honoraires charge acquéreur soit un prix total de 124 000,00 euros. Le bien est à vendre par l'intermédiaire de l'agent commercial Nathalie BAULU.

Etat des risques et pollutions

Les informations sur les risques auxquels ce bien est exposé sont disponibles sur le site Géorisques : www.georisques.gouv.fr.

Caractéristiques du bien

Composition du bien

  • Surface totale : 110 m²

Consommation énergétique

  • C (268 kWh/m² an)
    A (7 kgCO2/m².an)
    Plus d'info
    268
    7
    7
  • DPE réalisé après le 1er juillet 2021.
  • Non communiqué
    01/01/2022

Nos professionnels vous accompagnent

Contactez notre agence !

27 AVENUE ARISTIDE BRIAND 03200 VICHY

Appeler l’agence Tél : 04 70 31 00 70

* Champs obligatoires

Nous vous informons de l’existence de la liste d’opposition au démarchage téléphonique « BLOCTEL » sur laquelle vous pouvez vous inscrire (https://www.bloctel.gouv.fr).

En complétant le formulaire «CONTACTEZ NOTRE AGENCE », je reconnais expressément que je consens au traitement de mes données personnelles et que je dispose du droit de retirer mon consentement à tout moment en m'adressant à support@fnaim.fr.
En savoir plus sur la gestion de vos données et droits : consulter nos mentions légales, « article 5/ Données à caractère personnel ».

En envoyant ce message, vous acceptez les conditions d'utilisation du site. Plus d'infos