LES ANNONCES
Acheter
13 500€
A VENDRE une place de parking aux larges dimensions.
Charges annuelles : 25,87 Euro
PLACE DU MARCHE FOUESNANT. Résidence sécurisée.
Contact : Fanny ROUZES : 07 86 70 39 35
AGENCE DU STEIR FOUESNANT
75 000€
QUIMPER SUD - ENTRE VILLE ET ROUTE DES PLAGES.
DERNIÈRE OPPORTUNITÉ A SAISIR DANS UN SECTEUR DYNAMIQUE et ATTRACTIF.
En lotissement, terrains à bâtir VIABILISES et libres de constructeur.
Reste 10 lots au choix de 405 m² à 697 m². Réseau bus à proxim...
93 000€
A SEULEMENT 600 mètres de la plage de mousterlin, beau terrain plat constructible d'environ 480 m², baigné de lumière. Hors lotissement et hors zone inondable. Ouverture à l'EST du terrain. Non viabilisé, mais réseaux à l'entrée du terrain. Racc...
115 500€
BOURG DE PLEUVEN A PIED, venez découvrir ce beau terrain constructible d'une surface de 900 m² environ, parfaitement plat et entretenu, hors lotissement.
Entrée par le sud. LIBRE DE CONSTRUCTEUR.
Vendu non viabilisé. Raccordable au tout à l'égo...
137 000€
La plage à seulement 600 mètres, magnifique terrain plat d'environ 660 m² situé au calme, baigné de lumière. Hors lotissement et hors zone inondable. Ouverture à l'EST du terrain.
Non viabilisé. Raccordable au tout à l'égout.
Contact : Fan...
150 000€
1 chambre Balcon Ascenseur Parking / Garage
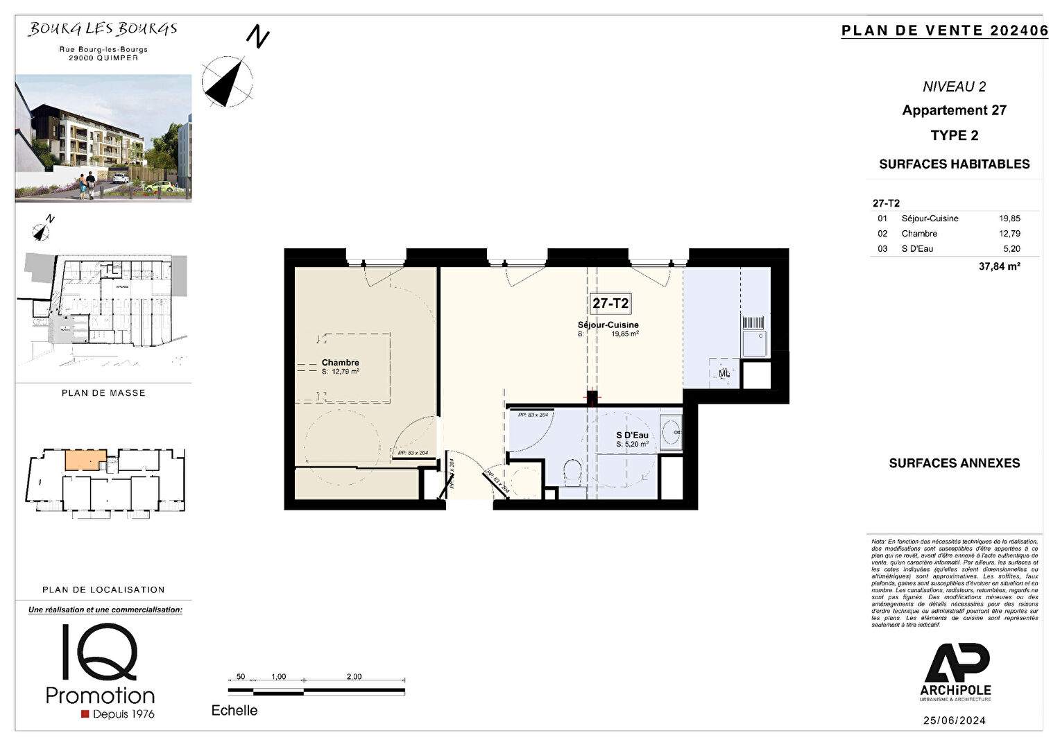
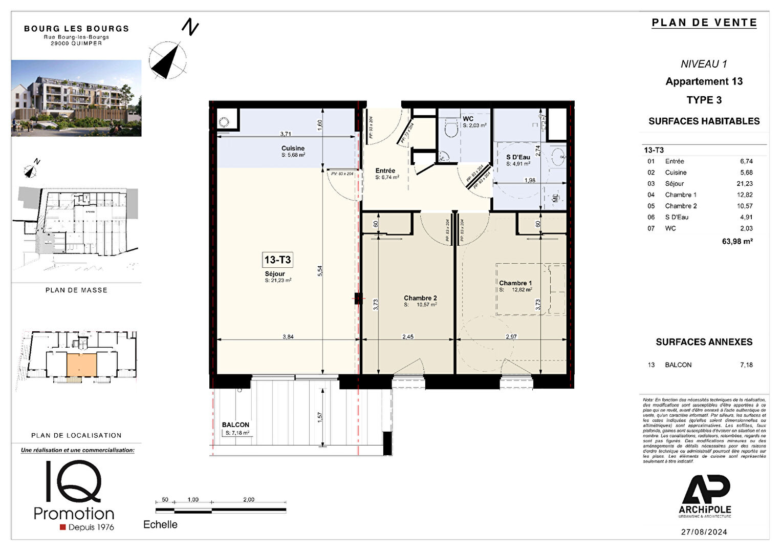
EN EXCLUSIVITÉ - Le nouveau programme immobilier « Bourg Les Bourgs » est situé en centre-ville de Quimper, à quelques minutes à pieds des halles, des commerces et de la cathédrale. Cette résidence de standing d'architecture moderne est composée de 19 app...
178 500€
La plage à seulement 800 mètres, magnifique terrain plat d'environ 730 m² (surface qui peut changer après passage du géomètre) situé au calme d'une petite rue de riverains, baigné de lumière. Hors lotissement et hors zone inondable. Libre de construc...
180 000€
NOUVEAU - Le lotissement "Le Clos Saint Gilles" est situé au Sud/Ouest de Bénodet à environ 1,5 km du bourg et des commodités. à 400 m de la pointe Saint Gilles, dans un environnement résidentiel naturel et champêtre.
Il est composé de 16 lots lib...
185 000€
A 600 mètres de la plage, beau terrain plat de 1 050 m² situé au calme d'une impasse, baigné de lumière. Hors lotissement et hors zone inondable. Non viabilisé. Ouverture du terrain à l'OUEST. Raccordable au tout à l'égout.
Contact : Fanny R...
188 000€
2 chambres Parking / Garage
NOUVEAUTÉ !
A 4 km de la plage du Letty par les pistes cyclables, venez apprécier le calme et la tranquillité de ce très bel appartement T3 DUPLEX joliment rénové (entre 2021 et 2024), offrant une pleine vue sur le Golf !
D'une surface de 43 m² (L...
195 000€
NOUVEAU - A BENODET , situé en impasse dans un quartier résidentiel de standing, le lotissement "Le Hameau De La Pointe" est composé de 11 lots libres de constructeur, de 379 m² à 662 m² (surface moyenne : 482 m²). Lot entièrement viabilisé, aménagem...
198 500€
NOUVEAU - A SEULEMENT 500 mètres de la plage de mousterlin, magnifique terrain plat à bâtir de 986 m², entouré de pommiers, baigné de lumière. Hors lotissement et hors zone inondable. Libre de constructeur.
Non viabilisé, mais réseaux à l'entrée du ter...
200 000€
NOUVEAU - Le lotissement "Le Clos Saint Gilles" est situé au Sud/Ouest de Bénodet à environ 1,5 km du bourg et des commodités, à 400 m de la pointe Saint Gilles, dans un environnement résidentiel naturel et champêtre.
Il est composé de 16 lots lib...
200 000€
NOUVEAU - A BENODET , situé en impasse dans un quartier résidentiel de standing, le lotissement "Le Hameau De La Pointe" est composé de 11 lots libres de constructeur, de 379 m² à 662 m² (surface moyenne : 482 m²). Lot entièrement viabilisé, aménagem...
215 000€
NOUVEAU - A BENODET , situé en impasse dans un quartier résidentiel de standing, le lotissement "Le Hameau De La Pointe" est composé de 11 lots libres de constructeur, de 379 m² à 662 m² (surface moyenne : 482 m²). Lot entièrement viabilisé, aménagem...
219 500€
NOUVEAUTE - La plage à seulement 500 mètres, magnifique terrain plat constructible de 1 200 m² situé au calme d'une impasse, baigné de lumière. Hors lotissement et hors zone inondable. Libre de constructeur.
Non viabilisé. Raccordable au tout à l'...
255 000€
4 chambres Parking / Garage
Bâtie en 1980, cette maison familiale située en campagne mais non loin du centre-ville, offre une surface de 120 m² sur un terrain d'environ 1 500 m² .
Elle comprend au rez-de-chaussée une entrée, un salon séjour avec cheminée insert, une grande cuisin...
270 000€
2 chambres Balcon Ascenseur Parking / Garage
EN EXCLUSIVITÉ - Le nouveau programme immobilier « Bourg Les Bourgs » est situé en centre-ville de Quimper, à quelques minutes à pieds des halles, des commerces et de la cathédrale. Cette résidence de standing d'architecture moderne est composée de 19 app...
346 000€
4 chambres Parking / Garage
A 900 mètres du centre bourg de FOUESNANT, charmante maison T5 de 1966, entièrement rénovée, comprenant une extension de 2023.
D'une surface habitable de 112 m² sur un terrain de 503 m², elle comprend au rez de chaussée une entrée avec placard, un salo...
346 500€
La plage à seulement 800 mètres, magnifique terrain plat de 1 465 m² situé au calme d'une petite rue de riverains, baigné de lumière. Hors lotissement et hors zone inondable. Libre de constructeur.
Non viabilisé. Réseaux devant le terrain. Raccordable ...
375 000€
3 chambres Balcon Ascenseur Parking / Garage
EN EXCLUSIVITÉ - Le nouveau programme immobilier « Bourg Les Bourgs » est situé en centre-ville de Quimper, à quelques minutes à pieds des halles, des commerces et de la cathédrale. Cette résidence de standing d'architecture moderne est composée de 19 app...
386 000€
6 chambres
Nous vous présentons cette grande maison de famille de 1962, proposant 240 m² habitables sur un magnifique jardin de 2 383 m², à l'abri des regards, dans le bourg de PLEUVEN !
Cette maison bourgeoise de l'époque est atypique. Elle possède deux en...
390 000€
4 chambres Parking / Garage
BEG MEIL - PLAGE DE KERAMBIGORN A PIED !
Maison traditionnelle édifiée en 1981, d'une surface habitable de 115 m² sur un terrain de 545 m².
La maison est située dans un petit quartier parfaitement au calme, à seulement 1 km de la plage de kérambigor...
450 000€
2 chambres Balcon Ascenseur Parking / Garage
EN EXCLUSIVITÉ - Le nouveau programme immobilier « Bourg Les Bourgs » est situé en centre-ville de Quimper, à quelques minutes à pieds des halles, des commerces et de la cathédrale. Cette résidence de standing d'architecture moderne est composée de 19 app...
472 500€
5 chambres Parking / Garage
A 2 KM DE LA CALE DE BEG MEIL, maison d'habitation T7 édifiée en 1976, située dans un petit quartier résidentiel parfaitement au calme. D'une surface habitable de 155 m2 sur un terrain de 781 m2, elle comprend au rez de chaussée une entrée couloir, u...