Fnaim.fr
Menu

Exclusivité
Réf. 12344AG

Achat Appartement 2 pièces 46m² ROANNE 42300

65 000 Honoraires charge vendeur

1 chambre

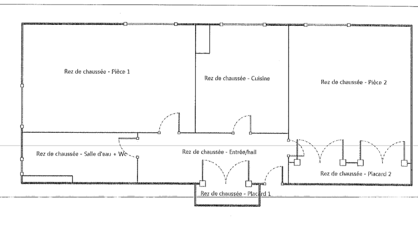
Description du bien


Votre agence Ginet Immobilier vous propose en exclusivité ce charmant T2 de 46 m², situé en rez-de-chaussée surélevé, à deux pas des bords de Loire.

En bon état général, cet appartement se compose d'une entrée desservant une cuisine indépendante aménagée et équipée, une agréable pièce de vie lumineuse, une chambre confortable ainsi qu'une salle d'eau avec WC.

Polyvalent, ce bien conviendra aussi bien à un investisseur qu'à un acquéreur en résidence principale. Il était précédemment loué en meublé 400 Euro hors charges, offrant ainsi une base locative intéressante.

Possibilité de conserver le mobilier et les équipements en place, en supplément, pour une mise en location rapide et simplifiée ou une entrée dans les lieux immédiate.

Pour plus de renseignements et visite, contactez Alexandre Geay au 06.80.91.50.61.

Alexandre GEAY (EI) Agent Commercial - Numéro RSAC : 838058170 - roanne.

Etat des risques et pollutions

Les informations sur les risques auxquels ce bien est exposé sont disponibles sur le site Géorisques : www.georisques.gouv.fr.

Caractéristiques du bien

Composition du bien

  • Type d'habitation : Appartement
  • Cuisine : Type de cuisine Non communique
  • Nombre de pièce(s) : 2
  • Nombre de chambre(s) : 1

Aménagement du bien

Extérieur

  • Terrasse : Non
  • Balcon : Non

Partie Commune

  • Ascenseur : Non
  • Surface habitable : 46 m²

Informations sur la copropriété

  • Bien soumis au statut de la copropriété
  • Nombre de lots : 132
  • Quote part charges courantes : 2277 €/an
  • Procédure en cours : Non

Localisation du bien

ROANNE (42300) , LOIRE (42) - AUVERGNE-RHÔNE-ALPES

Consommation énergétique

  • D (206 kWh/m² an)
    D (44 kgCO2/m².an)
    Plus d'info
    206
    44
    44
  • DPE réalisé après le 1er juillet 2021.
  • Entre 770 € TTC / an et 1050 € TTC / an
    Non communiqué

Nos professionnels vous accompagnent

Contactez notre agence !

16 RUE BRISON 42300 ROANNE

Appeler l’agence Tél : 0680915061

* Champs obligatoires

Nous vous informons de l’existence de la liste d’opposition au démarchage téléphonique « BLOCTEL » sur laquelle vous pouvez vous inscrire (https://www.bloctel.gouv.fr).

En complétant le formulaire «CONTACTEZ NOTRE AGENCE », je reconnais expressément que je consens au traitement de mes données personnelles et que je dispose du droit de retirer mon consentement à tout moment en m'adressant à support@fnaim.fr.
En savoir plus sur la gestion de vos données et droits : consulter nos mentions légales, « article 5/ Données à caractère personnel ».

En envoyant ce message, vous acceptez les conditions d'utilisation du site. Plus d'infos