Fnaim.fr
Menu

Exclusivité
Réf. 3379

Achat Appartement 3 pièces 70m² NANTERRE 92000

313 000 Honoraires charge acquéreur inclus : 4,3% TTC (299447 € hors honoraires)

2 chambres Balcon Ascenseur Parking / Garage

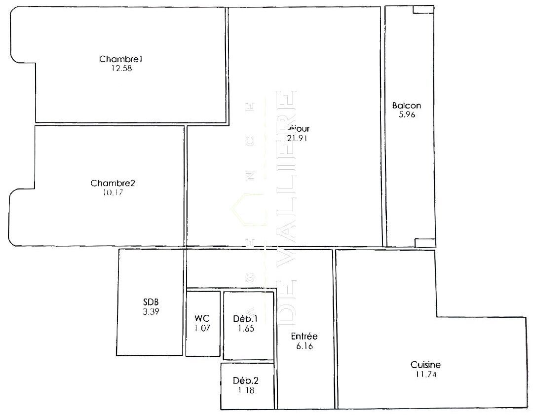
Description du bien


Si vous cherchez un grand 3 pièces en dernier étage, avec un balcon et une superbe vue sans vis à vis exposition sud, cet appartement à la limite de Rueil est fait pour vous.
Dans une résidence familiale recherchée, nous vous présentons ce 3 pièces très bien agencé qui dispose : d'une entrée avec cellier et dressing, d'une cuisine dinatoire aménagée et entièrement équipée, d'un séjour de 22m² donnant sur un balcon de 6m² (orienté Sud), de 2 chambres avec placards, d'une belle salle de douche (grande douche à l'italienne) et d'un WC séparé.
Il y a juste les deux chambres à prévoir en rafraichissement, la cuisine et la salle de douche sont en parfait état.
Situé à quelques minutes à pied du centre ville, des commerces, des écoles et des transports.
L'appartement est vendu avec un emplacement de parking et une cave en sous-sol.
Résidence sécurisée avec gardien, parc pour enfants, espaces verts, local vélos, parking invités, espace lavage voiture dans le parking.
Les photos présentées avec des meubles sont générées par l'IA (sauf salle de douche).

Etat des risques et pollutions

Les informations sur les risques auxquels ce bien est exposé sont disponibles sur le site Géorisques : www.georisques.gouv.fr.

Caractéristiques du bien

Composition du bien

  • Type d'habitation : Appartement
  • Cuisine : Type de cuisine Non communique
  • Nombre de pièce(s) : 3
  • Nombre de chambre(s) : 2

Aménagement du bien

Extérieur

  • Terrasse : Non
  • Balcon : Oui

Partie Commune

  • Ascenseur : Oui
  • Surface habitable : 70 m²
  • Parking : Oui

Informations sur la copropriété

  • Bien soumis au statut de la copropriété
  • Nombre de lots : 1232
  • Quote part charges courantes : 3201 €/an
  • Procédure en cours : Non

Localisation du bien

NANTERRE (92000) , HAUTS-DE-SEINE (92) - ILE-DE-FRANCE

Consommation énergétique

  • F (361 kWh/m² an)
    F (77 kgCO2/m².an)
    Plus d'info
    361
    77
    77
  • DPE réalisé après le 1er juillet 2021.
  • Entre 1910 € TTC / an et 2630 € TTC / an
    Non communiqué
  • Logement à consommation énergétique excessive : classe F

Nos professionnels vous accompagnent

Contactez notre agence !

2 RUE DU MARCHE 92000 NANTERRE

Appeler l’agence Tél : 0155173333

* Champs obligatoires

Nous vous informons de l’existence de la liste d’opposition au démarchage téléphonique « BLOCTEL » sur laquelle vous pouvez vous inscrire (https://www.bloctel.gouv.fr).

En complétant le formulaire «CONTACTEZ NOTRE AGENCE », je reconnais expressément que je consens au traitement de mes données personnelles et que je dispose du droit de retirer mon consentement à tout moment en m'adressant à support@fnaim.fr.
En savoir plus sur la gestion de vos données et droits : consulter nos mentions légales, « article 5/ Données à caractère personnel ».

En envoyant ce message, vous acceptez les conditions d'utilisation du site. Plus d'infos