Fnaim.fr
Menu

Exclusivité
Réf. 111

Achat Appartement 1 pièce 27m² POITIERS 86000

63 500 Honoraires charge vendeur

Parking / Garage

Description du bien

RARE - VENDU LOUE - 10MIN CAMPUS EN VOITURE OU BUS DIRECT CAMPUS & CENTRE-VILLE - PLACE DE PARKING
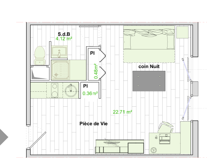
Nous vous proposons ce spacieux studio de 28m2 situé au 1er étage d'une copropriété en bon état des années 75 dans un quartier résidentiel calme. Lumineux et très bien disposé, l'appartement se compose d'une entrée avec kitchenette, pièce de vie avec coin nuit et rangements, salle d'eau avec wc. Une place de parking en sous sol complète ce bien.
Appartement vendu loué 351EUR + 73EUR soit 424EUR CC avec un bail jusqu'au 1er Juillet 2029

Etat des risques et pollutions

Les informations sur les risques auxquels ce bien est exposé sont disponibles sur le site Géorisques : www.georisques.gouv.fr.

Caractéristiques du bien

Composition du bien

  • Type d'habitation : Appartement
  • Cuisine : Kitchenette
  • Nombre de pièce(s) : 1

Aménagement du bien

Extérieur

  • Terrasse : Non
  • Balcon : Non

Partie Commune

  • Ascenseur : Non
  • Surface habitable : 27 m²
  • Parking : Oui

Informations sur la copropriété

  • Bien soumis au statut de la copropriété
  • Nombre de lots : 46
  • Quote part charges courantes : 1887 €/an
  • Procédure en cours : Non

Localisation du bien

POITIERS (86000) , VIENNE (86) - NOUVELLE-AQUITAINE

Ce bien n'est pas géolocalisé, pour connaitre sa géolocalisation, merci de contacter l'agence.

Consommation énergétique

  • C (166 kWh/m² an)
    D (34 kgCO2/m².an)
    Plus d'info
    166
    34
    34
  • DPE réalisé après le 1er juillet 2021.
  • Entre 370 € TTC / an et 540 € TTC / an
    01/01/2021

Nos professionnels vous accompagnent

Contactez notre agence !

20, rue Henri Petonnet 86000 POITIERS

Appeler l’agence Tél : 05 49 62 21 88

* Champs obligatoires

Nous vous informons de l’existence de la liste d’opposition au démarchage téléphonique « BLOCTEL » sur laquelle vous pouvez vous inscrire (https://www.bloctel.gouv.fr).

En complétant le formulaire «CONTACTEZ NOTRE AGENCE », je reconnais expressément que je consens au traitement de mes données personnelles et que je dispose du droit de retirer mon consentement à tout moment en m'adressant à support@fnaim.fr.
En savoir plus sur la gestion de vos données et droits : consulter nos mentions légales, « article 5/ Données à caractère personnel ».

En envoyant ce message, vous acceptez les conditions d'utilisation du site. Plus d'infos