Fnaim.fr
Menu

Réf. E2P4-9OD-0YW

Achat Maison 8 pièces 208m² ROMANS SUR ISERE 26100

269 000 Honoraires charge vendeur

7 chambres Jardin Parking / Garage

Description du bien

Grande maison familiale ou à diviser en deux logements !
Gros potentiel pour ce bien situé à Romans qui peut être raisonné de 2 façons :

Projet 1 : Grande famille
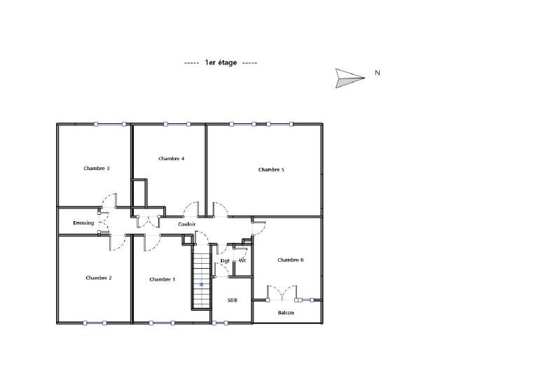
La maison d'environ 200 m² sur 2 niveaux comporte 2 chambres au rez-de-chaussée dont une chambre parentale avec un grand placard, une salle d'eau et une salle de jeu/bibliothèque de près de 15 m², un double séjour d'environ 50 m², une cuisine spacieuse et 2 WC. Le séjour donne sur une terrasse et un jardin arboré.
A l'étage, vous disposez d'un couloir avec placard desservant une salle de bain (qui peut être agrandie), une grande pièce de près de 15 m² pouvant servir de salle de jeux ou chambre ainsi que 3 autres chambres entre 9 et 12 m² et une pièce avec arrivée et évacuation d'eau et balcon.

Projet 2 : Deux logements
La maison est parfaitement divisible en 2 logements distincts avec 2 entrées séparées. L'étage serait alors réaménagé et pourrait ainsi proposer : un double séjour avec un espace cuisine et son balcon, la conservation de 3 chambres existantes et du dressing. D'autres configurations sont possibles, l'espace ne manque pas !

Couverture refaite en 2019 et isolation des combles par soufflage.
Les fenêtres sont en PVC double vitrage et volet roulant (sauf porte-fenêtre de l'étage).
Chaudière fioul à condensation + poêle à bois (bûche) label flamme verte + Pompe à chaleur Air/Air et climatisation.

La maison dispose d'un garage de 31 m² environ.
La parcelle d'environ 1300 m2 en bordure de champs comporte un espace parking, un coin avec piscine hors sol, un appentis en bois, une zone potager et un mini poulailler. Ici aussi les espaces peuvent être redistribués si création d'un deuxième logement.
Taxe foncière 2589 €

LES POINTS FORTS :

Gros potentiel et possibilité double projet

Environnement agréable à la campagne

A 10 minutes de Romans centre et des axes routiers direction Valence, Lyon ou Grenoble

???????????????????????????????????????????????????

Contactez-moi dès maintenant pour organiser une visite et laissez-vous séduire par son potentiel !
Référence agence : 1185

Bien non soumis au statut de la copropriété.

Date de réalisation du diagnostic : 11/11/2025. Note du DPE D

Les honoraires sont à la charge du vendeur.

Les informations sur les risques auxquels ce bien est exposé sont disponibles sur le site Géorisques : www.georisques.gouv.fr
Référence agence : 1185

Etat des risques et pollutions

Les informations sur les risques auxquels ce bien est exposé sont disponibles sur le site Géorisques : www.georisques.gouv.fr.

Caractéristiques du bien

Composition du bien

  • Type d'habitation : Maison
  • Nombre de chambres : 7
  • Nombre de salles de bain : 1
  • Cuisine : Simple

Aménagement du bien

  • Cave : Non
  • Garage / Parking : Oui
    • Surface habitable : 208 m²
    • Parking : Oui

    Localisation du bien

    ROMANS SUR ISERE (26100) , DROME (26) - AUVERGNE-RHÔNE-ALPES

    Ce bien n'est pas géolocalisé, pour connaitre sa géolocalisation, merci de contacter l'agence.

    Consommation énergétique

    • D (170 kWh/m² an)
      D (35 kgCO2/m².an)
      Plus d'info
      170
      35
      35
    • DPE réalisé après le 1er juillet 2021.
    • Entre 3550 € TTC / an et 4870 € TTC / an
      Non communiqué

    Nos professionnels vous accompagnent

    Contactez notre agence !

    1-3 COURS PIERRE DIDIER 26100 ROMANS SUR ISERE

    Appeler l’agence Tél : 04 75 70 77 77

    * Champs obligatoires

    Nous vous informons de l’existence de la liste d’opposition au démarchage téléphonique « BLOCTEL » sur laquelle vous pouvez vous inscrire (https://www.bloctel.gouv.fr).

    En complétant le formulaire «CONTACTEZ NOTRE AGENCE », je reconnais expressément que je consens au traitement de mes données personnelles et que je dispose du droit de retirer mon consentement à tout moment en m'adressant à support@fnaim.fr.
    En savoir plus sur la gestion de vos données et droits : consulter nos mentions légales, « article 5/ Données à caractère personnel ».

    En envoyant ce message, vous acceptez les conditions d'utilisation du site. Plus d'infos