Fnaim.fr
Menu

Exclusivité
Réf. V15297

Achat Appartement 3 pièces 65m² MARSEILLE 5ème

260 000 Honoraires charge vendeur

2 chambres Balcon Ascenseur

Description du bien





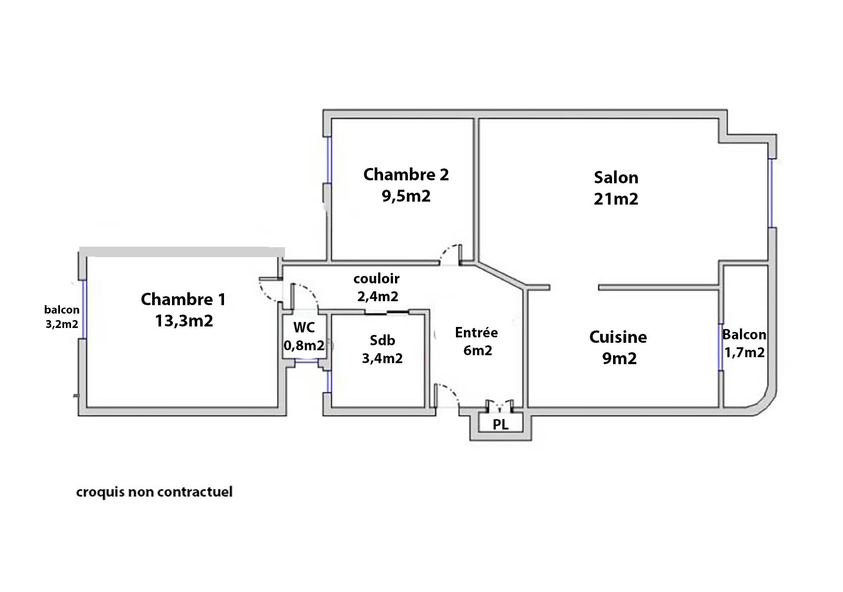
A+ Immobilier-Patrimoine vous propose en exclusivité un appartement de type 3 dans le secteur du Camas. Situé au 1er étage (avec ascenseur) d'un immeuble des années 30, il est composé d'une entrée, d'une pièce de vie avec cuisine ouverte de 30 m2 donnant sur un balcon. Cet espace de vie est lumineux, bénéficiant d'une exposition Ouest, d'une vue dégagée et donnant sur une rue très calme avec peu de passage. Il comprend deux chambres, dont une de plus de 13 m2 bénéficiant d'un bel espace de rangement et donnant sur un balcon côté cour. La salle de bain et les toilettes sont séparés. Situé en plein coeur du quartier du Camas, proche des commerces, des transports et de toutes les commodités du boulevard Chave et du boulevard Eugène Pierre. Copropriété de 12 lots. Charges mensuelles de 129 euros. Taxe foncière de 1 251 euros. Le bien bénéficie d'une grande cave en sous-sol de 10 m2. Pour plus d'informations, contactez Antony Fernandez, agent commercial RSAC 831 825 054.



Contact 07.89.53.29.62

Etat des risques et pollutions

Les informations sur les risques auxquels ce bien est exposé sont disponibles sur le site Géorisques : www.georisques.gouv.fr.

Caractéristiques du bien

Composition du bien

  • Type d'habitation : Appartement
  • Cuisine : Américaine
  • Nombre de pièce(s) : 3
  • Nombre de chambre(s) : 2

Aménagement du bien

Extérieur

  • Terrasse : Non
  • Balcon : Oui

Partie Commune

  • Ascenseur : Oui
  • Surface habitable : 65 m²

Informations sur la copropriété

  • Bien soumis au statut de la copropriété
  • Nombre de lots : 12
  • Quote part charges courantes : 1556 €/an
  • Procédure en cours : Non

Localisation du bien

MARSEILLE 05 (13005) , BOUCHES-DU-RHONE (13) - PROVENCE-ALPES-COTE-D-AZUR

Ce bien n'est pas géolocalisé, pour connaitre sa géolocalisation, merci de contacter l'agence.

Consommation énergétique

  • C (139 kWh/m² an)
    D (30 kgCO2/m².an)
    Plus d'info
    139
    30
    30
  • DPE réalisé après le 1er juillet 2021.
  • Entre 910 € TTC / an et 1280 € TTC / an
    01/01/2023

Nos professionnels vous accompagnent

Contactez notre agence !

A+

237 CHEMIN CORNICHE KENNEDY 13007 MARSEILLE 07

Appeler l’agence Tél : 04 91 90 51 77

* Champs obligatoires

Nous vous informons de l’existence de la liste d’opposition au démarchage téléphonique « BLOCTEL » sur laquelle vous pouvez vous inscrire (https://www.bloctel.gouv.fr).

En complétant le formulaire «CONTACTEZ NOTRE AGENCE », je reconnais expressément que je consens au traitement de mes données personnelles et que je dispose du droit de retirer mon consentement à tout moment en m'adressant à support@fnaim.fr.
En savoir plus sur la gestion de vos données et droits : consulter nos mentions légales, « article 5/ Données à caractère personnel ».

En envoyant ce message, vous acceptez les conditions d'utilisation du site. Plus d'infos