Fnaim.fr
Menu

Réf. 86926913

Achat Local commercial 33m² CAGNES SUR MER 06800

195 000 Honoraires charge vendeur

Description du bien

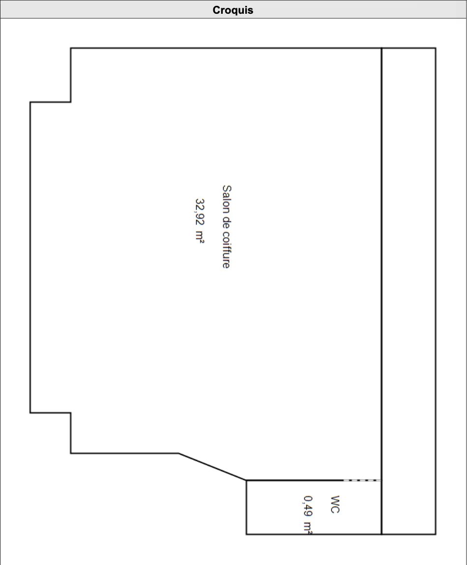
Idéalement situé au 80 avenue de la Gare à Cagnes-sur-Mer, en plein cœur du centre-ville et à proximité immédiate du Marché Couvert et des rues piétonnes, ce local commercial de 33,41 m² en rez-de-chaussée représente une belle opportunité d’investissement.

Bénéficiant d’une excellente visibilité grâce à sa large vitrine avec store et éclairage extérieur, il profite d’un environnement dynamique et d’un fort passage piéton.

Le local se compose :

d’une pièce principale lumineuse d’environ 32,92 m²
d’un espace sanitaire indépendant

Son agencement modulable permet d’accueillir différentes activités (actuellement exploité en salon de coiffure).

? Investissement sécurisé

Le bien est loué 1 000 € / mois charges comprises, avec une locataire en place depuis de nombreuses années, sérieuse et régulière dans ses paiements.

? Taxe foncière à la charge du locataire
? Revenus locatifs stables
? Rendement brut : 6,15 %
Taxe foncière à la charge du locataire

Les informations sur les risques auxquels ce bien est exposé sont disponibles sur le site Géorisques : georisques.gouv.fr

Etat des risques et pollutions

Les informations sur les risques auxquels ce bien est exposé sont disponibles sur le site Géorisques : www.georisques.gouv.fr.

Caractéristiques du bien

Composition du bien

  • Surface totale : 33 m²

Consommation énergétique

  • G (575 kWh/m² an)
    C (15 kgCO2/m².an)
    Plus d'info
    575
    15
    15
  • DPE réalisé après le 1er juillet 2021.
  • Non communiqué
    Non communiqué
  • Logement à consommation énergétique excessive : classe G

Nos professionnels vous accompagnent

Contactez notre agence !

135 BD ST ANTOINE 06220 VALLAURIS

Appeler l’agence Tél : 06 59 81 35 08

* Champs obligatoires

Nous vous informons de l’existence de la liste d’opposition au démarchage téléphonique « BLOCTEL » sur laquelle vous pouvez vous inscrire (https://www.bloctel.gouv.fr).

En complétant le formulaire «CONTACTEZ NOTRE AGENCE », je reconnais expressément que je consens au traitement de mes données personnelles et que je dispose du droit de retirer mon consentement à tout moment en m'adressant à support@fnaim.fr.
En savoir plus sur la gestion de vos données et droits : consulter nos mentions légales, « article 5/ Données à caractère personnel ».

En envoyant ce message, vous acceptez les conditions d'utilisation du site. Plus d'infos