Fnaim.fr
Menu

Exclusivité
Réf. PV4040

Achat Maison 4 pièces 115m² VOULX 77940

159 500 Honoraires charge vendeur

2 chambres

Description du bien

Idéal investisseur ! Situé en plein centre de Voulx, à proximité immédiate des commerces et des écoles, cet immeuble se compose de 3 logements :

2 appartements F2
1 studio au dernier étage

Situation locative

1 logement actuellement loué : 420 EUR HC
Potentiel locatif total si on applique les loyers récemment pratiqués : 1 240 EUR / mois HC
Soit 14 880 EUR / an
Taxe foncière 1615EUR

Caractéristiques

Chauffage électrique individuel
Raccordement tout-à-l'égout
Distribution simple et exploitable

Atouts investissement

Rentabilité attractive
Possibilité d'augmentation des loyers
Secteur locatif stable

Produit idéal pour :

Investisseur débutant ou confirmé
Stratégie déficit foncier / valorisation
Création de cash-flow à moyen terme
Nous vous accompagnons tout au long de votre projet immobilier.

Etat des risques et pollutions

Les informations sur les risques auxquels ce bien est exposé sont disponibles sur le site Géorisques : www.georisques.gouv.fr.

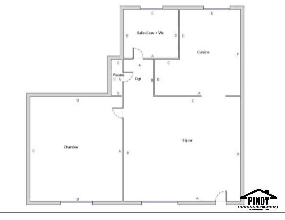
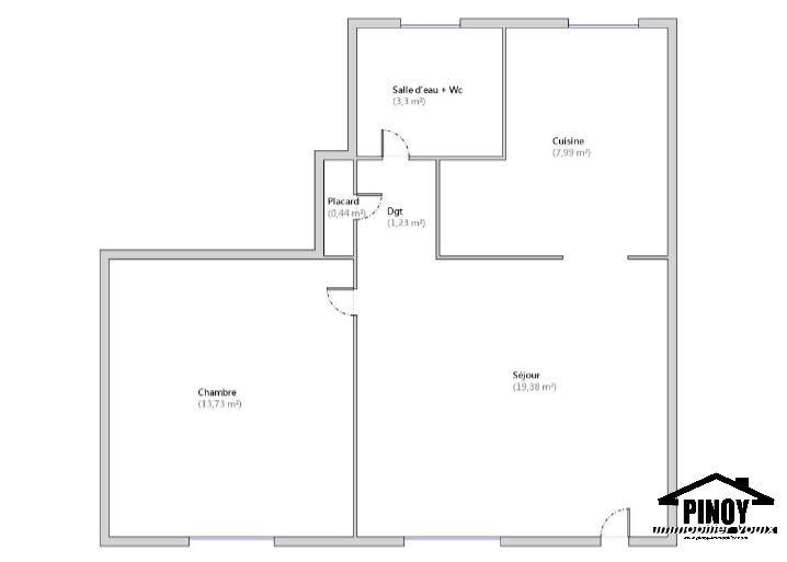
Caractéristiques du bien

Composition du bien

  • Type d'habitation : Maison
  • Nombre de chambres : 2
  • Nombre de salles de bain : 1
  • Cuisine : Américaine

Aménagement du bien

  • Cave : Non
  • Garage / Parking : Non
    • Surface habitable : 115 m²

    Localisation du bien

    VOULX (77940) , SEINE-ET-MARNE (77) - ILE-DE-FRANCE

    Ce bien n'est pas géolocalisé, pour connaitre sa géolocalisation, merci de contacter l'agence.

    Consommation énergétique

    • D (229 kWh/m² an)
      B (9 kgCO2/m².an)
      Plus d'info
      229
      9
      9
    • DPE réalisé après le 1er juillet 2021.
    • Entre 2390 € TTC / an et 3300 € TTC / an
      01/01/2021

    Nos professionnels vous accompagnent

    Contactez notre agence !

    33 rue Grande 77940 VOULX

    Appeler l’agence Tél : 01 64 70 71 65

    * Champs obligatoires

    Nous vous informons de l’existence de la liste d’opposition au démarchage téléphonique « BLOCTEL » sur laquelle vous pouvez vous inscrire (https://www.bloctel.gouv.fr).

    En complétant le formulaire «CONTACTEZ NOTRE AGENCE », je reconnais expressément que je consens au traitement de mes données personnelles et que je dispose du droit de retirer mon consentement à tout moment en m'adressant à support@fnaim.fr.
    En savoir plus sur la gestion de vos données et droits : consulter nos mentions légales, « article 5/ Données à caractère personnel ».

    En envoyant ce message, vous acceptez les conditions d'utilisation du site. Plus d'infos