Fnaim.fr
Menu

Réf. VTE-1891

Achat Appartement 3 pièces 72m² CRETEIL 94000

273 000 Honoraires charge acquéreur inclus : 5% TTC (259350 € hors honoraires)

2 chambres Balcon Ascenseur Parking / Garage

Description du bien

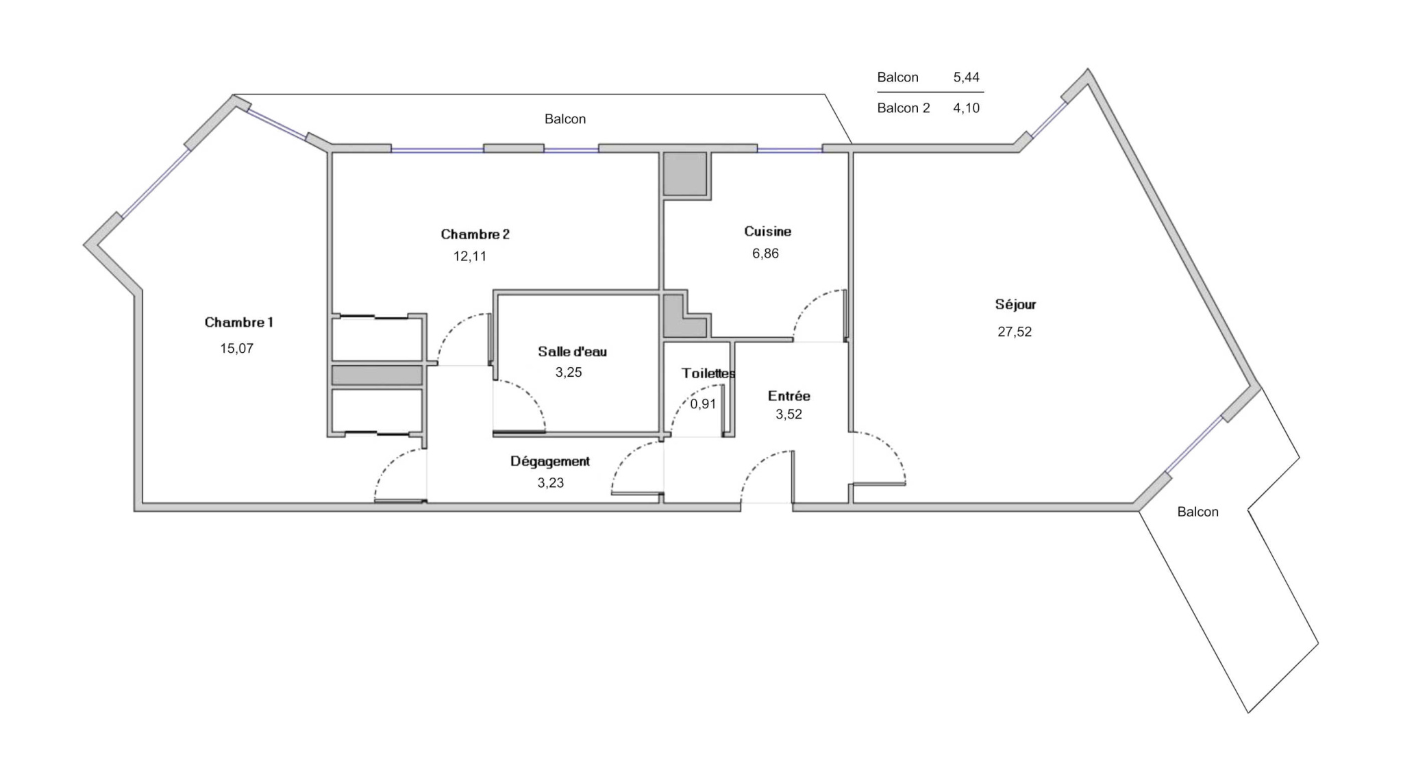
3 PIÈCES EN FRONT DE LAC Allée de la Toison d'Or. Dans un petit immeuble idéalement situé face au lac, découvrez ce beau 3 pièces offrant une vue dégagée et un cadre de vie recherché. Il se compose d'une entrée, d'un séjour lumineux de 27,52 m2 ouvrant sur un balcon plein lac, d'une cuisine équipée, ainsi que de deux grandes chambres (15,07 m2 et 12,11 m2), dont l'une avec accès au balcon. Salle d'eau et WC séparé. Les plus : box double, cave, tableau électrique récent, porte palière blindée. À deux pas du centre commercial Créteil Soleil et à 5 minutes à pied du métro Créteil-Préfecture, dans un environnement calme et verdoyant.

Etat des risques et pollutions

Les informations sur les risques auxquels ce bien est exposé sont disponibles sur le site Géorisques : www.georisques.gouv.fr.

Caractéristiques du bien

Composition du bien

  • Type d'habitation : Appartement
  • Cuisine : Type de cuisine Non communique
  • Nombre de pièce(s) : 3
  • Nombre de chambre(s) : 2

Aménagement du bien

Extérieur

  • Terrasse : Non
  • Balcon : Oui

Partie Commune

  • Ascenseur : Oui
  • Surface habitable : 72 m²
  • Parking : Oui

Informations sur la copropriété

  • Bien soumis au statut de la copropriété
  • Nombre de lots : 49
  • Quote part charges courantes : 4434 €/an
  • Procédure en cours : Non

Localisation du bien

CRETEIL (94000) , VAL-DE-MARNE (94) - ILE-DE-FRANCE

Ce bien n'est pas géolocalisé, pour connaitre sa géolocalisation, merci de contacter l'agence.

Consommation énergétique

  • C (169 kWh/m² an)
    C (13 kgCO2/m².an)
    Plus d'info
    169
    13
    13
  • DPE réalisé après le 1er juillet 2021.
  • Entre 940 € TTC / an et 1310 € TTC / an
    01/01/2023

Nos professionnels vous accompagnent

Contactez notre agence !

9 PASSAGE DE L'IMAGE ST MARTIN 94000 CRETEIL

Appeler l’agence Tél : 0145131010

* Champs obligatoires

Nous vous informons de l’existence de la liste d’opposition au démarchage téléphonique « BLOCTEL » sur laquelle vous pouvez vous inscrire (https://www.bloctel.gouv.fr).

En complétant le formulaire «CONTACTEZ NOTRE AGENCE », je reconnais expressément que je consens au traitement de mes données personnelles et que je dispose du droit de retirer mon consentement à tout moment en m'adressant à support@fnaim.fr.
En savoir plus sur la gestion de vos données et droits : consulter nos mentions légales, « article 5/ Données à caractère personnel ».

En envoyant ce message, vous acceptez les conditions d'utilisation du site. Plus d'infos