Fnaim.fr
Menu

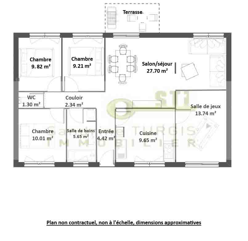
Achat Maison 5 pièces 94m² CHATILLON COLIGNY 45230

139 000 Honoraires charge vendeur

3 chambres Jardin Parking / Garage

Description du bien

A visiter sans plus tarder ! Située à CHATILLON COLIGNY, venez découvrir cette jolie maison d'environ 94 m2 offrant de plain-pied : entrée, salon/séjour lumineux d'environ 28 m2 avec accès à terrasse, cuisine aménagée semi-équipée (plaque de cuisson, hotte), belle pièce de 14 m2 avec baie vitrée pouvant servir de salle de jeux ou chambre, couloir desservant 3 chambres dont 2 avec placards, salle de bains et WC séparés. A l'extérieur : Abri de jardin. Double vitrage PVC. Ballon d'eau chaude thermodynamique. Chauffage électrique et clim réversible. Le tout sur un terrain de 630 m2 relié au tout à l'égout. Pour plus d'informations et prendre un rendez-vous de visite n'hésitez pas à contacter l'agence. Visite virtuelle offerte. 'Les informations sur les risques auxquels ce bien est exposé sont disponibles sur le site Géorisques http://www.georisques.gouv.fr'.

Etat des risques et pollutions

Les informations sur les risques auxquels ce bien est exposé sont disponibles sur le site Géorisques : www.georisques.gouv.fr.

Caractéristiques du bien

Composition du bien

  • Type d'habitation : Maison
  • Nombre de chambres : 3
  • Nombre de salles de bain : 1
  • Cuisine : Type de cuisine Non communique

Aménagement du bien

  • Cave : Non
  • Garage / Parking : Oui
    • Surface habitable : 94 m²
    • Parking : Oui

    Localisation du bien

    CHATILLON COLIGNY (45230) , LOIRET (45) - CENTRE-VAL-DE-LOIRE

    Ce bien n'est pas géolocalisé, pour connaitre sa géolocalisation, merci de contacter l'agence.

    Consommation énergétique

    • B (104 kWh/m² an)
      A (4 kgCO2/m².an)
      Plus d'info
      104
      4
      4
    • DPE réalisé après le 1er juillet 2021.
    • Entre 950 € TTC / an et 1330 € TTC / an
      01/01/2023

    Nos professionnels vous accompagnent

    Contactez notre agence !

    88 RUE JEAN JAURÈS 45230 CHATILLON COLIGNY

    Appeler l’agence Tél : 02 38 92 54 25

    * Champs obligatoires

    Nous vous informons de l’existence de la liste d’opposition au démarchage téléphonique « BLOCTEL » sur laquelle vous pouvez vous inscrire (https://www.bloctel.gouv.fr).

    En complétant le formulaire «CONTACTEZ NOTRE AGENCE », je reconnais expressément que je consens au traitement de mes données personnelles et que je dispose du droit de retirer mon consentement à tout moment en m'adressant à support@fnaim.fr.
    En savoir plus sur la gestion de vos données et droits : consulter nos mentions légales, « article 5/ Données à caractère personnel ».

    En envoyant ce message, vous acceptez les conditions d'utilisation du site. Plus d'infos