Fnaim.fr
Menu

Réf. VA2138-EST8

Achat Appartement 2 pièces 44m² COMPIEGNE 60200

179 000 Honoraires charge vendeur

1 chambre Ascenseur Parking / Garage

Description du bien

Patrimoine classé au coeur du centre historique de Compiègne, cette copropriété unique séduit dès les premiers instants et votre agence immobilière EST8 est fière de vous y emmener en visite.
Édifié dans un bâtiment chargé d'histoire, cet ensemble a bénéficié d'une rénovation récente ayant su préserver tout le charme de l'ancien : construction en pierre, toiture en ardoise, chemins en pavés, cour intérieure, superbes parterres paysagers soigneusement entretenus et parties communes remarquables. Avant même de franchir la porte, le charme opère déjà.

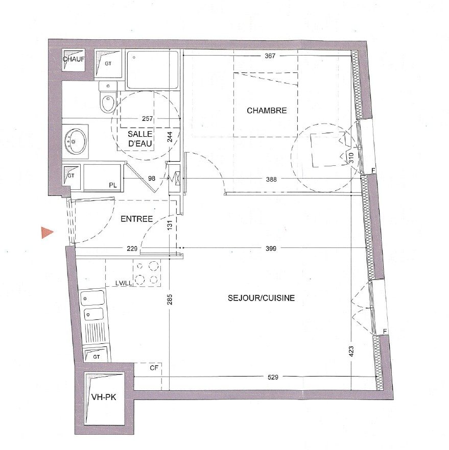
L'appartement, lui a été livré à ses propriétaires en 2020. Il se compose d'une entrée avec placard, d'un séjour avec cuisine aménagée, d'une chambre ainsi que d'une salle de bains avec WC.

Et ce n'est pas tout, vous bénéficierez également d'une place de parking en sous-sol et profiterez d'un ascenseur et de charges de copropriété maitrisées.

Charges de copropriété : 1 500 ? / an comprenant entretien des parties communes, chauffage et production de l'eau chaude.
Taxe foncière : 1 300 ? / an

Honoraires à la charge du vendeur. Dans une copropriété de 135 lots. Aucune procédure n'est en cours. Classe énergie B, Classe climat C. Montant moyen estimé des dépenses annuelles d'énergie pour un usage standard, établi à partir des prix de l'énergie de l'année 2020 : 613.00 ?. Date de réalisation du DPE : 19-07-2020. Les informations sur les risques auxquels ce bien est exposé sont disponibles sur le site Géorisques : georisques.gouv.fr.

Etat des risques et pollutions

Les informations sur les risques auxquels ce bien est exposé sont disponibles sur le site Géorisques : www.georisques.gouv.fr.

Caractéristiques du bien

Composition du bien

  • Type d'habitation : Appartement
  • Cuisine : Type de cuisine Non communique
  • Nombre de pièce(s) : 2
  • Nombre de chambre(s) : 1

Aménagement du bien

Extérieur

  • Terrasse : Non
  • Balcon : Non

Partie Commune

  • Ascenseur : Oui
  • Surface habitable : 44 m²
  • Parking : Oui

Informations sur la copropriété

  • Bien soumis au statut de la copropriété
  • Nombre de lots : 135
  • Procédure en cours : Non

Localisation du bien

COMPIEGNE (60200) , OISE (60) - HAUTS-DE-FRANCE

Ce bien n'est pas géolocalisé, pour connaitre sa géolocalisation, merci de contacter l'agence.

Consommation énergétique

  • B (80 kWh/m² an)
    C (19 kgCO2/m².an)
    Plus d'info
    80
    19
  • DPE réalisé avant le 1er juillet 2021.
  • 613€ TTC / an
    01/01/2020

Nos professionnels vous accompagnent

Contactez notre agence !

63 RUE DE LA RÉPUBLIQUE 60280 VENETTE

Appeler l’agence Tél : 0982552577

* Champs obligatoires

Nous vous informons de l’existence de la liste d’opposition au démarchage téléphonique « BLOCTEL » sur laquelle vous pouvez vous inscrire (https://www.bloctel.gouv.fr).

En complétant le formulaire «CONTACTEZ NOTRE AGENCE », je reconnais expressément que je consens au traitement de mes données personnelles et que je dispose du droit de retirer mon consentement à tout moment en m'adressant à support@fnaim.fr.
En savoir plus sur la gestion de vos données et droits : consulter nos mentions légales, « article 5/ Données à caractère personnel ».

En envoyant ce message, vous acceptez les conditions d'utilisation du site. Plus d'infos