Fnaim.fr
Menu

Réf. 446573KFL

Achat Maison 2 pièces 35m² STE LUCIE DE PORTO VECCHIO 20144

245 000 Honoraires charge acquéreur inclus : 4.3% TTC (234563 € hors honoraires)

1 chambre Jardin Parking / Garage

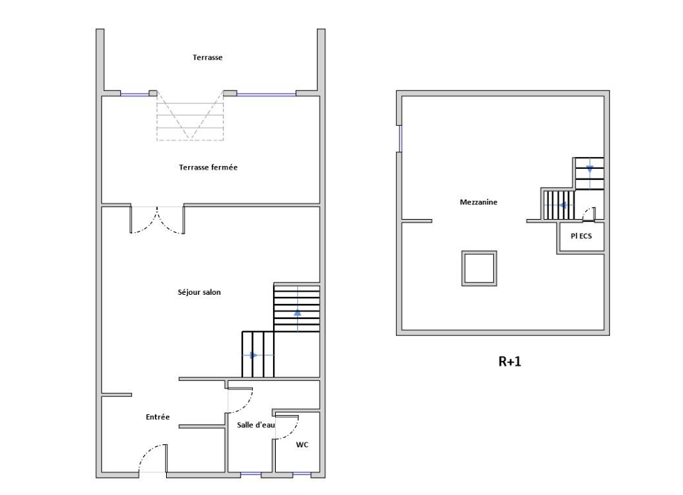
Description du bien

Découvrez cette charmante mini-villa en duplex offrant un cadre de vie rare à seulement 3 minutes à pied de la magnifique plage de Pinarello.

Dans une résidence parfaitement entretenue, nichée au coeur d'un environnement naturel et paisible

Édifiée sur deux niveaux (rez-de-chaussée et mezzanine), elle se compose de :
Un séjour / salon lumineux
Une terrasse fermée accueillant une cuisine aménagée et entièrement équipée
Une salle d'eau
Un WC indépendant

L'espace nuit se situe en mezzanine avec un couchage en 160 cm. La hauteur sous plafond réduite apporte un esprit cocooning et insolite. Sous toiture, un espace complémentaire permet d'envisager un couchage pour enfant.

A l'extérieur :
- un jardin privatif intimiste d'environ 25 m2 idéal pour savourer la douceur du climat et les soirées d'été en toute tranquillité.
- une place de stationnement privative au sein de la résidence clôturée et équipée d'un
portail électrique, complète le confort de ce bien.

Les atouts majeurs :
A seulement 3 minutes à pied de la plage
Environnement naturel et calme
Résidence soignée
Bien confortable et fonctionnel

Parfait pour un couple souhaitant vivre à l'année dans un cadre privilégié, ce bien constitue également une excellente opportunité d'investissement locatif saisonnier (capacité 2 à 4 personnes).

Un véritable pied-à-terre à l'atmosphère chaleureuse, où sérénité et proximité immédiate de la mer se conjuguent au quotidien.

Prix de Vente : 245 000 euros. Le prix indiqué comprend les honoraires de 4.26 %, à la charge de l'acquéreur. Prix hors honoraires 235 000 euros

Consommation énergétique C 153 kwh/m²/an
Emission de gaz à effet de serre A 5 kg CO2/m²/an
Estimation du cout annuel en énergie pour un usage standard entre 450 euros et 620 euros (prix moyens des énergies indexées sur les années 2021, 2022,2023)

Copropriété de 24 lots dont 24 lots d'habitation - charges de copropriété : 540 euros / an
A propos de la copropriété : Pas de procédure en cours Statut provisoire du syndicat : Pas de procédure en cours

Pour visiter et vous accompagner dans votre projet, contactez Kandy et Laurent FLAJOLLET, au 0623781869 et 0662255840 ou, par courriel à k.flajollet@proprietes-privees.com et l.flajollet@proprietes-privees.com
Selon l'article L.561.5 du Code Monétaire et Financier, pour l'organisation de la visite, la présentation d'une pièce d'identité vous sera demandée.

Cette présente annonce a été rédigée sous la responsabilité éditoriale de Kandy et Laurent FLAJOLLET agissant sous le statut d'agent commercial immatriculé au RSAC ajaccio 498912369 et 804573459 auprès de SAS PROPRIETES PRIVEES, au capital de 44 920 euros, ZAC LE CHÊNE FERRÉ - 44 ALLÉE DES CINQ CONTINENTS 44120 VERTOU; SIRET 487 624 777 00040, RCS Nantes. Carte Professionnelle Transactions sur immeubles et fonds de commerce (T) et Gestion immobilière (G) n°CPI 4401 2016 000 010 388 délivrée par la CCI Nantes - Saint Nazaire. Compte séquestre n°30932508467 BPA SAINT-SEBASTIEN-SUR-LOIRE (44230). Garantie GALIAN-SMABTP - 89 rue de la Boétie, 75008 Paris - n°28137 J pour 2 000 000 euros pour T et 120 000 euros pour G. Assurance responsabilité civile professionnelle par GALIAN-SMABTP n° de police 28137.J

Mandat réf : 446573KFL - Le professionnel garantit et sécurise votre projet immobilier.

(*) (Dans le cadre de la réglementation TRACFIN, le professionnel de l'immobilier a une obligation de vigilance. A ce titre, il doit être en mesure de vérifier l'identité du bénéficiaire effectif de l'opération dès la prise de contact et tout au long de la relation d'affaire.) (4.26 % honoraires TTC à la charge de l'acquéreur.)
Copropriété de 24 lots - dont 24 lots habitation.

Charges annuelles : 539 euros.
Kandy et Laurent FLAJOLLET (EI) Agent Commercial - Numéro RSAC : ajaccio 498912369 - .
Les informations sur les risques auxquels ce bien est exposé sont disponibles sur le site Géorisques : www. georisques. gouv. fr

Etat des risques et pollutions

Les informations sur les risques auxquels ce bien est exposé sont disponibles sur le site Géorisques : www.georisques.gouv.fr.

Caractéristiques du bien

Composition du bien

  • Type d'habitation : Maison
  • Nombre de chambres : 1
  • Cuisine : Simple

Aménagement du bien

  • Cave : Non
  • Garage / Parking : Oui
    • Surface habitable : 35 m²
    • Parking : Oui

    Informations sur la copropriété

    • Bien soumis au statut de la copropriété
    • Nombre de lots : 24
    • Quote part charges courantes : 539 €/an
    • Procédure en cours : Non

    Localisation du bien

    STE LUCIE DE PORTO VECCHIO (20144) , CORSE-DU-SUD (2A)

    Ce bien n'est pas géolocalisé, pour connaitre sa géolocalisation, merci de contacter l'agence.

    Consommation énergétique

    • C (153 kWh/m² an)
      A (5 kgCO2/m².an)
      Plus d'info
      153
      5
      5
    • DPE réalisé après le 1er juillet 2021.
    • Entre 450 € TTC / an et 620 € TTC / an
      Non communiqué

    Nos professionnels vous accompagnent

    Contactez notre agence !

    44 Allée des Cinq Continents. ZAC Le Chêne Ferré 44120 VERTOU

    Appeler l’agence Tél : 06 23 78 18 69

    * Champs obligatoires

    Nous vous informons de l’existence de la liste d’opposition au démarchage téléphonique « BLOCTEL » sur laquelle vous pouvez vous inscrire (https://www.bloctel.gouv.fr).

    En complétant le formulaire «CONTACTEZ NOTRE AGENCE », je reconnais expressément que je consens au traitement de mes données personnelles et que je dispose du droit de retirer mon consentement à tout moment en m'adressant à support@fnaim.fr.
    En savoir plus sur la gestion de vos données et droits : consulter nos mentions légales, « article 5/ Données à caractère personnel ».

    En envoyant ce message, vous acceptez les conditions d'utilisation du site. Plus d'infos