Fnaim.fr
Menu

Exclusivité
Réf. 444870SGIU

Achat Maison 6 pièces 114m² GATTIERES 06510

349 000 Honoraires charge vendeur

4 chambres Jardin Parking / Garage

Description du bien

** MAISON SOUS OFFRE ACCEPTEE**
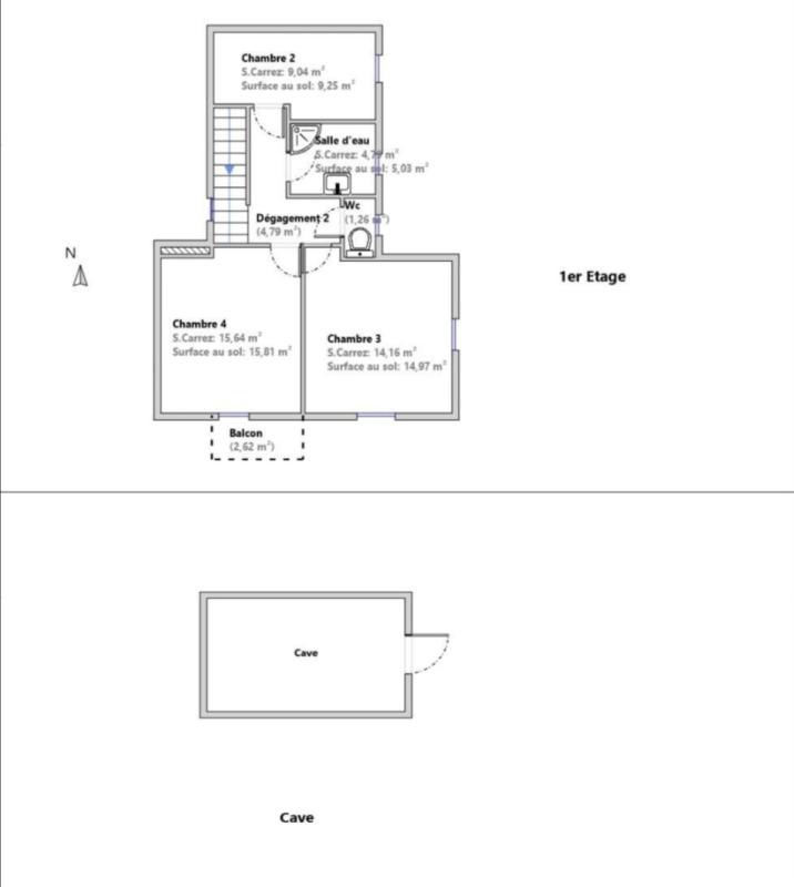
Je vous propose cette charmante maison individuelle de 114 m² à Gattières, idéale pour une famille car à proximité des écoles et des commerces.

Maison comprenant 6 pièces :
- Une salle à manger avec cuisine ouverte
- un salon avec cheminée fonctionnelle
- 4 chambres ( 2 grandes et 2 plus petites )
- 1 salle de douche avec double vasques
- WC indépendant
- 1 pièce buanderie/ chaufferie avec pompe à chaleur récente

Double vitrage PVC dans toutes les pièces

Une grande cave complète ce bien ainsi que 2 places de parking situées en face de la maison.
Exposition Sud sur 390 m² de terrain.
Des travaux sont à prévoir.

Prix du bien 349000 euros honoraires d'agence inclus charge vendeur.

DPE : C
GES : B
Diagnostics réalisés le 04/03/2026

Estimation des coûts annuels d'énergie du logement entre 1680 euros et 2300 euros par an sur les années 2021,2022 et 2023 ( abonnements compris ).

Pour visiter et vous accompagner dans votre projet, contactez
Séverine Giussani au 06.83.51.72.28 ou par courriel s.giussani@propriétés-privees.com. Selon l'article L.561.5 du code monétaire et financier, pour l'organisation de la visite, la présentation d'une pièce d'identité vous sera demandée.
Cette présente annonce a été rédigée sous la responsabilité éditoriale de Séverine Giussani agissant sous le statut d'agent commercial (sous EI ou EIRL)
immatriculé au RSAC de Grasse 939619276 auprès de la SAS PROPRIETES PRIVEES,
Réseau national immobilier, au capital de 44 920 euros, 44 ALLÉE DES CINQ
CONTINENTS - ZAC LE CHÊNE FERRÉ, 44120 VERTOU, RCS Nantes n° 487 624
777, Carte professionnelle T et G n° CPI 4401 2016 000 010 388 CCI Nantes-Saint
Nazaire. Garantie GALIAN-SMABTP - 89 rue de la Boétie, 75008 Paris.
Mandat réf : 444870.

Severine GIUSSANI (EI) Agent Commercial - Numéro RSAC : GRASSE 939619276 - .
Les informations sur les risques auxquels ce bien est exposé sont disponibles sur le site Géorisques : www. georisques. gouv. fr

Etat des risques et pollutions

Les informations sur les risques auxquels ce bien est exposé sont disponibles sur le site Géorisques : www.georisques.gouv.fr.

Caractéristiques du bien

Composition du bien

  • Type d'habitation : Maison
  • Nombre de chambres : 4
  • Cuisine : Simple

Aménagement du bien

  • Cave : Non
  • Garage / Parking : Oui
    • Surface habitable : 114 m²
    • Parking : Oui

    Localisation du bien

    GATTIERES (06510) , ALPES-MARITIMES (06) - PROVENCE-ALPES-COTE-D-AZUR

    Consommation énergétique

    • C (179 kWh/m² an)
      B (7 kgCO2/m².an)
      Plus d'info
      179
      7
      7
    • DPE réalisé après le 1er juillet 2021.
    • Entre 1680 € TTC / an et 2300 € TTC / an
      Non communiqué

    Nos professionnels vous accompagnent

    Contactez notre agence !

    44 Allée des Cinq Continents. ZAC Le Chêne Ferré 44120 VERTOU

    Appeler l’agence Tél : 06 83 51 72 28

    * Champs obligatoires

    Nous vous informons de l’existence de la liste d’opposition au démarchage téléphonique « BLOCTEL » sur laquelle vous pouvez vous inscrire (https://www.bloctel.gouv.fr).

    En complétant le formulaire «CONTACTEZ NOTRE AGENCE », je reconnais expressément que je consens au traitement de mes données personnelles et que je dispose du droit de retirer mon consentement à tout moment en m'adressant à support@fnaim.fr.
    En savoir plus sur la gestion de vos données et droits : consulter nos mentions légales, « article 5/ Données à caractère personnel ».

    En envoyant ce message, vous acceptez les conditions d'utilisation du site. Plus d'infos