Fnaim.fr
Menu

Exclusivité
Réf. 437787RER

Achat Immeuble 378m² NEVERS 58000

Description du bien

A proximité immédiate du pôle hospitalier de Nevers, ce bâtiment commercial récent bénéficie d'un emplacement stratégique au coeur d'une zone à forte fréquentation, particulièrement recherchée pour des activités de services, médicales, tertiaires, artisanales ou commerciales.

Édifié fin 2023, l'ensemble développe une surface bâtie de 378 m² sur une parcelle de 3 583 m² entièrement constructible, offrant un important potentiel d'extension, de division ou de développement complémentaire.

Le site est aujourd'hui organisé autour de :
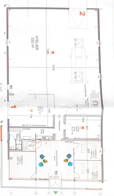
un atelier de 222 m²
trois bureaux
un local technique
un vestiaire
un espace accueil / réception

Le bâtiment sera entièrement libéré au mois de juin, permettant une mise en exploitation rapide ou une relocation immédiate.

L'actif profite d'éléments techniques récents et rassurants pour un investisseur :
construction récente (fin 2023)
raccordement au tout-à-l'égout
site aux normes actuelles
configuration fonctionnelle
circulation et accès faciles
taxe foncière maîtrisée : 8 000 euros

Un emplacement particulièrement porteur

L'un des grands atouts du bien réside dans son environnement immédiat très dynamique, avec notamment la présence du centre hospitalier de Nevers juste à proximité, générant un flux constant de véhicules, professionnels et usagers.

Vision investisseur

Grâce à la taille du foncier constructible, plusieurs stratégies patrimoniales sont envisageables :
extension du bâtiment existant
création d'un second bâtiment d'activité
développement d'une cellule médicale / paramédicale
implantation de bureaux ou commerces complémentaires
investissement locatif multi-occupants
opération de valorisation foncière à moyen terme

Ce bien représente une opportunité rare sur le secteur de Nevers, combinant visibilité, accessibilité, construction récente et réserve foncière.

Pour visiter et vous accompagner dans votre projet, contactez Ralib REHAHLI ou Léa GUILLOCHON agissant sous le statut de conseiller immobilier indépendant auprès de la sas Propriétés privées
au 06 64 78 87 41 / 06 38 72 77 88 ou par mail à r.rehahli@proprietes-privees.com / l.guillochon@proprietes-privees.com Mandat n°437787 .
Adresse du siège: SAS PROPRIETES PRIVEES ZAC du chêne ferré 44 allée des cinq continents 44120 VERTOU - Carte professionnelle CPI 4401 2016 000 010 388, CCI Nantes - Saint Nazaire - RCS NANTES 487 624 777
Les informations sur les risques auxquels ce bien est exposé sont disponibles sur le site Géorisques : www. georisques. gouv. fr

Etat des risques et pollutions

Les informations sur les risques auxquels ce bien est exposé sont disponibles sur le site Géorisques : www.georisques.gouv.fr.

Caractéristiques du bien

Composition du bien

  • Type d'habitation : Immeuble
  • Surface totale : 378 m²

Aménagement du bien

Partie Commune

  • Ascenseur : Non
  • Accès digicode : Non

Localisation du bien

NEVERS (58000) , NIEVRE (58) - BOURGOGNE-FRANCHE-COMTÉ

Consommation énergétique

DPE non soumis
mention indiquée sous la responsabilité de l’agence immobilière

Nos professionnels vous accompagnent

Contactez notre agence !

44 Allée des Cinq Continents. ZAC Le Chêne Ferré 44120 VERTOU

Appeler l’agence Tél : 06 64 78 87 41

* Champs obligatoires

Nous vous informons de l’existence de la liste d’opposition au démarchage téléphonique « BLOCTEL » sur laquelle vous pouvez vous inscrire (https://www.bloctel.gouv.fr).

En complétant le formulaire «CONTACTEZ NOTRE AGENCE », je reconnais expressément que je consens au traitement de mes données personnelles et que je dispose du droit de retirer mon consentement à tout moment en m'adressant à support@fnaim.fr.
En savoir plus sur la gestion de vos données et droits : consulter nos mentions légales, « article 5/ Données à caractère personnel ».

En envoyant ce message, vous acceptez les conditions d'utilisation du site. Plus d'infos