Fnaim.fr
Menu

Visite virtuelle
Exclusivité
Réf. DOM30432

Achat Maison 5 pièces 123m² HEM 59510

385 000 Honoraires charge vendeur

4 chambres

Description du bien

Exclusivité - Charmante maison semi plain-pied avec jardin à Hem (secteur des 3 Bodets)

Laissez-vous séduire par cette maison de 1948, parfaitement entretenue, offrant un état général irréprochable et des prestations de qualité. Développée sur trois niveaux, elle allie charme de l'ancien et confort moderne, dans un environnement calme et recherché.

Visite virtuelle disponible au lien suivant pour découvrir ce bien comme si vous y étiez :
https://my.matterport.com/show/?m=eip9fSVrzK7

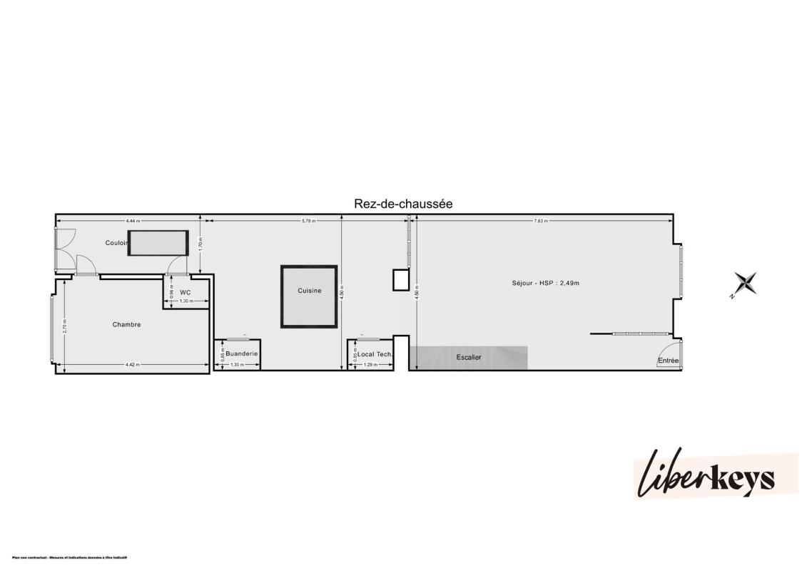
Au rez-de-chaussée
- Une pièce de vie de 35 m², chaleureuse et lumineuse, avec parquet et poêle à granulés,
- Une cuisine ouverte entièrement équipée, sublimée par un puits de lumière apportant une clarté exceptionnelle,
- Un WC indépendant,
- Une chambre avec espace douche, idéale en semi plain-pied, avec vue agréable sur le jardin,
- Un jardin de 100 m², parfait pour profiter des beaux jours, avec cabanon sur dalle béton.

Au 1er étage
- Une chambre actuellement aménagée en grand dressing,
- Une seconde chambre,
- Une salle d'eau moderne avec fenêtre, double vasque et WC,
- Possibilité d'ouvrir la cloison (non porteuse) entre les deux chambres pour créer une chambre plus spacieuse.

Au 2ème étage
- Une chambre très lumineuse, pouvant également faire office de bureau ou de salle de loisirs.

Informations pratiques
- Chauffage électrique + poêle à granulés,
- Double vitrage intégral,
- Volets roulants électriques dans toute la maison.

Possibilité de location d'un garage à quelques mètres de la maison (60€/mois).

Localisation

Située dans un quartier calme et recherché, à proximité immédiate des écoles, commerces et commodités.

Une maison idéale pour une famille ou un projet de vie alliant confort, luminosité et emplacement privilégié.

Ce bien vous intéresse ?
Commencez par la visite virtuelle, puis contactez Etienne Ruffin, agent commercial immatriculé au RSAC de Lille sous le n° 999 746 431, pour organiser une visite.

Tel : 06 73 72 43 01
Les honoraires sont à la charge du vendeur.

Etat des risques et pollutions

Les informations sur les risques auxquels ce bien est exposé sont disponibles sur le site Géorisques : www.georisques.gouv.fr.

Caractéristiques du bien

Composition du bien

  • Type d'habitation : Maison
  • Nombre de chambres : 4
  • Cuisine : Equipée

Aménagement du bien

  • Cave : Non
  • Garage / Parking : Non
    • Surface habitable : 123 m²

    Localisation du bien

    HEM (59510) , NORD (59) - HAUTS-DE-FRANCE

    Consommation énergétique

    • C (151 kWh/m² an)
      A (5 kgCO2/m².an)
      Plus d'info
      151
      5
      5
    • DPE réalisé après le 1er juillet 2021.
    • Entre 1290 € TTC / an et 1810 € TTC / an
      Non communiqué

    Nos professionnels vous accompagnent

    Contactez notre agence !

    20 RUE DE MONTHOLON 75009 PARIS 09

    Appeler l’agence Tél : 06 40 22 43 15

    * Champs obligatoires

    Nous vous informons de l’existence de la liste d’opposition au démarchage téléphonique « BLOCTEL » sur laquelle vous pouvez vous inscrire (https://www.bloctel.gouv.fr).

    En complétant le formulaire «CONTACTEZ NOTRE AGENCE », je reconnais expressément que je consens au traitement de mes données personnelles et que je dispose du droit de retirer mon consentement à tout moment en m'adressant à support@fnaim.fr.
    En savoir plus sur la gestion de vos données et droits : consulter nos mentions légales, « article 5/ Données à caractère personnel ».

    En envoyant ce message, vous acceptez les conditions d'utilisation du site. Plus d'infos