Fnaim.fr
Menu

Achat Maison 5 pièces 111m² LES MARTRES DE VEYRE 63730

399 000 Honoraires charge acquéreur inclus : 5% TTC (379050 € hors honoraires)

3 chambres Jardin Parking / Garage

Description du bien

Les Martres-de-Veyre // 
Vos Agents vous proposent... une maison neuve en cours d'achèvement, vendue entièrement finie ou avec quelques modifications possibles selon vos envies, idéalement située sur la commune dynamique des Martres, à proximité des grands axes, des commodités et de Clermont-Ferrand. 
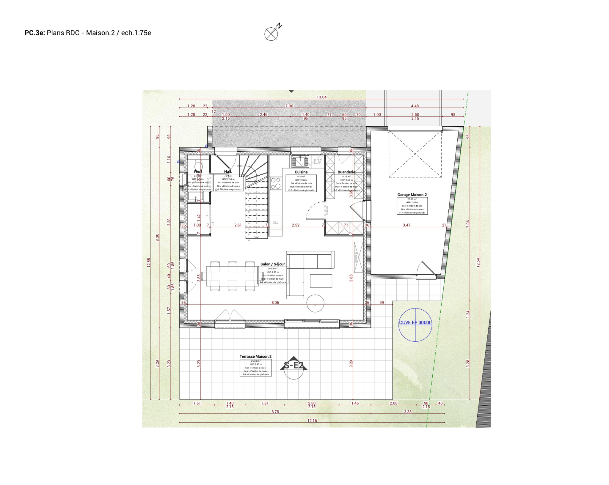
D'une superficie totale de 111m2, la maison est composée comme suit : 
 
En rez-de-chaussée, un hall d'entrée spacieux amène à une pièce de vie de 40.5m2 avec espace salon, salle à manger et cuisine ouverte, une buanderie et un WC.
 
À l'étage, un palier dessert trois chambres de 11m2, 11.5m2 et 12.5m2, un bureau de plus de 8m2 (pouvant être aussi utilisé comme chambre d'appoint) une salle de bains et un WC séparé.
 
Une terrase de plus de 35m2, un jardin plein sud et un garage de 24m2 complètent le bien.
 
Construction et finitions de qualité. La maison est livrée finie, intérieur et extérieur : peintures, revêtement de sol, faience dans la salle de bain, climatisation réversible, ballon thermodynamique, normes RE2020, enrobé terminé, engazonnée et cloturée. La taxe d'aménagement est réglée.
 
Une opportunité rare, à ne pas laisser passer !
La maison est la numéro 2 sur les plans. La numéro 1 est également disponible.
Non soumis au dpe. Étude thermique réalisée projetant une classe energie B.
Les informations sur les risques auxquels ce bien est exposé sont disponibles sur le site Géorisques : www.georisques.gouv.fr.
Estimation de votre bien gratuitement en 48 heures, n'hésitez pas à nous contacter, nous avons certainement le client qu'il vous faut !
Prix : 399 000 EUR HAI. 
Vos Agents Jean & Olivier : 06.24.61.99.43 / 06.40.22.30.93
Agents commerciaux immatriculés au RSAC de CLERMONT-FERRAND sous les numéros 917 497 257 et 913 779 013.
www.vosagents.fr

Etat des risques et pollutions

Les informations sur les risques auxquels ce bien est exposé sont disponibles sur le site Géorisques : www.georisques.gouv.fr.

Caractéristiques du bien

Composition du bien

  • Type d'habitation : Maison
  • Nombre de chambres : 3
  • Nombre de salles de bain : 1
  • Cuisine : Américaine

Aménagement du bien

  • Cave : Non
  • Garage / Parking : Oui
    • Surface habitable : 111 m²
    • Parking : Oui

    Localisation du bien

    LES MARTRES DE VEYRE (63730) , PUY-DE-DOME (63) - AUVERGNE-RHÔNE-ALPES

    Ce bien n'est pas géolocalisé, pour connaitre sa géolocalisation, merci de contacter l'agence.

    Consommation énergétique

    DPE non soumis
    mention indiquée sous la responsabilité de l’agence immobilière

    Nos professionnels vous accompagnent

    Contactez notre agence !

    31 RUE GONOD 63000 CLERMONT FERRAND

    Appeler l’agence Tél : 0640223093

    * Champs obligatoires

    Nous vous informons de l’existence de la liste d’opposition au démarchage téléphonique « BLOCTEL » sur laquelle vous pouvez vous inscrire (https://www.bloctel.gouv.fr).

    En complétant le formulaire «CONTACTEZ NOTRE AGENCE », je reconnais expressément que je consens au traitement de mes données personnelles et que je dispose du droit de retirer mon consentement à tout moment en m'adressant à support@fnaim.fr.
    En savoir plus sur la gestion de vos données et droits : consulter nos mentions légales, « article 5/ Données à caractère personnel ».

    En envoyant ce message, vous acceptez les conditions d'utilisation du site. Plus d'infos