Fnaim.fr
Menu

Achat Maison 6 pièces 129m² LES MARTRES DE VEYRE 63730

449 000 Honoraires charge acquéreur inclus : 4,4% TTC (429154 € hors honoraires)

5 chambres Jardin Parking / Garage

Description du bien

Les Martres-de-Veyre //
Vos Agents vous proposent... une maison neuve en cours d'achèvement, vendue entièrement finie ou avec quelques modifications possibles selon vos envies, idéalement située sur la commune dynamique des Martres, à proximité des grands axes, des commodités et de Clermont-Ferrand.
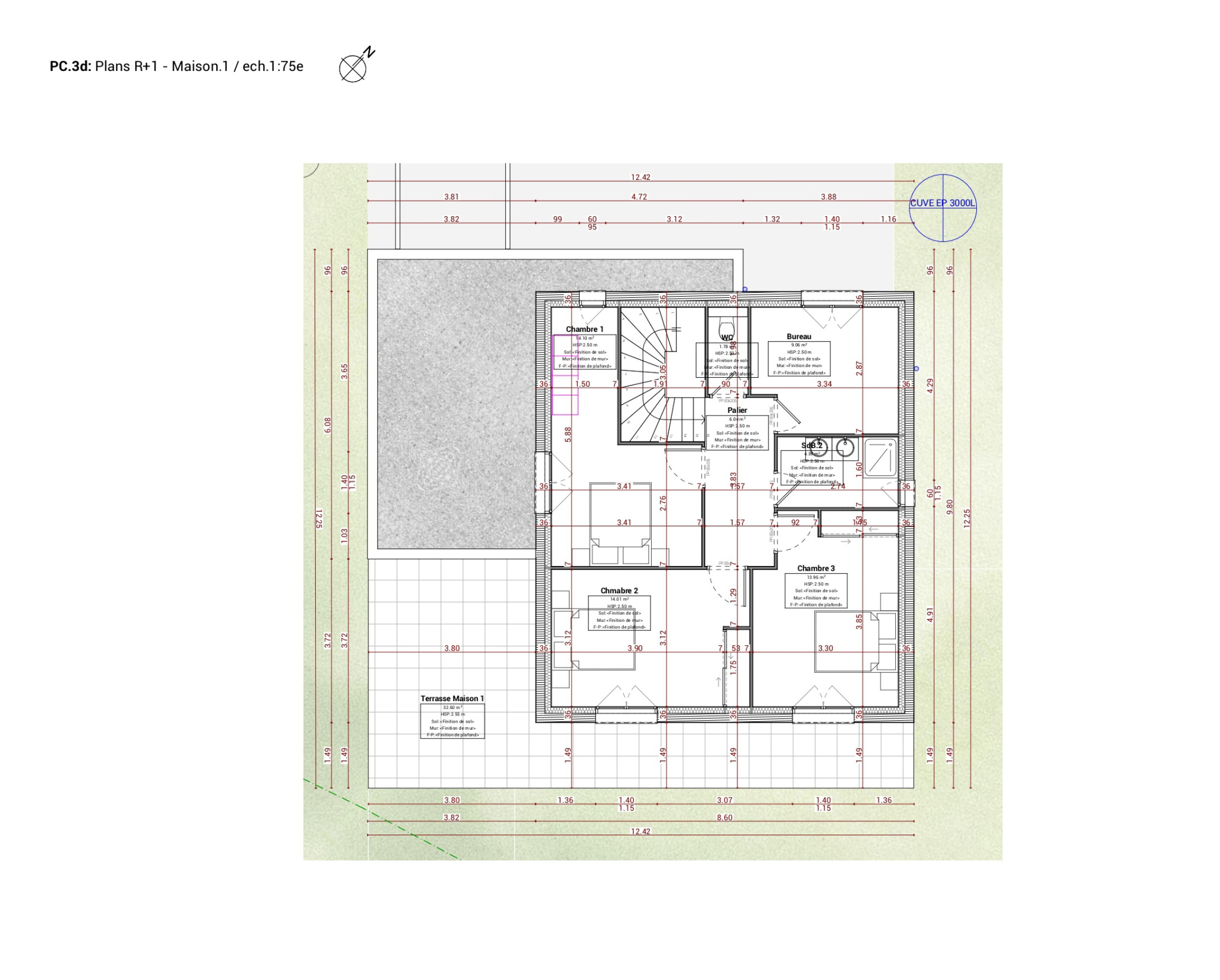
D'une superficie totale de 129m2, la maison se compose de la manière suivante :
 
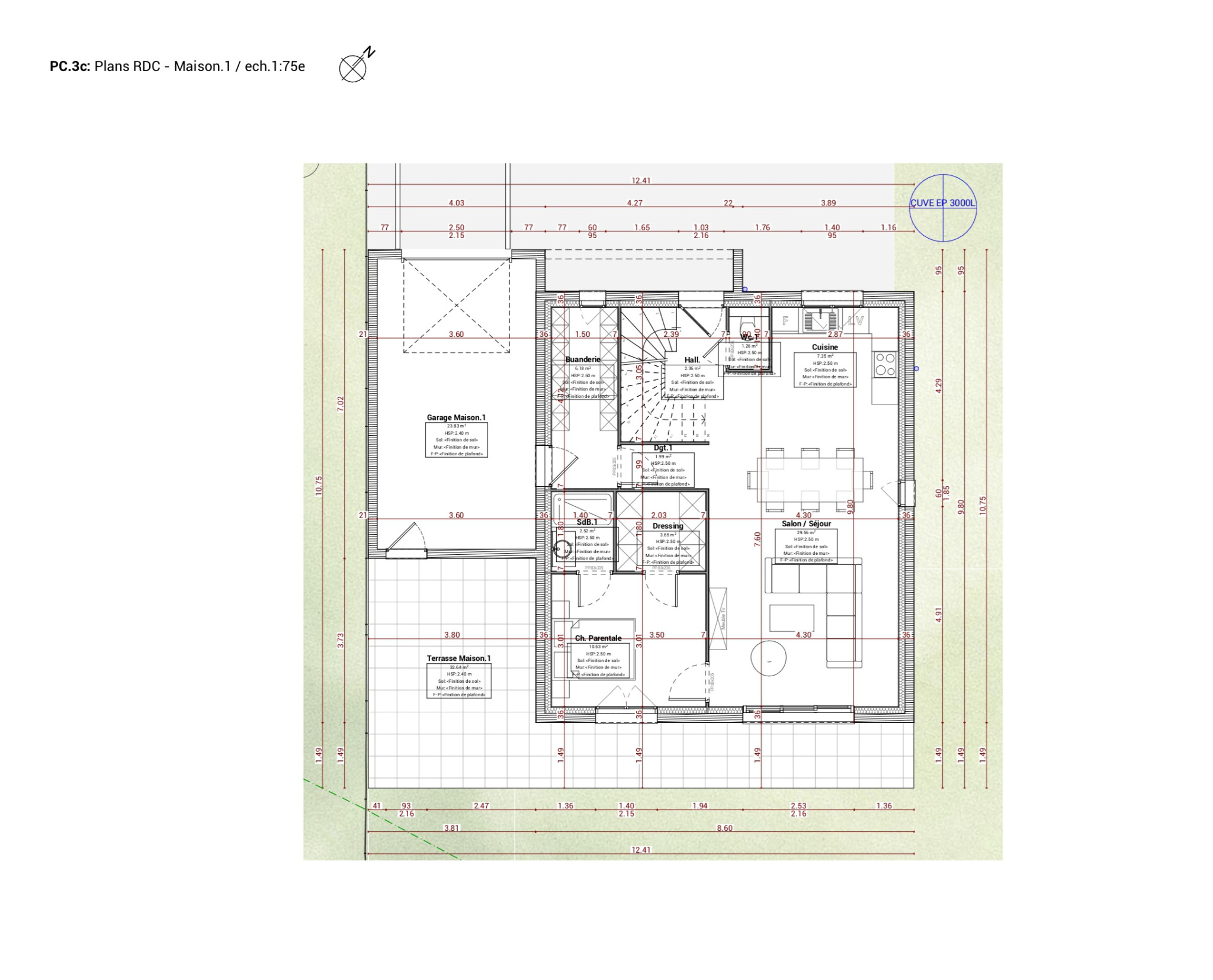
En rez-de-chaussée, la maison s'ouvre sur une entrée avec dégagement menant sur une pièce de vie de 37m2 avec cuisine ouverte, une buanderie, une suite parentale de 17m2 avec salle d'eau et dressing et un WC séparé.
 
À l'étage, vous pourrez profiter de trois chambres d'environ 14m2 avec placard, d'une quatrième de 9.5m2, d'une salle de bains et d'un WC. Le tout desservi par un palier spacieux.
 
Une terrasse de plus de 30m2, un beau jardin donnant sur le ruisseau et un garage de 24m2 complètent le bien.
 
Construction et finition de qualité. La maison est livrée finie, intérieur et extérieur : peintures, revêtement de sol, faience dans la salle de bain, climatisation réversible, ballon thermodynamique, norme RE2020, enrobé terminé, engazonnée et cloturée. La taxe d'aménagement est réglée.
 
Une opportunité rare, à ne pas laisser passer !
La maison est la numéro 1 sur les plans. La numéro 2 est également disponible.
Non soumis au dpe. Étude thermique réalisée projetant une classe energie B.
Les informations sur les risques auxquels ce bien est exposé sont disponibles sur le site Géorisques : www.georisques.gouv.fr.
Estimation de votre bien gratuitement en 48 heures, n'hésitez pas à nous contacter, nous avons certainement le client qu'il vous faut !
Prix : 449 000 EUR HAI
Vos Agents Jean & Olivier : 06.24.61.99.43 / 06.40.22.30.93
Agents commerciaux immatriculés au RSAC de CLERMONT-FERRAND sous les numéros 917 497 257 et 913 779 013.
www.vosagents.fr

Etat des risques et pollutions

Les informations sur les risques auxquels ce bien est exposé sont disponibles sur le site Géorisques : www.georisques.gouv.fr.

Caractéristiques du bien

Composition du bien

  • Type d'habitation : Maison
  • Nombre de chambres : 5
  • Nombre de salles de bain : 1
  • Cuisine : Type de cuisine Non communique

Aménagement du bien

  • Cave : Non
  • Garage / Parking : Oui
    • Surface habitable : 129 m²
    • Parking : Oui

    Localisation du bien

    LES MARTRES DE VEYRE (63730) , PUY-DE-DOME (63) - AUVERGNE-RHÔNE-ALPES

    Ce bien n'est pas géolocalisé, pour connaitre sa géolocalisation, merci de contacter l'agence.

    Consommation énergétique

    DPE non soumis
    mention indiquée sous la responsabilité de l’agence immobilière

    Nos professionnels vous accompagnent

    Contactez notre agence !

    31 RUE GONOD 63000 CLERMONT FERRAND

    Appeler l’agence Tél : 0640223093

    * Champs obligatoires

    Nous vous informons de l’existence de la liste d’opposition au démarchage téléphonique « BLOCTEL » sur laquelle vous pouvez vous inscrire (https://www.bloctel.gouv.fr).

    En complétant le formulaire «CONTACTEZ NOTRE AGENCE », je reconnais expressément que je consens au traitement de mes données personnelles et que je dispose du droit de retirer mon consentement à tout moment en m'adressant à support@fnaim.fr.
    En savoir plus sur la gestion de vos données et droits : consulter nos mentions légales, « article 5/ Données à caractère personnel ».

    En envoyant ce message, vous acceptez les conditions d'utilisation du site. Plus d'infos